Sie sind auf der Suche nach einer zentral gelegenen Immobilie mit guten Anbindungen, möchten neben viel Wohnraum das Hobby nicht klein schrauben müssen?
Andreas Franzke von FALC Immobilien offeriert hier einen circa 223 m² großen Wohn(t)raum! Davon erstrecken sich circa 153 m² auf die beiden Stockwerke im Haupthaus, circa 66 m² generieren sich aus einem Hobbyraum neben der Scheune, der mit wenigen Handgriffen einen Studio-ähnlichen Wohnraum darstellen könnte. Dieses herrliche Anwesen wurde auf einem 1.331 m² großen Grundstück in Heilbronn, im Teilort Biberach im Jahre 1914 errichtet, 1994 wurde es renoviert und erweitert, seitdem durch regelmäßige Renovierungen, zuletzt 2011 auf Stand gehalten.
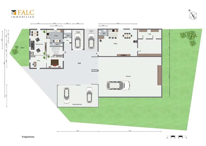
Zu diesem Anwesen gehört eine Garage, ein Carport, ein Fahrradschuppen, eine Scheune mit über 340 m² inklusive Hobbyraum und eine Maschinenhalle mit über 87 m², in deren Räumlichkeiten eine Werkstatt mit Hebebühne Platz finden könnte.
Ein baugleiches Erd- und Obergeschoss mit jeweils vier Zimmer, einer Küche, einem Bad mit Wanne und einem separaten WC und ein komplett unterkellertes Untergeschoss warten nun auf ihren neuen Eigentümer - und dieser könnten schon bald Sie sein! Im Erdgeschoss wurde die Wand zwischen zwei Zimmern entfernt, so profitieren Sie von einem großzügigen, hellen Wohnzimmer.
Isolierverglaste Fenster mit Kunststoffrahmen sorgen für lichtdurchfluteten Durchblick, sie verfügen über Rollläden, beheizt wird dieses Juwel zentral mit einer Öl-Zentralheizung, Kachelöfen sorgen für zusätzliche warme Gemütlichkeit. Eine Photovoltaikanlage mit Paneelen auf dem Dach der Scheune und der Maschinenhalle unterstützen die Warmwasserbereitung mit einer Leistung von 25kWp.
Die Fußböden in den Wohnräumen schmücken überwiegend strapazierfähiges Kork, warmes Laminat und kuscheliger Teppich, die Küchen und die Feuchträume sind mit Fliesen ausgelegt.
Mehrere Anbieter sorgen für eine Geschwindigkeit mit einer Verbindung bis zu 500 MBit/s im Download und bis zu 50 MBit/s im Upload. Mit der Deutschen GigaNetz wäre sogar eine Verbindung bis zu 2.500 MBit/s im Download möglich.
Unser exklusiver 360° Immobilienrundgang verschafft Ihnen einen noch besseren ersten Eindruck von der Immobilie. Geben Sie einfach folgenden Link in die Adresszeile Ihres Browsers ein und begeben Sie sich auf Entdeckungstour: https://app.immoviewer.com/portal/tour/3112797
Oder besuchen Sie und auf YouTube: https://youtu.be/Lg1vtUPbZ1M?si=ytiN2sU6bM6h8xuS
Viel Platz zum Wohnen und fürs Hobby - FALC Immobilien Heilbronn
74078 Heilbronn
Die vollständige Adresse der Immobilie erhalten Sie vom Anbieter.
Auf Karte anzeigen
Die vollständige Adresse der Immobilie erhalten Sie vom Anbieter.
Finanzierungszertifikat
In nur zwei Minuten zu Ihrem persönlichen Finanzierungszertifkat.
Infos
| Haustyp | Einfamilienhaus |
|---|---|
| Etagenzahl | 2 |
| Wohnfläche ca. | 223 m2 |
| Grundstücksfläche | 1.331 m2 |
| Bezugsfrei ab | Dezember 2025 |
| Zimmer | 8 |
| Schlafzimmer | 5 |
| Badezimmer | 2 |
| Garage/Stellplatz | Garage |
| Anzahl Garage/Stellplatz | 7 |
Kosten
| Kaufpreis |
660.000 € |
|---|---|
| Provision |
3,57 % inkl. MwSt. vom Kaufpreis durch Abwälzung, weitere Info unter "sonstige Angaben" im Exposé |
Finanzierungsrechner:
Kaufpreis:
600.000 €
Eigenkapital:
600.000 €
Monatliche Rate
0 €
Effektiver Jahreszins
0 %
Sollzinsbindung
10 Jahre
Bausubstanz & Energieausweis
| Baujahr | 1914 |
|---|---|
| Letzte Sanierung | 2024 |
| Bauphase | Haus fertig gestellt |
| Objektzustand | Gepflegt |
| Qualität der Austattung | Normal |
| Heizungsart | Zentralheizung |
| Wesentliche Energieträger | Öl |
| Energieausweis | liegt vor |
| Energieausweistyp | Bedarfsausweis |
| Energieverbrauchskennwert | 152,0 kWh/(m²*a) |
| Energieeffizienzklasse | E |
152,0
kWh/(m²*a)
Energieeffizienzklasse E
- A+
- A
- B
- C
- D
- E
- F
- G
- H
- 0
- 25
- 50
- 75
- 100
- 125
- 150
- 175
- 200
- 225
- >250
Beschreibung des Objekts
Ausstattung
Hier werden Ihre Träume und Wünsche endlich wahr!
Dieses wundervolle Anwesen bietet Ihnen grenzenlose Möglichkeiten zur Umsetzung Ihrer Ideen jeglicher Art!
Ihr neues Zuhause befindet an einer ruhigen Nebenstraße in Heilbronn-Biberach. Parken Sie bis zu 20 Fahrzeuge in der Garage, der Scheune oder der Maschinenhalle, weitere Abstellmöglichkeiten finden Sie im Hof. Reparieren und Warten erfolgt bequem und kostengünstig in den Räumlichkeiten der Maschinenhalle. Erweitert wird diese ungewöhnliche Männerhöhle durch einen über 66 m² großen Hobbyraum mit Gäste-WC, hier können Sie richtig groß feiern.
Viel Grün erwartet Sie neben einem großen Hof. Im Winter wird der Schneemann zum Familienmitglied, im Frühling sind Sie mit der erwachenden Natur verbunden, im Hochsommer gibt es Platz für einen Pool und im Spätsommer werden Grillabende mit Freunden zu einer schönen, bleibenden Erinnerung.
Betreten Sie Ihr zukünftiges Zuhause über den Eingang der Straße abgewandt im Hof und finden sich im breiten Treppenhaus wieder. Die beiden Stockwerke sind baugleich aufgeteilt und können daher auch als zwei abgeschlossene Wohneinheiten fungieren. Möchten Sie den Teenie oder die Schwiegermama für mehr Privatsphäre ausquartieren oder Ihr Bankkonto mit einer zusätzlichen Geldeinnahme durch Vermietung füllen? Beides wäre möglich.
Dank des breiten Flures können Sie eine praktische Garderobe anbringen oder einen Schrank aufbauen und Ihre Jacken, Taschen und Schuhe sind sicher verstaut. Linker Hand finden Sie den Dreh - und Angelpunkt Ihres neuen Heimes, ein großzügiges Wohnzimmer vor, hier verbringen Sie kuschelige Stunden mit Ihrer Familie und feuchtfröhliche Abende mit Ihren Freunden. Im Erdgeschoss wurde eine Wand entfernt, das offene Raumkonzept besticht mit viel Raum und Licht, ein Kachelofen zusätzlich für heimelige Kuschelwärme, bestimmt wird dies Ihr neuer Lieblingsplatz zum Bücher schmökern.
Zwei weitere helle, fast gleich große Zimmer eignen sich hervorragend als Schlaf- oder Kinderzimmer, selbstverständlich kann sich die Gattin des Hauses auch ein Bastelzimmer, der Gatte sein Büro einrichten.
Sie haben schon immer von einer Küche geträumt, die Sie auf Ihren Reisen durch die Gourmetwelt begleitet? Hier hat das Träumen ein Ende. Verwöhnen Sie Ihre Familie und Freunde mit gutem Essen in Ihrem Eigenheim. Zahlreiche Schränke und ein praktisches Eckrondell bieten Platz für Vorräte und Kochutensilien, eine große Kühl- und Gefrierkombination beherbergen frische Waren. Natürlich darf der Geschirrspüler genauso wenig fehlen wie ein großes Spülbecken. Ein Backofen sowie viel Arbeitsfläche lässt das Kochherz höher schlagen. Auch hier wäre Platz für eine gemütliche Essecke.
Das Badezimmer wartet darauf, von Ihnen erobert zu werden. Ausgestattet mit großem Waschbecken, kommt man sich bestimmt nicht mehr in die Quere. Bei einem heißen Bad in der Badewanne die Seele baumeln lassen oder lieber zeit- und wassersparend eine Abkühlung genießen? Hier ist für jedermann etwas dabei! Ein separates WC verhindert lästige Störungen.
Das Untergeschoss bietet viel Platz für Vorräte, selten genutzte Dinge und eine Waschküche, auch der Heizungsraum und die Öltanks sind hier untergebracht. Ein Gewölbekeller, in dem das ganze Jahr über die annähernd gleiche Temperatur herrscht, beherbergt Vorräte und das gute Tröpfchen.
Funktional, komfortabel und mit dem gewissen Etwas wartet dieses Schmuckstück auf seine neuen Besitzer! Schicken Sie uns direkt eine Anfrage zur Besichtigung.
Lage
Weinstadt mit vielen Facetten.
Heilbronn ist eine Großstadt im Norden Baden-Württembergs, mit dem Neckar als Lebensader. Mit über 124.000 Einwohnern ist sie die sechstgrößte Stadt des Bundeslandes.
Die hier angebotene Immobilie befindet sich im Stadtteil Biberach. Rund 5000 Einwohner haben hier bereits ihr Zuhause gefunden.
Biberach, deren Einwohner Biwweracher genannt werden, verfügt über drei Kindergärten, eine Grundschule mit Ganztagsbetreuungsangebot, ein großzügiges Sportzentrum, die Böllingertalhalle als weitere Sport- und Veranstaltungsstätte und das Hallenbad. Für die tägliche Grundversorgung finden sich Bäcker, Metzger, ein Lebensmittelmarkt und eine Apotheke vor Ort.
Fast jeder dritte Biberacher ist Mitglied im größten Verein des Stadtteils: Der TSV bietet Sport- und Freizeitangebote für die ganze Familie, von Fußball, Leichtathletik und Handball über Frauengymnastik bis zu Gesundheitssport und Tischtennis. Auch im kulturellen Bereich verfügt der Stadtteil über ein reges Vereinsleben, zu dem etwa die Musikkapelle, der Gesangverein Liederkranz Alpenrose und der Interessenkreis Heimatgeschichte gehören. Der Jugendtreff und die Zweigstellen von Volkshochschule, Städtischer Musikschule und Stadtbibliothek runden das Angebot ab.
Weitere Freizeit- und Erholungsmöglichkeiten bieten der Radrundweg um Biberach und der Trimm-Dich-Pfad im Gemeindewald genauso wie der Täler- und Auenpark. Naherholung ist auch in den Tälern des Böllinger-, Michel- und Kühnbachs möglich. Beliebte Veranstaltungen für Jung und Alt sind u.a. das Maifest und alle zwei Jahre der Kultursommer im Wechsel mit dem Stegstreckerfest.
Wohlfühlen ist hier garantiert!
Sonstige Angaben
Die Objektbeschreibung beruht ganz oder zum Teil auf Angaben des Eigentümers, der Text wurde teilweise mit Unterstützung künstlicher Intelligenz bearbeitet und überprüft. Für die Richtigkeit oder Vollständigkeit übernehmen wir keine Gewähr.
Beim ausgewiesenen Preis handelt es sich um den Angebotspreis, der sich durch Verhandlungen auch verändern kann. Bei diesem Objekt ist nicht vorgesehen, dass der Käufer mit uns eine eigenständige Provisionsvereinbarung trifft, sofern dieser als Verbraucher (§ 14 BGB) zu qualifizieren ist. Der Verkauf erfolgt nur an denjenigen, der sich bereit erklärt, einen Teil der vom Verkäufer zugesagten Provision zu übernehmen. Dieser Anteil beträgt in diesem Fall 3,57 % inkl. MwSt. vom Kaufpreis und ist nach Abschluss des Kaufvertrages zur Zahlung fällig.
Vereinbaren Sie noch heute einen unverbindlichen Besichtigungstermin und überzeugen Sie sich selbst! Terminvorschläge an: heilbronn@falcimmo.de. Da wir die Termine für Besichtigungen mit größter Sorgfalt planen, bitten wir Sie um Verständnis dafür, dass Termine ausschließlich in schriftlicher Form per E-Mail vereinbart werden können. Um fair und gerecht gegenüber jedem unserer Interessenten zu werden, ist dies unumgänglich. Wir freuen uns über Ihre Kontaktaufnahme! Geben Sie bitte immer die vollständige ADRESSE und RUFNUMMER an!
Ihr Ansprechpartner: Andreas Franzke, heilbronn@falcimmo.de
Besuchen Sie uns auch in unserem Büro in: Neckarsulmer Str. 2, 74076 Heilbronn
Sie denken selbst über die Veräußerung Ihrer Immobilie nach oder möchten einfach nur wissen, was diese wert ist? Bei uns erhalten Sie kostenlos eine professionelle Wertermittlung! Gehen Sie hierzu auf: https://www.falcimmo.de/wertermittlung-immobilien.html oder kontaktieren Sie uns.
Weitere Dokumente
360° Rundgang starten.pdfFinanzierungsvorschlag-FALC-SL
Grundriss
Erdgeschoss
>
>
Dachgeschoss als Schlafräume
>
>
Dachgeschoss als eigene Einhei
>
>
Untergeschoss
>
>
Adresse
74078 Heilbronn
Interessante Orte
Preis- und Lageinformationen
Preistrend für Bestandsimmobilien in Biberach