Dieses Reihenendhaus wurde im Jahre 1928 in Massivbauweise errichtet.
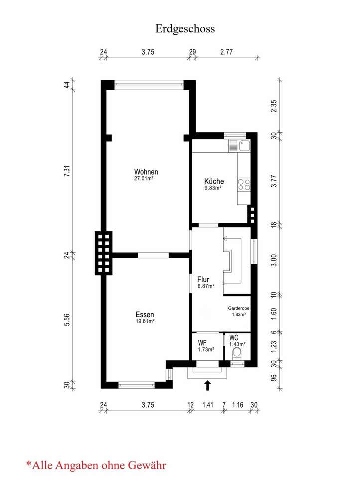
Durch den Eingangsbereich gelangt man über den zentralen Flur in den großzügigen Wohn- und Essbereich, der den Mittelpunkt des Erdgeschosses bildet. Beide Räume sind separat über zwei Zimmertüren zugänglich und können bei Bedarf durch eine klassische Schiebetür voneinander getrennt werden. Die Küche ist wertig ausgestattet und bietet ausreichend Platz zum gemeinsamen Kochen. Direkt am Eingang befindet sich die Garderobe und ein Gäste-WC.
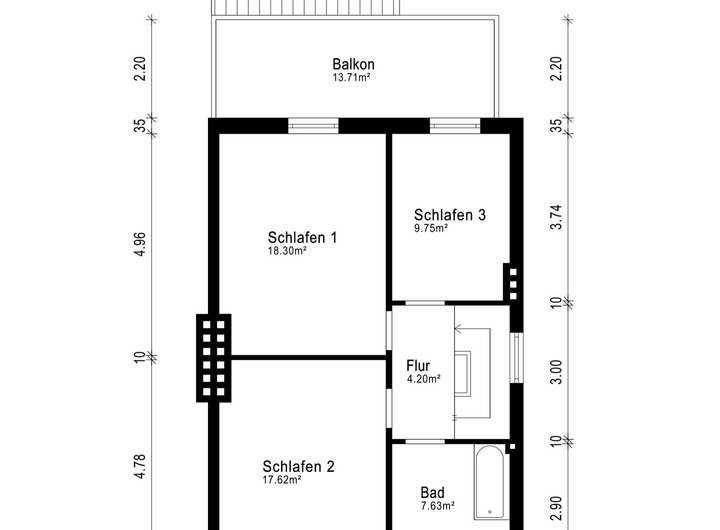
Im Obergeschoss stehen drei geräumige Zimmer zur Verfügung, die flexibel als Schlafzimmer, Arbeitszimmer, Kinderzimmer oder Gästezimmer genutzt werden können. Das Tageslichtbadezimmer mit Duschwanne befindet sich ebenfalls auf dieser Etage.
Das Dachgeschoss bietet ein weiteres Schlafzimmer sowie ein zusätzliches Zimmer (Schlafzimmer 5), das sich vielseitig nutzen lässt. Über eine Raumspartreppe gelangt man von hier in den ausgebauten Spitzboden, der sich gut als z.Bsp. Kinderspielzimmer eignet. Ein kleiner separater Raum (Büro) ergänzt das Raumangebot in dieser Etage.
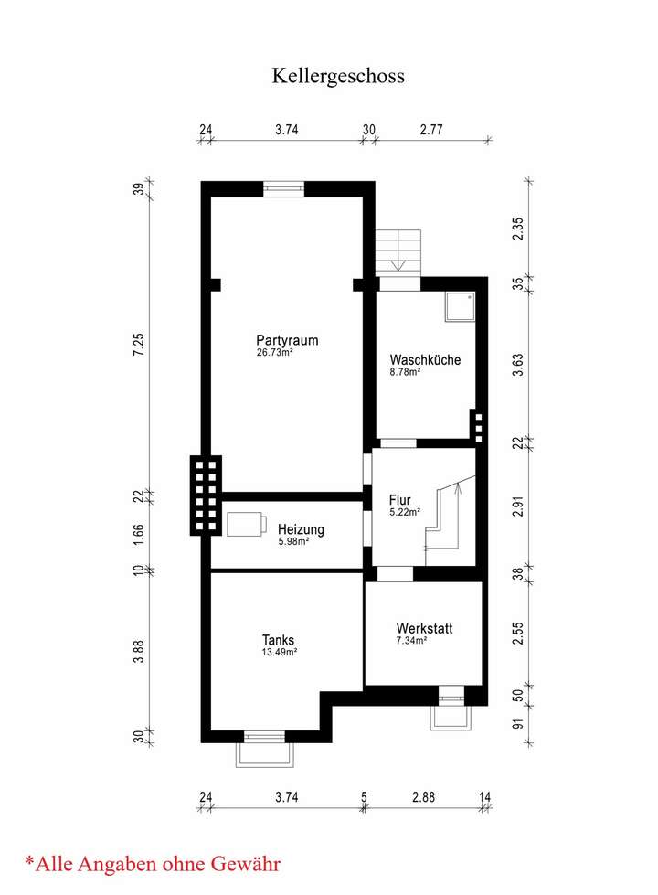
Im Kellergeschoss befindet sich eine Waschküche mit zusätzlicher Dusche und direktem Zugang zum Garten. Darüber hinaus gibt es einen Partyraum, eine kleine Werkstatt und den Heizungsraum.
Der Garten bietet zahlreiche Gestaltungsmöglichkeiten, beispielsweise für eine Grünfläche, einen Spielbereich oder den Einbau eines Pools. Dank der seitlichen Zuwegung ist der Garten auch unabhängig vom Haus bequem erreichbar.
TOP Lage - Reihenendhaus in Bremen-Gete mit großem Garten
28211 Bremen
Die vollständige Adresse der Immobilie erhalten Sie vom Anbieter.
Auf Karte anzeigen
Die vollständige Adresse der Immobilie erhalten Sie vom Anbieter.
Finanzierungszertifikat
In nur zwei Minuten zu Ihrem persönlichen Finanzierungszertifkat.
Infos
| Haustyp | Reiheneckhaus |
|---|---|
| Etagenzahl | 4 |
| Wohnfläche ca. | 158 m2 |
| Nutzfläche | 67,54 m2 |
| Grundstücksfläche | 341 m2 |
| Bezugsfrei ab | gemäß Vereinbarung |
| Zimmer | 7 |
| Schlafzimmer | 5 |
| Badezimmer | 1 |
Kosten
| Kaufpreis |
500.000 € |
|---|---|
| Provision |
3,57 % (inkl. 19 % MwSt.) vom beurkundeten Kaufpreis, jeweils vom Käufer und Verkäufer |
Finanzierungsrechner:
Kaufpreis:
600.000 €
Eigenkapital:
600.000 €
Monatliche Rate
0 €
Effektiver Jahreszins
0 %
Sollzinsbindung
10 Jahre
Bausubstanz & Energieausweis
| Baujahr | 1928 |
|---|---|
| Objektzustand | Renovierungsbedürftig |
| Heizungsart | Öl-Heizung |
| Wesentliche Energieträger | Öl |
| Energieausweis | liegt vor |
| Energieausweistyp | Bedarfsausweis |
| Energieverbrauchskennwert | 261,3 kWh/(m²*a) |
| Energieeffizienzklasse | H |
261,3
kWh/(m²*a)
Energieeffizienzklasse H
- A+
- A
- B
- C
- D
- E
- F
- G
- H
- 0
- 25
- 50
- 75
- 100
- 125
- 150
- 175
- 200
- 225
- >250
Beschreibung des Objekts
Ausstattung
Exemplarisch weisen wir auf folgende Ausstattungsdetails hin:
7 Zimmer
Küche mit EBK
Tageslicht Vollbad
Gäste-WC
Betonpfannen Dacheindeckung aus ca. 1992
Öl-Heizung mit WW-Aufbereitung ca. 2014
Vollkeller
Lage
Die Immobilie befindet sich im Bremer Stadtteil Gete, einer ruhigen und gefragten Wohnlage in Schwachhausen.
Das Umfeld ist geprägt von gepflegten Wohnhäusern, grünen Straßen und einer guten Nachbarschaft. Einkaufsmöglichkeiten, Supermärkte, Bäckereien und Apotheken sind fußläufig erreichbar. Auch Kindergärten und Schulen, wie die Grundschule An der Gete oder das Kippenberg-Gymnasium liegen in der Nähe.
Die Anbindung an den öffentlichen Nahverkehr ist sehr gut: Die Buslinien 24 und 25 sind zu Fuß in wenigen Minuten erreichbar und fahren direkt in die Innenstadt sowie zum Hauptbahnhof. Für Autofahrer ist die A 27 in wenigen Minuten erreichbar.
Für Erholung und Freizeit bietet der Bürgerpark in kurzer Entfernung viel Platz zum Spazierengehen, Radfahren oder Joggen. Ebenso befinden sich Sportanlagen, Spielplätze und kleinere Grünflächen im direkten Umfeld. Die medizinische Versorgung ist durch nahegelegene Arztpraxen, das St. Josef-Stift und das Klinikum Bremen-Mitte sichergestellt.
Sonstige Angaben
Die Immobilie weist am rückwärtigen Teil des Gebäudes im Innen- und Außenbereich erhebliche Rissbildung in der Fassade auf. Ein Kostenvoranschlag für Gründungssanierung (Pfahlgründung) eines namhaften Fachbetriebes liegt vor und beläuft sich auf rund € 55.000,00 (inkl. 19% MwSt.). Das detaillierte Angebot stellen wir auf Anfrage gerne zur Verfügung.
Die Stromleitungen im Haus sind sowohl 3- als auch 2 Adrig
Der Abwasserkanal besteht aus ursprünglichen Tonrohren.
Die aktuelle Grundsteuer beträgt: ca. 655,00 € p. a.
Unsere Objektangaben basieren auf den uns erteilten Informationen. Eine Haftung für die Richtigkeit und Vollständigkeit können wir deshalb nicht übernehmen.
Grundriss
Grundriss EG
>
>
Grundriss OG
>
>
Grundriss DG
>
>
Grundriss KG
>
>
Adresse
28211 Bremen
Interessante Orte
Preis- und Lageinformationen
Preistrend für Bestandsimmobilien in Gete