Viele tausend Bauherren haben sich Ihren Wunsch vom eigenen Haus bereits mit uns erfüllt!
Unsere Häuser sind völlig flexibel mit veränderbaren Grundrissen und variablen estaltungsmöglichkeiten, Sie können Ihr Haus somit vollkommen auf Ihre Bedürfnisse anpassen und planen. Die Nettogrundfläche unseres Lifestyle 14.01 S beträgt 145,54 m².
Wir beraten und helfen Ihnen gerne dabei hier Ihr Traumhaus zu planen.
Wohnnebenkosten sind Dank dem massa-ecoBalance-System ebenfalls dauerhaft niedrig! Klimawandel und damit verbundene steigende Energiekosten werden durch unsere Haustechnik von Markenherstellern mit zukunftsweisender Technologie reduziert.
**Wagen Sie JETZT den Sprung raus aus der Miete und rein in Ihr neues Zuhause!!**
41844 Wegberg
Die vollständige Adresse der Immobilie erhalten Sie vom Anbieter.
Auf Karte anzeigen
Die vollständige Adresse der Immobilie erhalten Sie vom Anbieter.
Finanzierungszertifikat
In nur zwei Minuten zu Ihrem persönlichen Finanzierungszertifkat.
Infos
| Haustyp | Einfamilienhaus |
|---|---|
| Etagenzahl | 2 |
| Wohnfläche ca. | 146 m2 |
| Nutzfläche | 146 m2 |
| Grundstücksfläche | 420 m2 |
| Zimmer | 6 |
| Schlafzimmer | 4 |
| Badezimmer | 2 |
Kosten
| Kaufpreis |
438.790 € |
|---|---|
| Provision | Nein |
Finanzierungsrechner:
Kaufpreis:
600.000 €
Eigenkapital:
600.000 €
Monatliche Rate
0 €
Effektiver Jahreszins
0 %
Sollzinsbindung
10 Jahre
Bausubstanz & Energieausweis
| Baujahr | 2026 |
|---|---|
| Bauphase | Haus in Planung (projektiert) |
| Objektzustand | Erstbezug |
| Qualität der Austattung | Normal |
| Heizungsart | Fußbodenheizung |
Beschreibung des Objekts
Ausstattung
Das Ausbauhaus ist von außen fix und fertig!
Wohnraumerhöhung auf 2,75m ist GRATIS.
Modernes Niedrigenergie-Haus (KfW 55) mit Top-Architektur und modernster Energiespartechnik.
-inkl. ARCHITEKTENLEISTUNG (Genehmigungsplanung und Bauantrag)
- inkl. GRUNDSTÜCK
- inkl. Baugrunduntersuchung
- inkl. Dach
- inkl. mineralischer Struktur-Außenputz (weiß)
- inkl. 3-fach verglasten Wärmeschutzfenster (weiß)
- inkl. Rollläden
- inkl. modernem Haustürelement (Auswahl)
- inkl. Elektro mit Montage
- inkl. Material Dämmung und Beplankung
- inkl. Buchenholztreppe
- inkl. Kompakt-Luft-Wasser-Wärmepumpe mit Fussbodenheizung EG/DG mit Montage
- inkl. kontrollierter Be- und Entlüftung mit Montage
- inkl. Sanitärrohinstallation mit Montage
Lage
Das Haus ist auf einem realen Grundstück geplant. Wir bitten jedoch um Verständnis, dass wir ohne ein persönliches Gespräch über das Haus keine Grundstücksdaten weiterleiten.
Wir können Ihren Haustraum auch gerne auf einem anderen Grundstück realisieren
Sonstige Angaben
Ich freue mich auf Ihren Anruf!
Ihre Gina Görtz
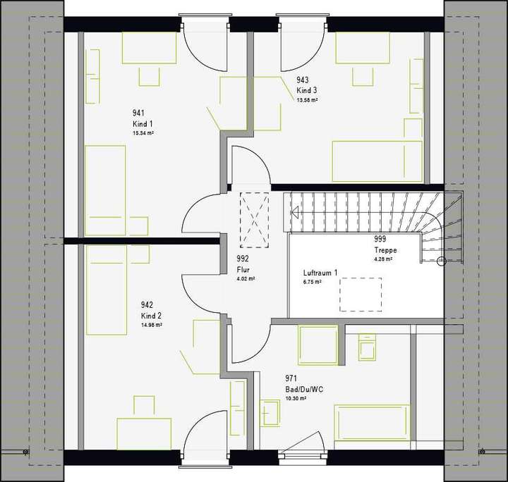
Grundriss
Erdgeschoss
>
>
Dachgeschoss
>
>
Adresse
41844 Wegberg
Interessante Orte
Preis- und Lageinformationen
Preistrend für Bestandsimmobilien in Wegberg