Willkommen in Ihrem neuen Zuhause! Diese charmante Doppelhaushälfte wird nach Ihren individuellen Vorstellungen projektiert und bietet Ihnen die Möglichkeit, all Ihre Wünsche zu verwirklichen. Mit einer großzügigen Wohnfläche von 113,64 m² auf einem 355 m² großen Grundstück, verteilen sich die 3 Zimmer auf zwei Etagen. Der durchdachte Grundriss umfasst zwei Schlafzimmer, ein Badezimmer und genügend Platz für Ihre persönliche Entfaltung. Als KFW55 Haus entspricht es höchsten Effizienzstandards und trägt somit zu einem nachhaltigen Wohnen bei.
Ihr Traumhaus in Bornheim - Doppelhaushälfte nach Ihren Wünschen inkl. Grundstück
53332 Bornheim
Die vollständige Adresse der Immobilie erhalten Sie vom Anbieter.
Auf Karte anzeigen
Die vollständige Adresse der Immobilie erhalten Sie vom Anbieter.
Finanzierungszertifikat
In nur zwei Minuten zu Ihrem persönlichen Finanzierungszertifkat.
Infos
| Haustyp | Doppelhaushaelfte |
|---|---|
| Etagenzahl | 2 |
| Wohnfläche ca. | 113 m2 |
| Grundstücksfläche | 355 m2 |
| Zimmer | 3 |
| Schlafzimmer | 2 |
| Badezimmer | 1 |
Kosten
| Kaufpreis |
476.289 € |
|---|
Finanzierungsrechner:
Kaufpreis:
600.000 €
Eigenkapital:
600.000 €
Monatliche Rate
0 €
Effektiver Jahreszins
0 %
Sollzinsbindung
10 Jahre
Bausubstanz & Energieausweis
| Baujahr | unbekannt |
|---|---|
| Bauphase | Haus in Planung (projektiert) |
Beschreibung des Objekts
Ausstattung
Die bauliche und technische Ausstattung lässt keine Wünsche offen:
- Energieeffizienzwand
- Echtholztreppe
- Luft-Wasser-Wärmepumpe
- Fußbodenheizung
- Be- und Entlüftungsanlage
- 3-fach verglaste Fenster inklusive Rollläden mit Aluminiumlamellen
- Lichte Raumhöhe von 2,75 m
- TOXPROOF Gütesiegel - schadstoffgeprüfte Materialien
- Just-in-Time-Lieferungen
- Bemusterung im eigenen Bemusterungszentrum mit Markenprodukten
Die Kombination aus Qualität und durchdachtem Design sorgt für ein angenehmes Wohnklima.
Lage
Bornheim bietet Ihnen eine hervorragende Infrastruktur mit Schulen, Einkaufsmöglichkeiten und Freizeitangeboten in unmittelbarer Nähe. Sie genießen die Vorzüge eines ruhigen Wohngebiets und sind dennoch schnell in der Stadt. Die Umgebung lädt zu Spaziergängen und Erholung im Freien ein.
Sonstige Angaben
allkauf heißt: Maximale Sicherheit, kurze Lieferzeiten, garantierte Fertigstellung.
Wer sich den Traum von den eigenen vier Wänden erfüllen möchte, sieht oftmals vielen Unsicherheiten entgegen. Mit einem allkauf Fertighaus profitieren Sie von kurzen Lieferzeiten, einer Liefergarantie, garantierter Sicherheit, Festpreisgarantie und Fertigstellungsgarantie.
Zu allen Häusern gehört:
- Energieeffizienzwand
- Echtholztreppe
- Luft-Wasser-Wärmepumpe
- Fußbodenheizung
- Be- und Entlüftungsanlage
- 3-fach verglaste Fenster inklusive Rollläden mit Aluminiumlamellen
- Lichte Raumhöhe 2,75 m
- inkl. erhöhten Fenstern und Türen
- TOXPROOF Gütesiegel - schadstoffgeprüfte Materialien
- Just-in-Time-Lieferungen
- Bemusterung im eigenen Bemusterungszentrum mit Markenprodukten
Vereinbaren Sie noch heute Ihren Termin zur Planung Ihres allkauf Traumhauses!
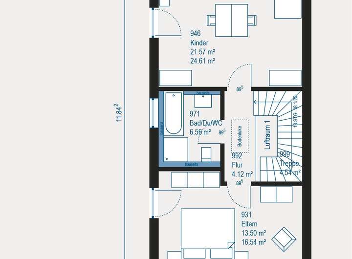
Grundriss
Grundriss
>
>
Grundriss
>
>
Adresse
53332 Bornheim
Interessante Orte
Preis- und Lageinformationen
Preistrend für Bestandsimmobilien in Bornheim