Willkommen in Ihrer neuen Doppelhaushälfte in Bornheim! Dieses attraktive Projekt wird ganz nach Ihren individuellen Wünschen und Vorstellungen gestaltet. Genießen Sie die Vorzüge eines modernen Lebensstils auf 137,5 m², verteilt auf zwei Etagen mit 3 Zimmern, darunter 2 Schlafzimmer und ein stilvolles Badezimmer. Diese Doppelhaushälfte ist nicht nur ein Ort zum Wohnen, sondern ein Raum, der Ihre persönlichen Träume verwirklicht. Die Verwendung von hochwertigen Materialien und innovativen Baukonzepten sorgt für ein harmonisches Wohnambiente, das Sie begeistern wird. Mit dem KFW55 Standard profitieren Sie zudem von einer hohen Energieeffizienz und tragen aktiv zur Schonung der Umwelt bei.
Willkommen in Ihrem maßgeschneiderten Doppelhaus inkl. Grundstück und ausgebautem Spitzboden
53332 Bornheim
Die vollständige Adresse der Immobilie erhalten Sie vom Anbieter.
Auf Karte anzeigen
Die vollständige Adresse der Immobilie erhalten Sie vom Anbieter.
Finanzierungszertifikat
In nur zwei Minuten zu Ihrem persönlichen Finanzierungszertifkat.
Infos
| Haustyp | Doppelhaushaelfte |
|---|---|
| Etagenzahl | 2 |
| Wohnfläche ca. | 137 m2 |
| Grundstücksfläche | 335 m2 |
| Zimmer | 3 |
| Schlafzimmer | 2 |
| Badezimmer | 1 |
Kosten
| Kaufpreis |
496.539 € |
|---|
Finanzierungsrechner:
Kaufpreis:
600.000 €
Eigenkapital:
600.000 €
Monatliche Rate
0 €
Effektiver Jahreszins
0 %
Sollzinsbindung
10 Jahre
Bausubstanz & Energieausweis
| Baujahr | unbekannt |
|---|---|
| Bauphase | Haus in Planung (projektiert) |
Beschreibung des Objekts
Ausstattung
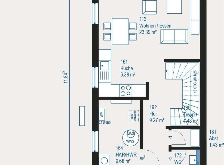
- Wohnfläche: 137,50 m²
- Grundstücksgröße: 335,00 m²
- 2 Etagen
- 3 Zimmer (2 Schlafzimmer, 1 Badezimmer)
- KFW55 Standard
- Fußbodenheizung
- Echtholztreppe
- Lichte Raumhöhe von 2,75 m
- 3-fach verglaste Fenster inklusive Rollläden mit Aluminiumlamellen
- TOXPROOF Gütesiegel für schadstoffgeprüfte Materialien
Highlights:
- Modernes Design und individuelle Gestaltung
- Energieeffiziente Bauweise
- Hohe Qualität in Ausstattung und Materialien.
Lage
Die Doppelhaushälfte befindet sich in der charmanten Stadt Bornheim, die eine hervorragende Lebensqualität bietet. Die Infrastruktur ist optimal ausgebaut, mit diversen Einkaufsmöglichkeiten, Schulen und Kindergärten in unmittelbarer Nähe. Genießen Sie die ruhige Wohnlage und profitieren Sie gleichzeitig von der Nähe zu städtischen Einrichtungen. Freizeitmöglichkeiten wie Parks und Sporteinrichtungen sind ebenfalls in der Umgebung vorhanden, die Ihnen eine Vielzahl an Aktivitäten bieten.
Sonstige Angaben
allkauf steht für maximale Sicherheit, kurze Lieferzeiten und garantierte Fertigstellung. Wenn Sie sich den Traum von den eigenen vier Wänden erfüllen möchten, sind Sie bei uns genau richtig. Wir bieten Ihnen:
- kurze Lieferzeiten
- Liefergarantie
- garantierte Sicherheit
- Festpreisgarantie
- Fertigstellungsgarantie
Zu allen Häusern gehört:
- Energieeffizienzwand
- Echtholztreppe
- Luft-Wasser-Wärmepumpe
- Fußbodenheizung
- Be- und Entlüftungsanlage
- 3-fach verglaste Fenster inklusive Rollläden mit Aluminiumlamellen
- Lichte Raumhöhe 2,75 m
- inkl. erhöhten Fenstern und Türen
- TOXPROOF Gütesiegel - schadstoffgeprüfter Materialien
- Just-in-Time-Lieferungen
- Bemustern im eigenen Bemusterungszentrum mit Markenprodukten
Vereinbaren Sie noch heute Ihren Termin zur Planung Ihres allkauf Traumhauses!
Grundriss
Grundriss
>
>
Grundriss
>
>
Grundriss
>
>
Adresse
53332 Bornheim
Interessante Orte
Preis- und Lageinformationen
Preistrend für Bestandsimmobilien in Bornheim