Verkauft wird ein 2-geschossiges, vollunterkellertes Wohnhaus, das frei übergeben wird.
Insgesamt bietet das ursprünglich um 1937 in Massivbauweise errichtete und 2018 um einen Wintergarten erweiterte Mittelhaus ca. 88m² Wohnfläche, einen ca. 22m² großen Wintergarten, ca. 32m² Keller, eine große Terrasse und einen gärtnerisch angelegten Garten.
Die Gesamtnutzfläche beträgt ca. 142m².
Das Haus hat 4 Zimmer, eine Küche sowie ein Duschbad mit Fußbodenheizung und ein separates WC. Es befindet sich in einem reinen Wohngebiet in Frankfurt-Zeilsheim auf einem rechteckig geschnittenen Grundstück von ca. 202m².
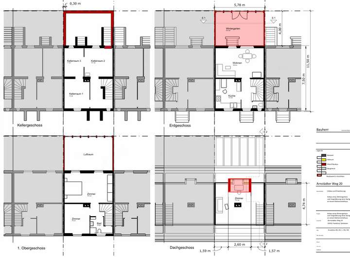
Im Erdgeschoss finden sich die gut ausgestattete Einbauküche, ein WC, ein Wohn-/Esszimmer mit Ausgang zum Wintergarten, der Terrasse und dem Garten.
Das Obergeschoss wird durch eine Holztreppe mit massiven Eiche-Trittstufen erschlossen.
Im Obergeschoss finden sich zwei gut geschnittene Wohn-/Schlafzimmer und ein Tageslicht-Duschbad mit WC. Vom Bad führt die Treppe mit massiven Kiefer-Trittstufen ins DG, das einen offenen Wohnraum bietet.
An das Wohnzimmer schließt der großzügige Wintergarten mit Ausgang zur Terrasse und dem Garten an. Der trockene Keller wird vom Flur im EG erschlossen. Ein Kellerraum ist Lagerraum. Im Heizungsraum befindet sich die neuwertige Gas-Brennwerttherme, Baujahr 2023, und es ist ausreichend Platz für Waschmaschine, Wäschetrockner und Kühltruhe. Der dritte Raum wurde als Büroraum genutzt.
Das Objekt ist renoviert, in sehr gepflegtem Zustand und wohnfertig.
Rechnungsbelege über mehr als 80.000 Euro können bei der Besichtigung eingesehen werden. Darin sind die Kosten für die PV-Anlage, den Dachgeschossausbau und die Grundrenovierung incl. neuer Fenster, Badausbau etc. aus 2018 noch nicht einmal berücksichtigt!
Ausstattung
- Vollständig renoviert, sehr gepflegt
- 1,98 KWp PV-Anlage
- Gas Brennwert Heizung Baujahr 2023
- Einbauküche
- Bad mit Fußbodenheizung
- Eiche-Parkett- Terracotta- und Fliesenböden
- Wintergarten
- Klimaanlage im DG
Schön saniertes Eigentum, Einfamilienhaus ca. 100m², 4 Zi., provisionsfrei, wohnfertig mit Garten
Arnstädter Weg 20,
65931 Frankfurt am Main
Auf Karte anzeigen
Finanzierungszertifikat
In nur zwei Minuten zu Ihrem persönlichen Finanzierungszertifkat.
Infos
| Haustyp | Reihenmittelhaus |
|---|---|
| Etagenzahl | 2 |
| Wohnfläche ca. | 100 m2 |
| Nutzfläche | 142 m2 |
| Grundstücksfläche | 202 m2 |
| Bezugsfrei ab | 12.12.2025 |
| Zimmer | 4 |
| Schlafzimmer | 4 |
| Badezimmer | 1 |
Kosten
| Kaufpreis |
495.000 € |
|---|---|
| Provision | Nein |
Finanzierungsrechner:
Kaufpreis:
600.000 €
Eigenkapital:
600.000 €
Monatliche Rate
0 €
Effektiver Jahreszins
0 %
Sollzinsbindung
10 Jahre
Bausubstanz & Energieausweis
| Baujahr | 1937 |
|---|---|
| Letzte Sanierung | 2023 |
| Bauphase | Haus fertig gestellt |
| Objektzustand | Saniert |
| Qualität der Austattung | Gehoben |
| Heizungsart | Gas-Heizung |
| Wesentliche Energieträger | Gas |
| Energieausweis | liegt zur Besichtigung vor |
Beschreibung des Objekts
Ausstattung
Ausstattung
- Vollständig renoviert, sehr gepflegt
- 1,98 KWp PV-Anlage
- Gas Brennwert Heizung Baujahr 2023
- Einbauküche
- Bad mit Fußbodenheizung
- Eiche-Parkett- Terracotta- und Fliesenböden
- Wintergarten
- Klimaanlage im DG
- Terrasse
- Angelegter Garten
- 2 Geräteschuppen, ein Fahrradschuppen
Lage
Die Immobilie liegt in einem reinen Wohngebiet mittlerer Wohnlage im westlichen Frankfurter Stadtteil Zeilsheim.
Die S-Bahnstation Zeilsheim ist in 7 Minuten zu Fuß zu erreichen.
(Das letzte Foto zeigt den Blick vom S-Bahnhof Zeilsheim zum Arnstädter Weg.)
Mit der Linie S2 gibt es eine direkte Verbindung in die Frankfurter Innenstadt.
Der Feldrand, sowie Versorgungs- und Anlaufpunkte des täglichen Lebens wie auch Gaststätten sind nur wenige Minuten entfernt.
Der Autobahnanschluss zur A66, Hofheim, der Industriepark Höchst und der Flughafen sowie die A3 sind in nur wenigen Fahrminuten zu erreichen.
Es besteht eine sehr gute Anbindung zum Flughafen und mit dem Auto sind es ca. 20 Minuten bis zur Frankfurter Innenstadt sowie nach Wiesbaden und Mainz.
Zeilsheim ist der westlichste, ein beschaulicher und liebenswerter Stadtteil Frankfurts.
Sonstige Angaben
Keine vom Käufer zu zahlende Provision.
Der Bodenrichtwert des Grundstücks betrug 2024 laut Gutachterausschuss der Stadt Frankfurt 830,00 €/ m².
Die Preise für Wohnimmobilien (Häuserpreisindex) in Deutschland sind im 1. Quartal 2025 um durchschnittlich 3,8 % gegenüber dem 1. Quartal 2024 gestiegen. Gegenüber dem Vorquartal erhöhten sich die Preise um 1,4 %.
Wenn Sie in ungewissen Zeiten eine sichere Rendite entweder durch Eigennutzung oder Vermietung suchen, ist das ein lohnendes Objekt.
Ideal für Singles, Paare oder die kleine Familie, die ein Eigenheim mit Garten sucht.
Ich weise darauf hin, dass die Objektinformationen, Unterlagen, Pläne etc. vom Käufer auf ihre Richtigkeit hin zu überprüfen sind. Eine Haftung für die Richtigkeit oder Vollständigkeit der Angaben übernehme ich daher nicht. Das Immobilienangebot ist freibleibend und vorbehaltlich Irrtümer, Zwischenverkauf und Vermietung oder sonstiger Zwischenverwertung.
Nach dem Kauf sind die Grunderwerbsteuer, Notar- und Grundbuchkosten vom Käufer zu tragen. Die Möblierung ist nicht im Angebot enthalten. Makler- und Vermittleranfragen werden nicht beantwortet.
Ausführliche Informationen zur Immobilie stehen bereit.
Sprechen Sie mich an und verabreden Sie einen Besichtigungstermin mit mir.
Grundriss
Grundrisse
>
>
Adresse
Arnstädter Weg 20, 65931 Frankfurt am Main
Interessante Orte
Preis- und Lageinformationen
Preistrend für Bestandsimmobilien in Zeilsheim