Objektnr: 1066327
+ Familienfreundliche Wohnlage in einer ruhigen Sackgasse von Villingen-Schwenningen – ideal zur Eigennutzung
+ Der teils sichtgeschützte Garten auf ca. 483 m² Grundstück lädt zum Entspannen ein; eine Terrasse erweitert den Wohnkomfort
+ Der gepflegte Gesamtzustand der Immobilie ermöglicht eine zeitnahe Nutzung ohne großen Sanierungsaufwand
+ Solide Ausstattung mit durchdachter Raumaufteilung über mehrere Etagen, inklusive Einbauküche, hochwertigem Holzparkett und moderne Dusch wannenkombination
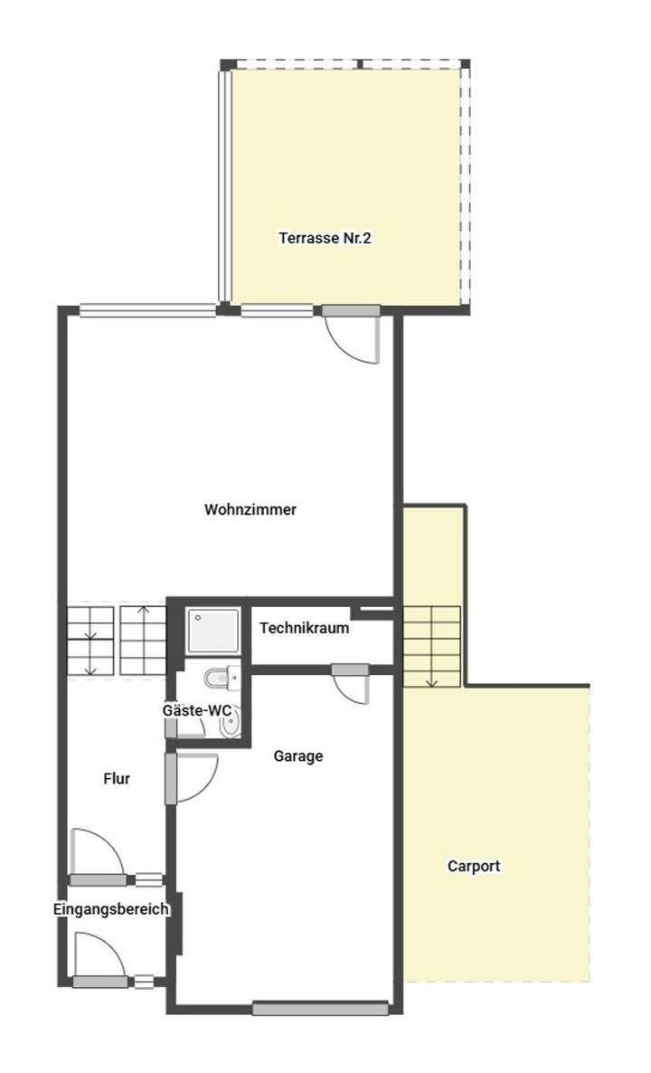
+ Zusätzlicher Stauraum durch den Keller sowie komfortable Parkmöglichkeiten dank Garage, Carport und zwei Außenstellplätzen
Reiheneckhaus auf dem Deutenberg – komfortabel leben in Top-Lage
78056 Villingen-Schwenningen
Die vollständige Adresse der Immobilie erhalten Sie vom Anbieter.
Auf Karte anzeigen
Die vollständige Adresse der Immobilie erhalten Sie vom Anbieter.
Finanzierungszertifikat
In nur zwei Minuten zu Ihrem persönlichen Finanzierungszertifkat.
Infos
| Haustyp | Reiheneckhaus |
|---|---|
| Etagenzahl | 3 |
| Wohnfläche ca. | 150 m2 |
| Grundstücksfläche | 483 m2 |
| Bezugsfrei ab | ab sofort |
| Zimmer | 6 |
| Schlafzimmer | 3 |
| Badezimmer | 2 |
| Garage/Stellplatz | Garage |
| Anzahl Garage/Stellplatz | 4 |
Kosten
| Kaufpreis |
364.900 € |
|---|---|
| Provision |
3,57 % Die Provision i.H.v. 3,57 % inkl. MwSt. ist mit Kaufvertragsbeurkundung fällig, sofern der Verkaufspreis über 83.000,00 € liegt. Liegt der Verkaufspreis dagegen bei/unter 83.000,00 €, ist die fest vereinbarte Mindestprovision i.H.v. mind. 5.950,00 € inkl. MwSt. mit Kaufvertragsbeurkundung fällig. Die Mindestprovision fällt insg. nur einmal an, wodurch Verkäufer und Käufer die Mindestprovision dann jeweils mit 2.975,00 € inkl. MwSt. tragen. |
Finanzierungsrechner:
Kaufpreis:
600.000 €
Eigenkapital:
600.000 €
Monatliche Rate
0 €
Effektiver Jahreszins
0 %
Sollzinsbindung
10 Jahre
Bausubstanz & Energieausweis
| Baujahr | 1986 |
|---|---|
| Bauphase | Haus fertig gestellt |
| Objektzustand | Gepflegt |
| Qualität der Austattung | Normal |
| Heizungsart | Gas-Heizung |
| Wesentliche Energieträger | Gas |
| Energieausweis | liegt vor |
| Energieausweistyp | Bedarfsausweis |
| Energieverbrauchskennwert | 131,6 kWh/(m²*a) |
| Energieeffizienzklasse | E |
131,6
kWh/(m²*a)
Energieeffizienzklasse E
- A+
- A
- B
- C
- D
- E
- F
- G
- H
- 0
- 25
- 50
- 75
- 100
- 125
- 150
- 175
- 200
- 225
- >250
Beschreibung des Objekts
Lage
+Attraktive Wohnlage mit idealen Voraussetzungen für Selbstnutzer und Kapitalanleger
+Bildung & Betreuung: Kindergarten und Schule sind bequem zu Fuß erreichbar – ideal für Familien.
+Gute Verkehrsanbindung: Die Bushaltestelle ist fußläufig erreichbar, Bahnhof und Autobahn sind ebenfalls schnell erreicht.
Sonstige Angaben
Vereinbaren Sie noch heute einen Besichtigungstermin!
_____________________________________________________
Alle Angaben sind ohne Gewähr und basieren ausschließlich auf Informationen, die uns von unserem Auftraggeber zur Verfügung gestellt wurden. Wir übernehmen keine Gewähr für die Vollständigkeit, Richtigkeit und Aktualität der Angaben.
Grundriss
Grundriss Skizze EG
>
>
Grundriss Skizze 1.OG
>
>
Grundriss Skizze 2.OG
>
>
Grundriss Skizze DG
>
>
Grundriss Skizze UG
>
>
Adresse
78056 Villingen-Schwenningen
Interessante Orte
Preis- und Lageinformationen
Preistrend für Bestandsimmobilien in Villingen-Schwenningen