Willkommen in Ihrem neuen Zuhause in der charmanten Gartenstadt Haan! Ursprünglich im Jahre 1914 erbaut, beeindruckt es durch seine beeindruckende Architektur und die bereits sanierte Gebäudehülle, die vor ca. 10 Jahren mit einem modernen Wärmedämmverbundsystem und neuen Fenstern versehen wurde.
Das Anwesen erstreckt sich über ein großzügiges Grundstück von ca. 1.191 m², welches Ihnen und Ihrer Familie reichlich Raum zur Entfaltung bietet. Mit einer Wohnfläche von ca. 210 m² verteilt sich das Haus auf zwei separate Wohneinheiten: eine im Erdgeschoss mit ca. 90 m² und eine im Obergeschoss und Dachgeschoss mit ca. 120 m². Diese Aufteilung bietet Flexibilität für verschiedene Lebenssituationen, seien es Mehrgenerationenwohnen, Vermietung oder ein eigenes Homeoffice.
Im Inneren zeigt sich das Haus renovierungsbedürftig, insbesondere im Innenausbau. Jedoch wurde bereits ein großer Teil der Bäder, Wasserleitungen und Elektrik modernisiert, was den Einstieg in die Renovierung erleichtert. Ein besonderes Highlight ist der teilweise wohnlich ausgebaute Keller, der mit einem praktischen Aufzug vom Erdgeschoss aus erreichbar ist und zusätzliche Nutzfläche von ca. 120 m² bietet.
Das Haus verfügt über fünf geräumige Zimmer, drei Schlafzimmer und vier moderne Badezimmer. Der vorhandene Kamin sorgt an kühlen Abenden für eine behagliche Atmosphäre. Eine Gas-Zentralheizung versorgt das Haus zuverlässig mit Wärme. Die sonnige Terrasse lädt zu entspannten Stunden im Freien ein.
Dieses charmante Zweifamilienhaus in Haan ist sofort nach Absprache verfügbar. Verpassen Sie nicht die Gelegenheit, dieses einzigartige Angebot zu entdecken und gestalten Sie Ihr Traumhaus nach Ihren eigenen Vorstellungen! Kontaktieren Sie uns noch heute, um einen Besichtigungstermin zu vereinbaren.
Renovierungsbedürftiges 2-Familienhaus mit Garage und parkähnlichen Grundstück
42781 Haan
Die vollständige Adresse der Immobilie erhalten Sie vom Anbieter.
Auf Karte anzeigen
Die vollständige Adresse der Immobilie erhalten Sie vom Anbieter.
Finanzierungszertifikat
In nur zwei Minuten zu Ihrem persönlichen Finanzierungszertifkat.
Infos
| Haustyp | Mehrfamilienhaus |
|---|---|
| Wohnfläche ca. | 210 m2 |
| Nutzfläche | 120 m2 |
| Grundstücksfläche | 1.191 m2 |
| Bezugsfrei ab | nach Absprache |
| Zimmer | 5 |
| Schlafzimmer | 3 |
| Badezimmer | 4 |
| Garage/Stellplatz | Garage |
| Anzahl Garage/Stellplatz | 1 |
Kosten
| Kaufpreis |
459.000 € |
|---|---|
| Provision |
3,57 % des Kaufpreises inkl. 19 % ges. MwSt. |
Finanzierungsrechner:
Kaufpreis:
600.000 €
Eigenkapital:
600.000 €
Monatliche Rate
0 €
Effektiver Jahreszins
0 %
Sollzinsbindung
10 Jahre
Bausubstanz & Energieausweis
| Baujahr | 1914 |
|---|---|
| Objektzustand | Renovierungsbedürftig |
| Heizungsart | Zentralheizung |
| Wesentliche Energieträger | Gas |
Beschreibung des Objekts
Ausstattung
- Zweifamilienhaus mit separaten Eingängen
- 210 qm Wohnfläche
- 1.191 qm parkähnliches Grundstück
- Obere Wohnung entkernt und renovierungsbereit
- EG Wohnung mit Auszug in KG ausgestattet
- Renovierte Bäder
- Balkon vorhanden
- Terrasse vorhanden
- Große Garage
- Unterkellert
- Gas-Zentralheizung
Lage
Das charmante Zweifamilienhaus befindet sich in einer ruhigen und dennoch zentralen Lage der idyllischen Stadt Haan im Kreis Mettmann. Eingebettet in eine grüne und familienfreundliche Umgebung bietet es den idealen Rückzugsort vom Trubel des Alltags. Haan zeichnet sich durch eine gut entwickelte Infrastruktur aus, die den Bewohnern sowohl Annehmlichkeiten als auch eine hervorragende Verkehrsanbindung bietet. In der Nähe des Hauses finden Sie eine Vielzahl von Einkaufsmöglichkeiten, Schulen und Kindergärten, die den täglichen Bedarf bequem abdecken. Die naheliegende Natur lädt zu erholsamen Spaziergängen und Freizeitaktivitäten im Freien ein. Dank der Nähe zu den Städten Düsseldorf und Wuppertal profitieren Sie von ausgezeichneten Pendelmöglichkeiten, sowohl mit dem Auto als auch mit öffentlichen Verkehrsmitteln. Diese Lage vereint die Vorzüge städtischen Lebens mit dem Charme und der Ruhe einer Kleinstadt, was sie zu einem besonders begehrten Wohnort macht.
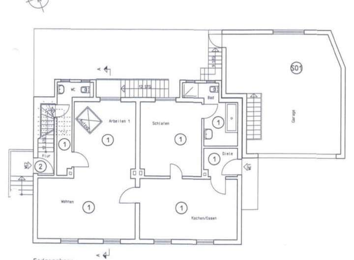
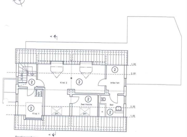
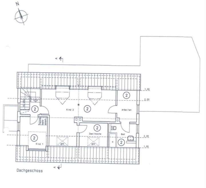
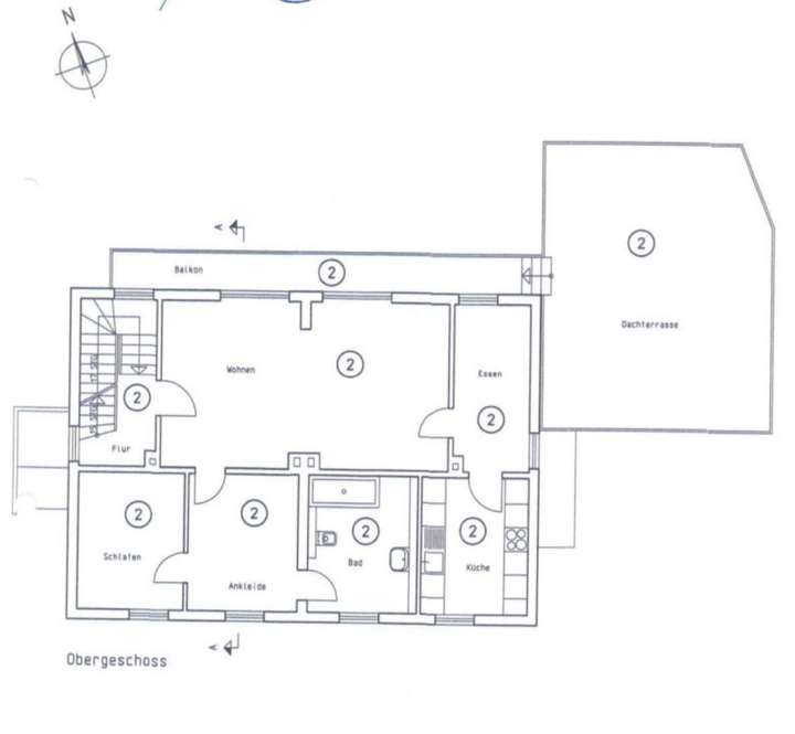
Grundriss
Grundriss KG
>
>
Grundriss EG
>
>
Grundriss OG
>
>
Grundirss DG
>
>
Grundriss Spitzboden
>
>
Adresse
42781 Haan
Interessante Orte
Preis- und Lageinformationen
Preistrend für Bestandsimmobilien in Haan