Herzlich willkommen in Ihrem technologisch hochwertigen Zuhause, wo Innovation und Komfort Hand in Hand gehen. Dieses Meisterwerk vereint modernste Technologie mit elegantem Design und erfüllt selbst die anspruchsvollsten Standards. Die Wohnräume sind mit innovativer Technologie ausgestattet, die den Komfort maximieren. Ihr Haus wird außerdem in der höchsten Effizienzklasse 40-KFN+QNG gebaut. Bei der individuellen Planung mit unseren Architekten kann alles an Ihre Wünsche, Bedürfnisse und Details angepasst werden. Das ist die Zukunft des Wohnens!
Familientraum – Glücklich leben im Eigenheim! EFH inkl. Bauplatz
79112 Freiburg im Breisgau
Die vollständige Adresse der Immobilie erhalten Sie vom Anbieter.
Auf Karte anzeigen
Die vollständige Adresse der Immobilie erhalten Sie vom Anbieter.
Finanzierungszertifikat
In nur zwei Minuten zu Ihrem persönlichen Finanzierungszertifkat.
Infos
| Haustyp | Einfamilienhaus |
|---|---|
| Wohnfläche ca. | 140 m2 |
| Nutzfläche | 0 m2 |
| Grundstücksfläche | 551 m2 |
| Zimmer | 5 |
| Schlafzimmer | 3 |
| Badezimmer | 1 |
| Anzahl Garage/Stellplatz | 1 |
Kosten
| Kaufpreis |
899.630 € |
|---|---|
| Provision | Nein |
Finanzierungsrechner:
Kaufpreis:
600.000 €
Eigenkapital:
600.000 €
Monatliche Rate
0 €
Effektiver Jahreszins
0 %
Sollzinsbindung
10 Jahre
Bausubstanz & Energieausweis
| Baujahr | 2026 |
|---|---|
| Bauphase | Haus in Planung (projektiert) |
| Qualität der Austattung | Gehoben |
| Heizungsart | Wärmepumpe |
Beschreibung des Objekts
Ausstattung
Jedes unserer Fertighäuser wird speziell für Sie geplant und ist perfekt auf die Anforderungen und Vorgaben Ihres Bauvorhabens angepasst – Bebauungspläne, eine besondere Grundstückslage und die gewünschten Eigenleistungen werden im Detail geprüft und berücksichtigt.
Das Schwabenhaus verfügt über:
- Doppel-Wärmepumpe mit 5 in 1-System: Heizen, Kühlen, Lüften, Luftreinigung und Warmwasser
- Zentrale kontrollierte Wohnraum Be- und Entlüftung mit Wärmerückgewinnung
- Photovoltaik-Anlage mit Batteriespeicher
- 3-Scheiben-Wärmeschutzglas
- elektrische Rollladensteuerung
- Schwimmender Estrich mit Wärmedämmung
- Wand- und Bodenfliesen
- Sanitär-Objekte von Markenherstellern wie z. B. Villeroy & Boch usw. sowie Echtglas-Duschabtrennung
- 10 Jahre Gewährleistung nach BGB (üblich: 5 Jahre) und 30 Jahre Garantie auf die Grundkonstruktion
- Nachhaltigkeit-Zertifikat (QNG) für KfW-Förderung
- Protect Versicherungs-Paket mit Wohngebäudeversicherung inkl. Elementarschutz, Haus- und Wohnungs-Schutzbrief, Bauleistungsversicherung und Bauherren-Haftpflichtversicherung sowie Job-Protect Versicherungs-Paket
Diesem Angebot liegt die beliebte Schwabenhaus-Ausbaustufe "Fast-Vollendet Plus" zugrunde. Diese kann selbstverständlich noch entsprechend Ihrer geplanten Eigenleistungen angepasst werden.
Angebotspreis zzgl. Grunderwerbs- und Baunebenkosten
Lage
Baugrundstück am Ortsrand von Freiburg-Munzingen
Sonstige Angaben
Vereinbaren Sie einen persönlichen Beratungstermin, um über Ihren Haustraum und das angebotene Objekt zu sprechen.
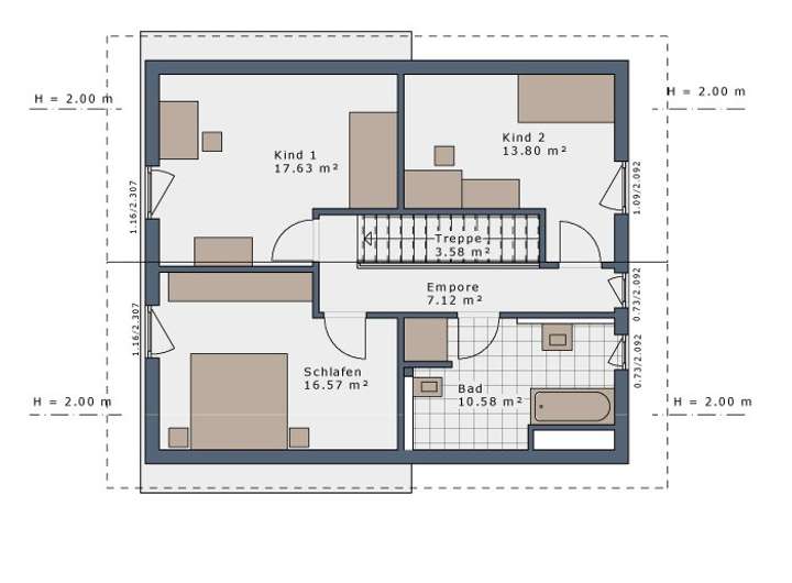
Bitte beachten Sie, dass die dargestellten Bilder und Grundrisse nur beispielhaft sind und unter Umständen Sonderbauteile enthalten, die nicht im aufgerufenen Preis inkludiert sind.
Haben Sie außerdem Verständnis dafür, dass erst nach dem persönlichen Gespräch weitere Details zu dem angebotenen Grundstück bekanntgegeben werden und dass nur vollständige Anfragen bearbeitet werden können.
Anbauteile, Carport, Garage und Keller können Extras sein, die als Sonderausstattung angeboten werden. Abbildungen, Grundrisse und Flächenangaben sind beispielhaft und können Extras zeigen. Flächenangaben nach DIN 277.
Profitieren Sie jetzt von der Schwabenhaus Online Beratung und verwirklichen Sie Ihr Traumhaus https://www.schwabenhaus.de/anmeldung-hausbau-beratung-online/
Grundriss
Grundriss Erdgeschoss
>
>
Grundriss Obergeschoss
>
>
Adresse
79112 Freiburg im Breisgau
Interessante Orte
Preis- und Lageinformationen
Preistrend für Bestandsimmobilien in Munzingen