Entdecken Sie Ihr Traumhaus in Haina! Dieses charmante Einfamilienhaus bietet mit seinen 7 Zimmern, 4 geräumigen Schlafzimmern und 2 modernen Badezimmern ausreichend Platz für die ganze Familie. Die Wohnfläche von 135,01 m² erstreckt sich über ein großzügiges Grundstück von 768 m², das ideale Rückzugsgebiete im Freien bietet.
Das Haus befindet sich im 2. Obergeschoss und wurde teilsaniert, um einen Mix aus klassischem Charme und modernem Komfort zu bieten. Ein praktischer Keller steht zur Verfügung und bietet zusätzlichen Stauraum. Der einladende Garten lädt zu entspannten Stunden im Freien ein und ist perfekt für Gartenliebhaber und Familien.
Ein besonderes Highlight dieses Hauses ist der Kamin, der an kühlen Abenden für eine gemütliche Atmosphäre sorgt. Die Zentralheizung mit Öl sorgt das ganze Jahr über für ein angenehmes Wohnklima.
Nutzen Sie diese Gelegenheit, um in einem idyllischen Ort wie Haina Ihr neues Zuhause zu finden. Vereinbaren Sie noch heute einen Besichtigungstermin und lassen Sie sich von diesem besonderen Einfamilienhaus verzaubern.
Maximales Potential für Familien und Kapitalanleger
35114 Haina (Kloster)
Die vollständige Adresse der Immobilie erhalten Sie vom Anbieter.
Auf Karte anzeigen
Die vollständige Adresse der Immobilie erhalten Sie vom Anbieter.
Finanzierungszertifikat
In nur zwei Minuten zu Ihrem persönlichen Finanzierungszertifkat.
Infos
| Haustyp | Einfamilienhaus |
|---|---|
| Wohnfläche ca. | 135 m2 |
| Nutzfläche | 57,04 m2 |
| Grundstücksfläche | 768 m2 |
| Bezugsfrei ab | Nach Absprache |
| Zimmer | 7 |
| Schlafzimmer | 4 |
| Badezimmer | 2 |
Kosten
| Kaufpreis |
214.000 € |
|---|---|
| Provision |
3,57% inkl. MwSt. 3,57% Käuferprovision inkl. MwSt., verdient und fällig mit Beurkundung des notariellen Kaufvertrages. |
Finanzierungsrechner:
Kaufpreis:
600.000 €
Eigenkapital:
600.000 €
Monatliche Rate
0 €
Effektiver Jahreszins
0 %
Sollzinsbindung
10 Jahre
Bausubstanz & Energieausweis
| Baujahr | 1951 |
|---|---|
| Heizungsart | Zentralheizung |
| Wesentliche Energieträger | Öl |
| Energieausweis | liegt vor |
| Energieausweistyp | Bedarfsausweis |
| Energieverbrauchskennwert | 392,1 kWh/(m²*a) |
| Energieeffizienzklasse | H |
392,1
kWh/(m²*a)
Energieeffizienzklasse H
- A+
- A
- B
- C
- D
- E
- F
- G
- H
- 0
- 25
- 50
- 75
- 100
- 125
- 150
- 175
- 200
- 225
- >250
Beschreibung des Objekts
Lage
Diese Immobilie befindet sich in einer attraktiven Lage in Haina, die sowohl Ruhe als auch gute Verkehrsanbindungen bietet. Ein besonderes Plus ist der kurze Fußweg von nur 4 Minuten zur nächsten öffentlichen Verkehrshaltestelle, die eine bequeme und schnelle Fortbewegung ermöglicht.
Der nächste Hauptbahnhof ist lediglich 17 Minuten Fahrzeit entfernt, was Pendlern und Reisenden eine ausgezeichnete Zugänglichkeit zu überregionalen Verbindungen bietet. Darüber hinaus ist der nächste Flughafen in nur 38 Minuten erreichbar, ideal für Geschäftsreisende oder Urlauber.
Die Umgebung von Haina zeichnet sich durch ihre natürliche Schönheit und die Nähe zu grünen Erholungsgebieten aus. Gleichzeitig sind alle notwendigen Annehmlichkeiten wie Einkaufsmöglichkeiten, Schulen und Gesundheitseinrichtungen gut erreichbar. Diese Lage vereint somit die Vorzüge von Stadtnähe und ländlichem Charme.
Weitere Dokumente
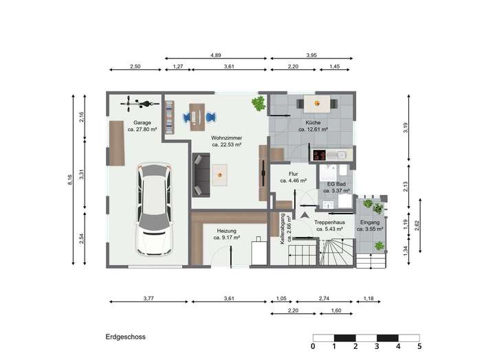
Grundbuchauszug vom 03.02.2021Grundriss
Kellergeschoß
>
>
Erdgeschoß
>
>
Obergeschoß
>
>
Dachgeschoß
>
>
Adresse
35114 Haina (Kloster)
Interessante Orte
Preis- und Lageinformationen
Preistrend für Bestandsimmobilien in Haina (Kloster)