* 50.000 € exklusive Sonderkondition sichern bis zum 31.01.2026 *
In der oberbayerischen Gemeinde Sauerlach, direkt vor den Toren der Landeshauptstadt München, erstellen wir für Sie ab Mai 2025 in der Ringbergstraße 18 und 18a in Süd-Ausrichtung 2 Zweifamilienhäuser mit insgesamt 4 Maisonette-Wohnungen, ruhig gelegen, mit hochwertiger Grundausstattung, in solider, massiver Ziegelbauweise. Die moderne Ausstattung und die ausschließliche Verwendung hochwertiger Baumaterialien gibt Ihnen die Sicherheit, dass Sie eine Immobilie mit bester Wertbeständigkeit besitzen werden.
Bei unseren Wohnungen setzen wir auf ein durchdachtes energetisches Konzept mit dem Sie Energie sparen und gleichzeitig zusätzliche Lebensqualität genießen können. Die Wohnungen sind von uns hell und lichtdurchflutet konzipiert und bieten viel Platz für Ihre Familie. Individuelle Wünsche sind je nach Baufortschritt möglich. Zögern Sie nicht lange, wenn Sie in einem maßgeschneiderten Zuhause leben möchten – wir erfüllen Ihre Wünsche gerne.
Das Projekt wird als klimafreundliches Wohngebäude mit QNG-Zertifizierung erstellt. Dadurch können Sie sich bis zu 270.000 € zinsgünstige KfW-Förderkredite sichern. Das erleichtert Ihnen bei dem aktuellen Zinsniveau den Traum von Ihren eigenen vier Wänden zu realisieren.
Und auch als Kapitalanlage für Vermieter sind unsere Wohnungen sehr interessant. Neben einer wartungsarmen und einfach aufgebauten Haustechnik sowie finanziellen Rückflüssen aus der PV-Anlage ist auch zusätzlich eine degressive Abschreibung i.H.v. 5,00% p.a. möglich. Das fördert eine spürbar schnellere Refinanzierung Ihrer getätigten Investition.
Wohnung 1 (EG/UG)
5-Zimmer-Maisonette-Wohnung
mit Terrasse und ca. 200 m² Garten
Wohnfläche ca. 127,60 m²
Verkaufspreis regulär 1.149.900 €
*VKP Sonderaktion 1.099.900 €*
(zzgl. 37.500 € für 1 Garagen- und 12.500 € für 1 Außenstellplatz)
Weitere Einheiten des Projekts:
Wohnung 3 (EG/UG)
5-Zimmer-Maisonette-Wohnung
mit Terrasse und ca. 200 m² Garten
Wohnfläche ca. 127,60 m²
Verkaufspreis regulär 1.099.900 €
*VKP Sonderaktion 1.049.900 €*
(zzgl. 37.500 € für 1 Garagen- und 12.500 € für 1 Außenstellplatz)
Wohnung 2 und 4 sind bereits verkauft.
JETZT 50.000 € SPAREN! - Wunderschöne 5-Zi.-Maisonette-Gartenwohnung in Sauerlach
Ringbergstr. 18a,
82054 Sauerlach
Auf Karte anzeigen
Finanzierungszertifikat
In nur zwei Minuten zu Ihrem persönlichen Finanzierungszertifkat.
Infos
| Wohnungskategorie | Maisonette |
|---|---|
| Wohnfläche ca. | 127 m2 |
| Nutzfläche | 15 m2 |
| Bezugsfrei ab | Ende Juli 2026 |
| Zimmer | 5 |
| Schlafzimmer | 3 |
| Badezimmer | 2 |
| Garage/Stellplatz | Garage |
| Anzahl Garage/Stellplatz | 1 |
Kosten
| Kaufpreis |
1.099.900 € |
|---|---|
| Preis für Garage/Stellplatz | 37.500 € |
| Provision | Nein |
Finanzierungsrechner:
Kaufpreis:
600.000 €
Eigenkapital:
600.000 €
Monatliche Rate
0 €
Effektiver Jahreszins
0 %
Sollzinsbindung
10 Jahre
Bausubstanz & Energieausweis
| Baujahr | 2026 |
|---|---|
| Objektzustand | Erstbezug |
| Qualität der Austattung | Luxus |
| Heizungsart | Fernwärme |
| Wesentliche Energieträger | KWK erneuerbar |
| Energieausweis | liegt vor |
| Energieausweistyp | Bedarfsausweis |
| Energieverbrauchskennwert | 41,0 kWh/(m²*a) |
| Energieeffizienzklasse | A |
41,0
kWh/(m²*a)
Energieeffizienzklasse A
- A+
- A
- B
- C
- D
- E
- F
- G
- H
- 0
- 25
- 50
- 75
- 100
- 125
- 150
- 175
- 200
- 225
- >250
Beschreibung des Objekts
Ausstattung
• Klimafreundliches Wohngebäude mit QNG-Zertifizierung (KfW-Förderkredit möglich!)
• Photovoltaik-Anlage zur zusätzlichen Stromerzeugung
• Ziegelbauweise mit wohngesunder Holzfaserdämmung
• langfristiger Bauwerksschutz durch Verwendung von WU-Beton
bei der Bodenplatte und den Außenwänden im Untergeschoss
• aufwendige Lichtgräben im UG für viel Tageslicht
• aufwendige Zwerchgiebel in den Dachgeschosswohnungen
• Sommerlicher Hitzeschutz durch Holzfaserdämmung des Daches
• Kunststofffenster mit 3-fach Verglasung und elektrischen Rollläden
• Heizungs- und Warmwasserversorgung durch Fernwärme
• Dezentrale Wohnraumlüftung mit Wärmerückgewinnung
• Fußbodenheizung mit Raumthermostaten in allen Wohnräumen
• Handtuchheizkörper zusätzlich zur Fußbodenheizung in allen Bädern
• hochwertige sanitäre Einrichtungsgegenstände*
• hochwertige Fließen + Eichenholzparkett*
• hochwertige und moderne Wohnungsinnentüren
• pro Wohnung zusätzlich 1 außenliegender Abstellraum
• pro Wohnung 1 Garagenstellplatz mit viel Stauraum + 1 KfZ-Außenstellplatz mit Vorbereitung für E-Lademöglichkeit sowie Fahrradabstellplätze
• Aufwendige Gestaltung der Außenanlagen inkl. Bepflanzung
• Hausanschlüsse sind im Kaufpreis enthalten
* Individuell auswählbar
Lage
Das Bauvorhaben liegt am ruhigen Ortsrand der Gemeinde Sauerlach in einem bestehenden Wohngebiet mit Süd-Ausrichtung des Wohn-, Terrassen- und Gartenbereichs. Zur S-Bahn-Station Sauerlach (S3) sind es ca. 14 min zu Fuß. Im Ort selbst gibt es eine ausgeprägte Infrastruktur mit Einkaufsmöglichkeiten, Ärzten, Banken, Kindergarten und -hort sowie Grundschule. Der hohe Wohn- und Freizeitwert ist in dieser Region des Großraumes München garantiert und beginnt gleich vor der Haustür. Die ruhige Wohnlage bietet für München-Pendler beste Voraussetzungen, der BAB-Anschluss der Autobahn A8 ist nur ca. 6 Minuten entfernt. Damit sind Sie flexibel in alle Richtungen – und am Flughafen MUC über die Autobahn in ca. 40 Minuten.
Sonstige Angaben
Mit dem Bau der Wohnungen wurde bereits begonnen - Bezugsfertigkeit bis Ende Juli 2026 garantiert!
Bei den Ansichten/Visualisierungen handelt es sich um unverbindliche Darstellungen des Illustrators.
Sichern Sie sich jetzt Ihr Eigentum und rufen Sie uns am besten gleich an! Wir zeigen Ihnen gerne das Baugrundstück in Sauerlach sowie bereits realisierte Wohnhäuser in der Umgebung, in denen unsere Kunden seit Jahren glücklich und zufrieden leben. Wir informieren Sie gerne über weitere Details. Ein persönliches Gespräch wird auch Sie von der Qualität unserer Immobilien überzeugen. Vereinbaren Sie einen Beratungs- und Besichtigungstermin. Wir nehmen uns gerne Zeit für Sie. Entscheiden Sie sich jetzt, denn gute Lagen sind rar und werden immer seltener!
Und übrigens: Sie zahlen bei uns nur den Kaufpreis – KEINE Provision auf den Wohnungspreis!
Bitte geben Sie bei Email-Anfragen Ihre vollständige Postanschrift und Telefonnummer an, damit wir Sie auch erreichen können. Vielen Dank!
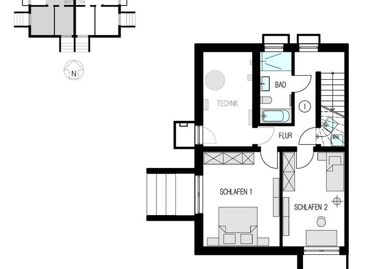
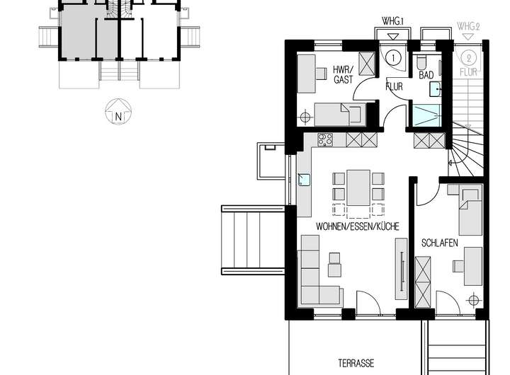
Grundriss
Wohnung 1 - Grundriss EG
>
>
Wohnung 1 - Grundriss UG
>
>
Adresse
Ringbergstr. 18a, 82054 Sauerlach
Interessante Orte
Preis- und Lageinformationen
Preistrend für Bestandsimmobilien in Sauerlach