Dieser großzügige Bungalow aus dem Jahr 1974 befindet sich in einer ruhigen und beliebten Wohnlage von Wolfsburg-Fallersleben. Mit einer Wohnfläche von rund 160 m² und einem 741 m² großen Eigentumsgrundstück bietet die Immobilie viel Platz für Familien, anspruchsvolle Paare oder Menschen, die Wohnen und Arbeiten optimal verbinden möchten. Der Bungalow wurde über die Jahre gepflegt und in wichtigen Bereichen modernisiert. Besonders hervorzuheben sind das neue Dach mit Photovoltaikanlage aus dem Jahr 2020, die erneuerten Fenster von 2012 sowie der vorhandene Glasfaseranschluss, der schnelles Internet und moderne digitale Nutzungsmöglichkeiten gewährleistet. Eine Wallbox (Elli Charger) und ein Kaminofen im Wohnzimmer runden die moderne Ausstattung ab.
Im Erdgeschoss erwartet Sie ein einladender Flur, von dem aus alle Räumlichkeiten bequem erreichbar sind. Ein Gäste-WC befindet sich direkt im Eingangsbereich. Das großzügige Wohnzimmer mit offenem Küchenbereich bildet das Herzstück des Hauses. Die Einbauküche ist modern gestaltet und fügt sich harmonisch in den Wohnraum ein. Dank des Kaminofens entsteht hier eine besonders gemütliche Atmosphäre. Vom Wohnzimmer aus gelangen Sie direkt auf die rund 24 m² große Terrasse, die einen schönen Blick in den Garten bietet und ideal für entspannte Stunden im Freien geeignet ist. Zudem befinden sich im Erdgeschoss zwei Kinder- bzw. Arbeitszimmer, ein Schlafzimmer sowie ein helles Tageslichtbad mit Dusche, Badewanne und WC.
Das Dachgeschoss ist teilweise ausgebaut und umfasst bereits ein großzügiges Zimmer, das sich hervorragend als Studio, Hobbyraum oder zusätzliches Schlafzimmer eignet. Eine eigene Küche mit Einbauküche macht diesen Bereich vielseitig nutzbar. Das vorhandene Badezimmer mit Badewanne, WC und Waschbecken ermöglicht eine nahezu unabhängige Nutzung des Dachgeschosses – ideal für Gäste, ein erwachsenes Kind oder als Rückzugsort zum Arbeiten. Ein weiterer Raum bietet zusätzliches Ausbaupotenzial, etwa für zusätzliche Wohnfläche, Stauraum oder ein individuell gestaltetes Zimmer. Damit eröffnen sich hier noch viele Möglichkeiten, die Immobilie an die eigenen Bedürfnisse anzupassen.
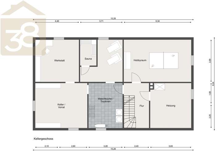
Der Vollkeller bietet viele Nutzungsmöglichkeiten. Neben einem Hobbyraum und einer Werkstatt stehen Ihnen eine Sauna, eine Waschküche sowie der Heizungsraum zur Verfügung.
Das große Grundstück bietet viel Platz zur Entfaltung. Eine Garage sowie ein Außenstellplatz sorgen für komfortable Parkmöglichkeiten. Die vorhandene Wallbox ermöglicht das Laden eines Elektrofahrzeugs direkt auf dem eigenen Grundstück. Der Garten ist weitläufig und bietet zahlreiche Gestaltungsmöglichkeiten. Die Terrasse lädt zum Verweilen und Genießen ein und schafft eine harmonische Verbindung zwischen Innen- und Außenbereich.
Insgesamt präsentiert sich diese Immobilie als äußerst vielseitiges und zukunftsfähiges Zuhause mit viel Platz, moderner Ausstattung, Glasfaseranschluss und zusätzlichem Ausbaupotenzial. Das Haus eignet sich ideal für Familien, Menschen mit Raumbedarf oder Käufer, die Wert auf ein gepflegtes Wohnumfeld in attraktiver Lage legen.
Bungalow in Wolfsburg-Fallersleben! Mein Haus = Mein Partner!
38442 Wolfsburg
Die vollständige Adresse der Immobilie erhalten Sie vom Anbieter.
Auf Karte anzeigen
Die vollständige Adresse der Immobilie erhalten Sie vom Anbieter.
Finanzierungszertifikat
In nur zwei Minuten zu Ihrem persönlichen Finanzierungszertifkat.
Infos
| Haustyp | Bungalow |
|---|---|
| Etagenzahl | 1 |
| Wohnfläche ca. | 160 m2 |
| Grundstücksfläche | 741 m2 |
| Bezugsfrei ab | sofort |
| Zimmer | 5 |
| Schlafzimmer | 4 |
| Badezimmer | 2 |
| Garage/Stellplatz | Garage |
| Anzahl Garage/Stellplatz | 2 |
Kosten
| Kaufpreis |
359.000 € |
|---|---|
| Provision |
2 % Käuferprovision inklusive Umsatzsteuer. Die Käufer-Provision beträgt 2 % vom Kaufpreis inkl. MwSt. Die Käufer-Provision ist verdient und fällig mit notarieller Beurkundung. Die Maklerhaus 38 GmbH hat einen provisionspflichtigen Maklervertrag in gleicher Höhe mit dem Verkäufer abgeschlossen. |
Finanzierungsrechner:
Kaufpreis:
600.000 €
Eigenkapital:
600.000 €
Monatliche Rate
0 €
Effektiver Jahreszins
0 %
Sollzinsbindung
10 Jahre
Bausubstanz & Energieausweis
| Baujahr | 1974 |
|---|---|
| Letzte Sanierung | 2020 |
| Bauphase | Haus fertig gestellt |
| Qualität der Austattung | Normal |
| Heizungsart | Fernwärme |
| Wesentliche Energieträger | Fernwärme |
| Energieausweis | liegt zur Besichtigung vor |
Beschreibung des Objekts
Ausstattung
+ 160 m² Wohnfläche
+ 741 m² Eigentumsgrundstück
+ 5 Zimmer
+ Gäste WC
+ Einbauküche
+ Kaminofen
+ Terrasse
+ Garten
+ Garage
+ Sauna
+ Keller
+ Wallbox
+ Glasfaseranschluss
+ ca. 20 m² ausbaufähiger Dachboden
Lage
Fallersleben gehört zu den gefragten Wohnlagen Wolfsburgs und überzeugt durch seinen historischen Ortskern, eine gute Infrastruktur und eine angenehme Wohnatmosphäre. Einkaufsmöglichkeiten, Gastronomie, Schulen und Kindertagesstätten sind zentral im Ort vorhanden und schnell erreichbar. Über die A39 sowie die B188 besteht eine sehr gute Anbindung an das Wolfsburger Stadtzentrum und die Region. Zahlreiche Grünflächen, der Schlosspark und diverse Freizeitangebote machen Fallersleben zu einem attraktiven und familienfreundlichen Standort.
Sonstige Angaben
Gerne laden wir Sie zu einer Besichtigung ein, um Ihnen vielleicht Ihr neues Zuhause bekannt zu machen.
Bei Interesse und zur Vereinbarung von Besichtigungsterminen setzen Sie sich bitte mit uns über das Kontaktformular in Verbindung. Bitte geben Sie hierbei Ihre vollständige Kontaktadresse an. Unvollständige Anfragen werden nicht bearbeitet.
Unser Angebot ist nur für den Empfänger bestimmt. Da die in diesem Exposé enthaltenen Angaben auf Informationen des Eigentümers beruhen, können wir für die Richtigkeit trotz aller Sorgfalt keine Gewähr übernehmen. Hierfür bitten wir höflich um Ihr Verständnis.
Die Datenverarbeitung erfolgt auf Grundlage von Art. 6 Abs. 1 lit. b) DSGVO. Sie müssen dabei diejenigen personenbezogenen Daten angeben, die für die Bearbeitung Ihres jeweiligen Anliegens bzw. die Vorbereitung oder Durchführung der Geschäftsbeziehung mit Ihnen erforderlich sind. Ohne diese Daten werden wir nicht in der Lage sein, Ihre Anfrage zu bearbeiten bzw. den Vertrag mit Ihnen zu erfüllen. Ich stimme daher zu, das OM Immobilienmanagement meine personenbezogenen Daten im Einzelfall z.B. bei Kauf- oder Mietvertragsabschlüssen abspeichert und an Dritte (Eigentümer/Notar/Behörden) übermitteln darf.
Grundriss
Beispiel-Grundriss EG
>
>
Grundriss DG
>
>
Grundriss KG
>
>
Adresse
38442 Wolfsburg
Interessante Orte
Preis- und Lageinformationen
Preistrend für Bestandsimmobilien in Fallersleben