Dieses massive Einfamilienhaus aus dem Jahr 1959 befindet sich in einer wunderschönen und ruhigen Siedlungslage im begehrten Dresdner Stadtteil Rochwitz. Eingebettet in eine gepflegte Nachbarschaft am grünen Elbhang überzeugt die Immobilie durch ihre solide Bauweise, ihren gepflegten Zustand und eine großzügige Grundstücksfläche von rund 1.120 m², die viel Platz für Erholung, Freizeit und individuelle Gestaltung bietet. Mit einer Wohnfläche von ca. 134 m² erfüllt das Haus einen hohen Wert an Lebensqualität, Privatsphäre und naturnahem Wohnen.
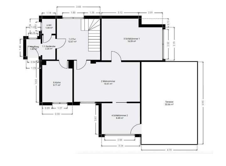
Beim Betreten des Hauses empfängt Sie ein freundlicher Eingangsbereich, von dem aus weitere Räume im Erdgeschoss bequem erreichbar sind. Das großzügige Wohn- und Esszimmer bildet den Mittelpunkt des Hauses und strahlt dank seiner durchdachten Aufteilung eine warme, einladende Atmosphäre aus. Von hier aus gelangen Sie in den Wintergarten, der derzeit als Schlafzimmer genutzt wird und mit einem herrlichen Ausblick auf den Dresdner Fernsehturm begeistert. Der Wintergarten öffnet sich zur großen Terrasse, die direkten Zugang in den weitläufigen Garten schafft– ideal für entspannte Stunden im Freien, gesellige Sommerabende oder einfach zum Genießen der Ruhe. Ebenfalls vom Wohnzimmer betretbar ist ein Kinderzimmer inkl. Kachelofen, das auch als Arbeits- oder Gästezimmer genutzt werden kann. Eine separate, lichtdurchflutete Küche, die durch ihre Helligkeit und Funktionalität überzeugt sowie ein Gäste-WC, das sich praktisch und unauffällig in den Grundriss einfügt, runden das Raumangebot im Erdgeschoss ab.
Im Obergeschoss erwarten Sie zwei gemütliche Schlafzimmer, die dank der großen Fenster und der ruhigen Lage besonders wohnlich wirken. Der Balkon in südöstlicher Ausrichtung bietet einen wunderbaren Platz für den ersten Kaffee am Morgen und einen schönen Blick ins Grüne. Das Tageslichtbad mit Badewanne lädt zum Entspannen ein und bietet zusätzlichen Erholungswert. Über eine ausziehbare Leiter in der Diele gelangen Sie auf den begehbaren Dachboden, der zusätzlichen Stauraum darstellt.
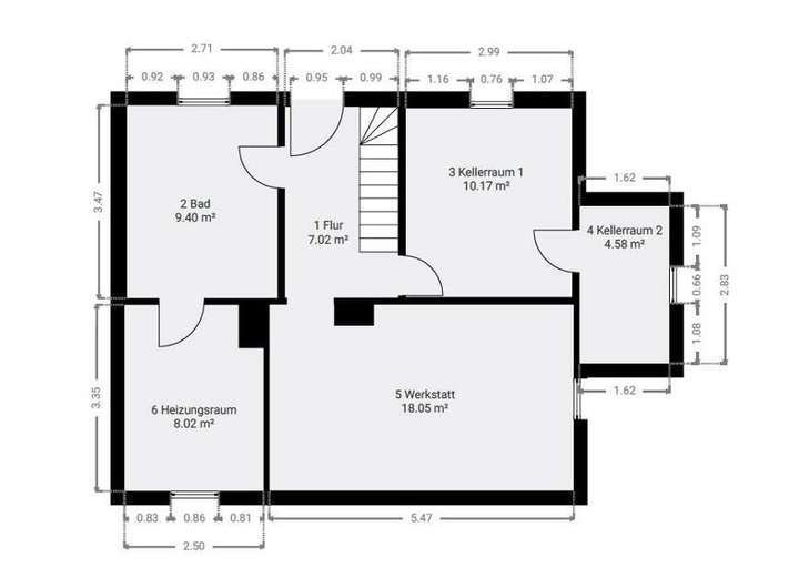
Das Haus ist voll unterkellert und bietet damit vielfältige Nutzungsmöglichkeiten. Zwei der Kellerräume sind beheizt und eignen sich hervorragend als Hobbyraum, Fitnessbereich oder Arbeitszimmer. Zusätzlich gibt es im Untergeschoss einen Heizungsraum, eine Werkstatt sowie ein Gäste-Bad mit Dusche und Waschmaschinenanschluss, was die Nutzung des Hauses im Alltag besonders komfortabel macht.
Der weitläufige Garten ist ein echtes Highlight dieser Immobilie. Er wurde liebevoll angelegt und bietet zahlreiche Rückzugsorte und Freizeitmöglichkeiten. Neben einer großen Terrasse finden sich hier ein Pavillon, ein Geräteschuppen, ein Gewächshaus, ein Spielplatz und ein Trampolin – ein Paradies für Kinder, Gartenliebhaber und alle, die das Leben im Freien genießen. Eine PKW-Garage direkt am Grundstück sorgt zusätzlich für Komfort und Schutz Ihres Fahrzeugs.
Das Einfamilienhaus wurde regelmäßig instand gehalten und modernisiert. Das Dach wurde 2002 erneuert, die Gasheizungsanlage 2017 überholt. Zudem sind alle Fenster mit Rollläden ausgestattet, was zusätzlichen Komfort und Sicherheit bietet. Die Kombination aus solider Bausubstanz, gepflegtem Zustand und liebevoll gestaltetem Grundstück macht diese Immobilie zu einem echten Schmuckstück.
+++ Begehrte Lage! Seltenes Einfamilienhaus mit großen Garten direkt am Dresdner Elbhang +++
01326 Dresden
Die vollständige Adresse der Immobilie erhalten Sie vom Anbieter.
Auf Karte anzeigen
Die vollständige Adresse der Immobilie erhalten Sie vom Anbieter.
Finanzierungszertifikat
In nur zwei Minuten zu Ihrem persönlichen Finanzierungszertifkat.
Infos
| Haustyp | Einfamilienhaus |
|---|---|
| Etagenzahl | 2 |
| Wohnfläche ca. | 134 m2 |
| Grundstücksfläche | 1.120 m2 |
| Bezugsfrei ab | sofort |
| Zimmer | 4 |
| Schlafzimmer | 3 |
| Badezimmer | 2 |
| Garage/Stellplatz | Garage |
| Anzahl Garage/Stellplatz | 1 |
Kosten
| Kaufpreis |
550.000 € |
|---|---|
| Provision |
3,57% inkl. MwSt. |
Finanzierungsrechner:
Kaufpreis:
600.000 €
Eigenkapital:
600.000 €
Monatliche Rate
0 €
Effektiver Jahreszins
0 %
Sollzinsbindung
10 Jahre
Bausubstanz & Energieausweis
| Baujahr | 1959 |
|---|---|
| Letzte Sanierung | 2023 |
| Objektzustand | Gepflegt |
| Qualität der Austattung | Gehoben |
| Heizungsart | Gas-Heizung |
| Wesentliche Energieträger | Gas |
| Energieausweis | liegt vor |
| Energieausweistyp | Bedarfsausweis |
| Energieverbrauchskennwert | 197,9 kWh/(m²*a) |
| Energieeffizienzklasse | F |
197,9
kWh/(m²*a)
Energieeffizienzklasse F
- A+
- A
- B
- C
- D
- E
- F
- G
- H
- 0
- 25
- 50
- 75
- 100
- 125
- 150
- 175
- 200
- 225
- >250
Beschreibung des Objekts
Ausstattung
+ Einfamilienhaus (Typ EW/58 - E42)
+ ca. 1.120,00 m² Grundstücksfläche
+ ca. 134,00 m² Wohnfläche
+ voll unterkellert
+ teilweise beheizter Keller (2 Räume)
+ Baujahr ca. 1959
+ Sanierung Treppe und Boden im Flurbereich 2023
+ Terrassensanierung mit Antirutschfliesen 2024
+ großzügiges Wohn- und Esszimmer mit Zugang zum Wintergarten
+ 3 Schlafzimmer
+ Kachelofen
+ Rollläden an allen Fenster
+ separate lichtdurchflutete Küche inkl. Einbauküche
+ Tageslichtbad inkl. Badewanne
+ Gäste-Bad im Kellergeschoss inkl. Dusche und Waschmaschinenanschluss
+ Gäste-WC
+ Wintergarten mit Ausblick zum Fernsehturm
+ Balkon in südöstlicher Ausrichtung
+ begehbarer Dachboden
+ große Terrasse
+ weitläufiger Garten inkl. Geräteschuppen, Pavillon, Gewächshaus, Spielplatz und Trampolin
+ PKW-Garage
+ Gasheizungsanlage 2017
+ Dacherneuerung 2002
+ wunderschöne Siedlungslage im begehrten Stadtteil Dresden-Rochwitz
Lage
Das Einfamilienhaus liegt in einer der begehrtesten Wohnlagen Dresdens, im Ortsteil Rochwitz am südöstlichen Elbhang. Die Umgebung ist geprägt von einer aufgelockerten Bebauung mit Einfamilienhäusern und Villen, eingebettet in viel Grün und umgeben von einer ruhigen, naturnahen Atmosphäre. Durch die erhöhte Hanglage oberhalb des Elbtals bietet sich ein wunderschöner Ausblick auf die Stadt und das Elbtal, während die Straße selbst als reine Anliegerstraße kaum Verkehrsaufkommen aufweist. Diese exklusive Mikrolage verbindet Ruhe, Natur und Privatsphäre mit einer gleichzeitig sehr guten Erreichbarkeit der Dresdner Innenstadt.
Die verkehrliche Anbindung ist trotz der idyllischen Lage hervorragend: Über die nahegelegene Bundesautobahn 17 besteht eine schnelle Verbindung Richtung Prag und in das südliche Umland, während die A4 den direkten Anschluss an das überregionale Verkehrsnetz in Richtung Chemnitz, Leipzig und Görlitz bietet. Das Dresdner Stadtzentrum ist mit dem Auto in etwa 15 bis 20 Minuten erreichbar. Auch der öffentliche Nahverkehr ist gut ausgebaut: Die Buslinien 61 und 63 verbinden Rochwitz und Wachwitz regelmäßig mit den Stadtteilen Loschwitz, Bühlau und Blasewitz sowie mit der Innenstadt. So ist auch ohne Auto eine bequeme Mobilität gewährleistet.
In unmittelbarer Nähe des Hauses befinden sich zahlreiche Naherholungs- und Freizeitmöglichkeiten. Der direkt angrenzende Wachwitzer Höhenpark und der nahe gelegene Rhododendronpark Wachwitz laden zu Spaziergängen, Joggingrunden und Erholung im Grünen ein. Ebenso ist der berühmte Elbhang mit seinen Weinbergen, Wanderwegen und Aussichtspunkten nur wenige Minuten entfernt. In den angrenzenden Stadtteilen Loschwitz und Weißer Hirsch bieten sich zudem kulturelle Highlights, charmante Cafés, Restaurants und kleine Galerien – alles, was das Leben am Dresdner Elbhang so besonders macht.
Auch die Versorgung im Alltag ist optimal: Supermärkte, Bäckereien, Apotheken, Ärzte und Dienstleister befinden sich in den umliegenden Stadtteilen Rochwitz, Bühlau und Weißig, die in wenigen Minuten erreichbar sind. Für Familien stehen in der Umgebung mehrere Kindertagesstätten, Grundschulen und weiterführende Schulen zur Verfügung. Sportvereine, Fitnessstudios und Freizeitangebote ergänzen das wohnnahe Umfeld.
Sonstige Angaben
Alle in diesem Angebot enthaltenen Angaben, Darstellungen und Preise stammen ausschließlich vom Eigentümer oder eines Dritten. Eine Haftung unseres Unternehmens hierfür ist ausgeschlossen.
Grundriss
Grundriss KG
>
>
Grundriss EG
>
>
Grundriss DG
>
>
Adresse
01326 Dresden
Interessante Orte
Preis- und Lageinformationen
Preistrend für Bestandsimmobilien in Bühlau/Weißer Hirsch