Dieses gepflegte Einfamilienhaus im Bungalowstil wurde 1966 in massiver Bauweise errichtet und befindet sich auf einem ca. 1.100 m² großen Grundstück in attraktiver Wohnlage von Schwäbisch Hall. Die Immobilie überzeugt durch eine durchdachte Grundrissgestaltung und eine großzügige Wohnfläche von ca. 171 m², die sich ideal für Familien oder ein Mehrgenerationenkonzept eignet. Zusätzlich stehen im Untergeschoss ca. 59 m² wohnlich ausgebaute Nutzfläche zur Verfügung, die weitere flexible Nutzungsmöglichkeiten bieten. Der weitläufige, schön angelegte Garten bietet viel Platz zum Entspannen, Spielen und Gärtnern und schafft eine angenehme, private Atmosphäre rund um das Haus.
Im Erdgeschoss empfängt Sie ein einladender Eingangsbereich mit Zugang zu mehreren Wohn- und Arbeitsbereichen. Das lichtdurchflutete Wohnzimmer mit großen Fensterflächen und Blick in den Garten, der angrenzende Essbereich mit direktem Zugang zur teils überdachten Terrasse sowie die funktional geplante Küche mit praktischer Speisekammer bilden den Mittelpunkt des Hauses. Der private Bereich ist klar vom Wohnen getrennt und umfasst drei Kinderzimmer, ein großzügiges Schlafzimmer, ein Badezimmer mit Wanne und Dusche sowie ein separates WC. Ein zusätzliches Gäste-WC befindet sich im vorderen Bereich des Hauses. Ein geräumiger Dachboden, der über eine Luke im Flur erreichbar ist, bietet weiteren Stauraum.
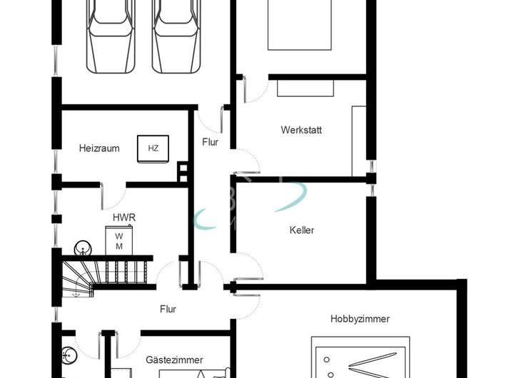
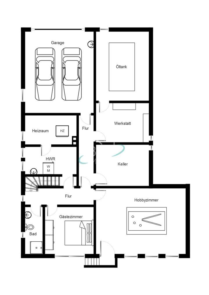
Das Untergeschoss verfügt über zwei beheizbare, wohnlich ausgebaute Zimmer mit Tageslicht (ca. 14 m² und ca. 34 m²) sowie ein eigenes Badezimmer mit Dusche und WC – ideal nutzbar als Gäste-, Kinder-, Arbeits- oder Hobbyzimmer. Dieser Bereich ist sowohl über eine Innen- als auch über eine Außentreppe zugänglich. Ergänzt wird das Untergeschoss durch eine Waschküche, einen Heizraum, zwei weitere Kellerräume und einen Tankraum.
Eine im Haus integrierte Doppelgarage mit elektrischem Sektionaltor und direktem Zugang zum Wohnhaus sowie ein weiterer Außenstellplatz runden dieses attraktive Angebot ab.
Einfamilienhaus im Bungalowstil auf großzügigem Grundstück in attraktiver Lage
74523 Schwäbisch Hall
Die vollständige Adresse der Immobilie erhalten Sie vom Anbieter.
Auf Karte anzeigen
Die vollständige Adresse der Immobilie erhalten Sie vom Anbieter.
Finanzierungszertifikat
In nur zwei Minuten zu Ihrem persönlichen Finanzierungszertifkat.
Infos
| Haustyp | Einfamilienhaus |
|---|---|
| Wohnfläche ca. | 170 m2 |
| Nutzfläche | 58,98 m2 |
| Grundstücksfläche | 1.100 m2 |
| Bezugsfrei ab | sofort |
| Zimmer | 6,5 |
| Schlafzimmer | 5 |
| Badezimmer | 2 |
| Garage/Stellplatz | Garage |
| Anzahl Garage/Stellplatz | 2 |
Kosten
| Kaufpreis |
548.000 € |
|---|---|
| Provision |
3,99 % inkl. MwSt. vom Kaufpreis. Die Provision ist verdient und mit notarieller Beurkundung fällig. |
Finanzierungsrechner:
Kaufpreis:
600.000 €
Eigenkapital:
600.000 €
Monatliche Rate
0 €
Effektiver Jahreszins
0 %
Sollzinsbindung
10 Jahre
Bausubstanz & Energieausweis
| Baujahr | 1966 |
|---|---|
| Heizungsart | Öl-Heizung |
| Energieausweis | liegt vor |
| Energieausweistyp | Bedarfsausweis |
| Energieverbrauchskennwert | 238,0 kWh/(m²*a) |
| Energieeffizienzklasse | G |
238,0
kWh/(m²*a)
Energieeffizienzklasse G
- A+
- A
- B
- C
- D
- E
- F
- G
- H
- 0
- 25
- 50
- 75
- 100
- 125
- 150
- 175
- 200
- 225
- >250
Beschreibung des Objekts
Ausstattung
Ein Teil der Bilder wurde mithilfe von KI bearbeitet
- Einfamilienhaus im Bungalowstil mit Untergeschoss
- Baujahr: 1966 (Massivbauweise)
- Grundstücksgröße: ca. 1.100 m²
- Wohnfläche Erdgeschoss: ca. 171 m²
- Zusätzlich ca. 59 m² wohnlich ausgebaute Nutzfläche im Untergeschoss
- Lichtdurchflutetes Wohnzimmer mit großen Fensterfronten
- Separater Essbereich mit Zugang zur Terrasse
- Vier Schlaf- bzw. Kinderzimmer im privaten Bereich des Erdgeschosses
- Großzügiges Badezimmer mit Dusche, Badewanne, Bidet und zwei Waschbecken
- Gäste-WC im Eingangsbereich sowie separates WC im privaten Bereich
- Funktionale Einbauküche mit angrenzender Speisekammer
- Ausgebauter Kellerbereich mit zwei beheizten, wohnlich nutzbaren Räumen (ca. 14 m² und ca. 34 m²) sowie eigenem Bad
- Zwei weitere Kellerräume, einer davon mit Werkbankbereich
- Waschküche mit Waschmaschinenanschluss, Waschbecken und Fenstern
- Dachboden mit Licht und Strom über die gesamte Hausfläche
- Teilüberdachte Terrasse mit Natursteinboden und Markisen
- Großzügiger, gepflegter Garten
- Doppelgarage mit elektrischem Sektionaltor und direktem Zugang ins Haus
- Ein weiterer Außenstellplatz
- 2-fach verglaste Kunststofffenster (1993) sowie 2-fach verglaste Holzfenster (1966)
- Ölzentralheizung (1986) mit einem 10.000-Liter-Öltank
Lage
Der charmante Wohnsitz befindet sich in einem beliebten südlichen Stadtteil von Schwäbisch Hall, der für sein gewachsenes Wohnumfeld und seine stadtnahen, dennoch naturnahen Strukturen geschätzt wird. Die Lage verbindet die Vorzüge einer gut angebundenen Stadtlage mit den Qualitäten eines angenehmen Wohngebiets. Durch die unmittelbare Nähe zu einer wichtigen Verkehrsachse ist eine hervorragende Erreichbarkeit gewährleistet, wodurch Sie das Zentrum von Schwäbisch Hall mit seinem vielfältigen kulturellen Angebot, seinen Einkaufsmöglichkeiten und gastronomischen Einrichtungen in kürzester Zeit erreichen können.
Trotz der verkehrsgünstigen Lage bietet die umliegende Landschaft zahlreiche Möglichkeiten zur Naherholung, wie Spazierwege, Grünflächen und abwechslungsreiche Freizeitangebote in der Natur. So entsteht ein harmonischer Ausgleich zwischen urbaner Nähe und entspannten Rückzugsmöglichkeiten.
Schulen, Kindergärten und sämtliche Einrichtungen des täglichen Bedarfs befinden sich ebenfalls im näheren Umfeld, was den Standort besonders attraktiv für Familien und Berufspendler macht. Die optimale Infrastruktur kombiniert mit einer komfortablen Wohnlage macht dieses Objekt zu einer gefragten Adresse für all diejenigen, die Wert auf Lebensqualität, kurze Wege und hohen Alltagskomfort legen.
Grundriss
Grundriss EG
>
>
Grundriss UG
>
>
Adresse
74523 Schwäbisch Hall
Interessante Orte
Preis- und Lageinformationen
Preistrend für Bestandsimmobilien in Schwäbisch Hall