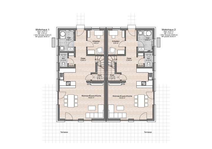
Die Doppelhaushälften auf Basis „Simply Home von Büttner“ bieten auf ca. 123 m² Wohnfläche (Wohn-/Grundfläche: ca. 136 m²) und auf einer Nutzfläche von ca. 52 m² alles, was Paare oder Familien für ein entspanntes Leben brauchen. Im Erdgeschoss bilden Wohnen, Essen und Kochen das Herzstück des Hauses. Ein offener, lichtdurchfluteter Bereich präsentiert sich somit ideal für gemeinsame Stunden und geselliges Beisammensein. Ergänzt wird das Raumangebot durch ein Gäste-WC, ein multifunktionales Arbeits-/Gästezimmer, einen Abstellraum sowie einen Technikraum mit Waschmaschinenanschluss. Im Obergeschoss erwartet euch der private Rückzugsbereich: ein Schlafzimmer mit Ankleide, zwei großzügige Kinderzimmer, ein Abstellraum und ein modernes Bad. Genügend Staufläche ist im darüberliegenden Spitzboden vorhanden. Sonnige Tage, entspannte Abende und unvergessliche Momente können im Garten mit der ganzen Familie genossen werden.
Mit DUO VITA entsteht am Eichelberg ein Wohngebiet, das vielfältige Wohnformen und zeitgemäße Architektur vereint. Das Projekt bietet aktuell 40 Wohneinheiten – von der Eigentumswohnung bis zum Einfamilienhaus – und richtet sich an verschiedene Lebensstile und Wohnbedürfnisse.
DUO VITA bietet eine breite Auswahl an Wohneinheiten, die unterschiedlich gestaltet und flexibel nutzbar sind:
- Fünffamilienhaus mit Flachdach
- moderne Doppelhaushälften
- Baugrundstücke für Einfamilienhäuser
- Winkelbungalows
Grundstücksverkäufer:
Firma KASSECKER Projekt GmbH –
Projektentwicklung Eichelberg
Egerer Straße 36
95652 Waldsassen
Werkvertragspartner:
Wohnhausbau Büttner Massivhaus GmbH
Ottenhofer Anger 2
91287 Plech
Tel.: 09244 - 98 282 - 0
Fax: 09244 - 98 282 – 20
info@wb-buettner.com
Doppelhaushälften - Neues Zuhause mit Wohlfühl-Feeling. Simply möglich.
95448 Bayreuth
Die vollständige Adresse der Immobilie erhalten Sie vom Anbieter.
Auf Karte anzeigen
Die vollständige Adresse der Immobilie erhalten Sie vom Anbieter.
Finanzierungszertifikat
In nur zwei Minuten zu Ihrem persönlichen Finanzierungszertifkat.
Infos
| Haustyp | Doppelhaushaelfte |
|---|---|
| Wohnfläche ca. | 123 m2 |
| Nutzfläche | 52,3 m2 |
| Grundstücksfläche | 429 m2 |
| Bezugsfrei ab | nach Absprache |
| Zimmer | 4,5 |
| Schlafzimmer | 3 |
| Badezimmer | 1 |
| Garage/Stellplatz | Außenstellplatz |
| Anzahl Garage/Stellplatz | 1 |
Kosten
| Kaufpreis |
646.592 € |
|---|---|
| Provision | Nein |
Finanzierungsrechner:
Kaufpreis:
600.000 €
Eigenkapital:
600.000 €
Monatliche Rate
0 €
Effektiver Jahreszins
0 %
Sollzinsbindung
10 Jahre
Bausubstanz & Energieausweis
| Baujahr | 2026 |
|---|---|
| Objektzustand | Erstbezug |
| Qualität der Austattung | Gehoben |
| Heizungsart | Wärmepumpe |
Beschreibung des Objekts
Ausstattung
Ausstattung nach Simply (EH 55), aber inkl.
- Abnahme-, Prüfungs- und Genehmigungsgebühren
- Bauwesenversicherung und Bauherrenhaftpflichtversicherung
- Kranplatz, Baustraße, Bauzaun, Baustromeinrichtung, Baustrom-/Bauwasserbrauch
- Abfuhr Aushub mit Deponiegebühren
- Entwässerungsleitungen innerhalb und außerhalb
- Zisterne zur Gartenbewässerung
- Zwei Betonkontrollschächte
- Mehrsparteneinführung
- 60 mm Perimeterdämmung unter Bodenplatte
- Dichtheitsprüfung
- Außen- und Innenmauerwerk Rohdichte 1.2
- WDVS 16 cm, WLS 035
- Farbabsätze im Außenputz
- Fenster in Schallschutzklasse 3
- Fenster Living
- Aluhaustür
- Fenster mit Dekor außen
- Bodentiefe Fensterelemente im DG (giebelseitig)
- Zwei DFF im Kind 1, ein DFF im Schlafen
- Dezentrale Lüftung ohne WRG für Bad, Schlafen, Kind 1 und Kind 2
- Erstellung Hausanschlüsse mit Stufengraben und Hausanschlusskosten
- Untersparrendämmung, 60 mm stark, WLS 032
- Zugangsweg von der Straße bis zur Haustür
- Hauseingangspodest
- PV-Anlage, ca. 11,5 kwp (ohne Speicher)
Nicht enthalten sind:
- Bodenbeläge
- Malerarbeiten
- Außenanlage, außer Zugangsweg und Haustürpodest
Lage
DUO VITA - Stadtdorf am Eichelberg
DUO VITA bietet das Beste aus zwei Welten: Hier genießen Sie die Vorteile einer modernen Wohnstruktur mit vielfältigen Arbeits- und Bildungsmöglichkeiten sowie einer hervorragenden Infrastruktur – alles in unmittelbarer Nähe zur Stadt Bayreuth.
Gleichzeitig erleben Sie die Qualitäten eines dörflichen Umfelds: eine grüne, naturnahe Umgebung, ein starkes Gemeinschaftsgefühl und ein reduziertes Verkehrsaufkommen, das für eine entspannte Atmosphäre sorgt.
Mit Einkaufsmöglichkeiten, medizinischer Versorgung und einem breiten kulturellen Angebot bietet das DUO VITA Stadtdorf nicht nur das ideale Umfeld für Familien, sondern auch für Menschen, die nach einem ruhigen Rückzugsort suchen.
Sonstige Angaben
Unser Büro ist von Montag bis Freitag von 8:00 Uhr bis 16:00 Uhr für Sie geöffnet. Telefonisch können Sie uns jedoch auch außerhalb unserer Bürozeiten unter 0921 - 151 209-0 erreichen. Die Objekte können nach Absprache auch am Wochenende oder in den Abendstunden besichtigt werden.
Geben Sie bei Email-Anfragen bitte immer Ihre Telefonnummer an, unter der wir Sie tagsüber erreichen können. Das vereinfacht ein Zusammenkommen und Sie erhalten so unmittelbar einen Besichtigungstermin für das entsprechende Objekt.
Die hier eingestellten Flächendefinitionen und Objektinformationen wurden mit größter Sorgfalt recherchiert, sind jedoch in rechtlicher Hinsicht unverbindlich und werden lediglich zu Informationszwecken zur Verfügung gestellt. Daher übernehmen wir für deren Richtigkeit keine Haftung. Alle Angaben einschließlich Energieausweis stammen vom Bauträger bzw. Eigentümer. Die Vorgaben im Exposé sind nicht zur Maßentnahme geeignet.
Zum Datenschutz:
Um unsere Vermittlungstätigkeiten sorgfältig erfüllen zu können ist es notwendig, einzelne personenbezogene Kontaktdaten von Interessenten bis zum Verkauf bzw. bis zur Vermietung eines Objektes zu speichern. Aufgrund der DS-GVO werden alle nicht relevanten Interessentendaten nach Verkauf bzw. Vermietung aus unserem Datenprogramm unwiderruflich gelöscht.
Grundriss
DH Simply Slim Grundriss Erdge
>
>
DH Simply Slim Grundriss Dachg
>
>
DH Simply Slim Grundriss Spitz
>
>
DH Simply Slim Schnitt
>
>
Adresse
95448 Bayreuth
Interessante Orte
Preis- und Lageinformationen
Preistrend für Bestandsimmobilien in Königsallee/Neue Heimat/Colmdorf/Eichelberg