In unserem Projekt „Waldklang“ werden viele Träume erfüllt. Sie haben die Wahl zwischen 2-4 Zimmerwohnungen, die durch Ihre moderne Ausstattung zu Ihrem neuen Lebensmittelpunkt werden können. Die Wohnungen sind großzügig und offen angelegt. Die Bereiche Wohnzimmer, Esszimmer und Küche gehen fließend ineinander über. Der Blicke ins Grüne unterstützt die helle lichtdurchflutete Atmosphäre
4-Zimmerwohnung mit Balkon in Süd-West-Ausrichtung // KFW FÖRDERUNG
Steinweg 28,
85598 Vaterstetten
Auf Karte anzeigen
Finanzierungszertifikat
In nur zwei Minuten zu Ihrem persönlichen Finanzierungszertifkat.
Infos
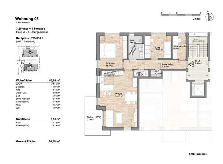
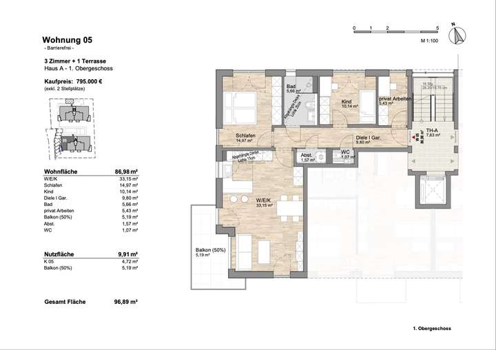
| Wohnungskategorie | Etagenwohnung |
|---|---|
| Etage | 1 von 2 |
| Wohnfläche ca. | 86 m2 |
| Nutzfläche | 9,91 m2 |
| Bezugsfrei ab | 2026 |
| Zimmer | 4 |
| Schlafzimmer | 3 |
| Badezimmer | 2 |
| Garage/Stellplatz | Tiefgarage |
| Anzahl Garage/Stellplatz | 2 |
Kosten
| Kaufpreis |
739.000 € |
|---|---|
| Preis für Garage/Stellplatz | 30.000 € |
| Provision | Nein |
Finanzierungsrechner:
Kaufpreis:
600.000 €
Eigenkapital:
600.000 €
Monatliche Rate
0 €
Effektiver Jahreszins
0 %
Sollzinsbindung
10 Jahre
Bausubstanz & Energieausweis
| Baujahr | 2025 |
|---|---|
| Objektzustand | Erstbezug |
| Qualität der Austattung | Gehoben |
| Heizungsart | Wärmepumpe |
| Wesentliche Energieträger | Erdwärme |
| Energieausweis | liegt vor |
| Energieausweistyp | Bedarfsausweis |
| Energieverbrauchskennwert | 14,0 kWh/(m²*a) |
| Energieeffizienzklasse | A+ |
14,0
kWh/(m²*a)
Energieeffizienzklasse A+
- A+
- A
- B
- C
- D
- E
- F
- G
- H
- 0
- 25
- 50
- 75
- 100
- 125
- 150
- 175
- 200
- 225
- >250
Beschreibung des Objekts
Ausstattung
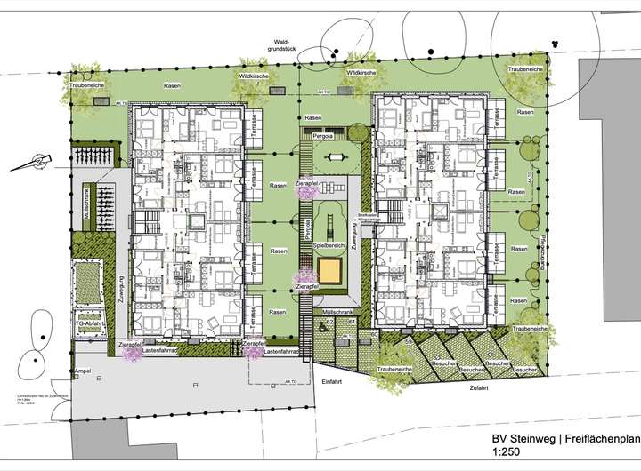
Am Waldrand zwischen Einfamilien-, Doppel, - und Mehrfamilienhäusern entstehen hier zwei moderne und hoch energetische
Mehrfamilienhäuser mit jeweils 11 Wohnungen welche nach einem EH-40 klimafreundlichen Wohngebäude erstellt werden. Die Grundrisse der Wohnungen sind individuell darauf ausgelegt, dass es in jeder Wohnung sehr komfortabel und gemütlich ist. Es wurde auf die Bedürfnisse von Tageslichtbädern, ausreichend Abstellflächen, schönen Wohnräumen und vielen mehr geachtet.
Lage
Wer hier wohnt entscheidet sich für die Qualitäten, die es nur noch im ländlichen Raum gibt. Naturverbundenheit, Bodenständigkeit und die gelebte Freude am Heimatlichen und seinen Traditionen. Baldham gehört zu der Gemeinde Vaterstetten. Eine begehrte Gemeinde direkt vor den Toren Münchens. Sie haben hier alles und verzichten auf nichts. Egal ob es Schulen, Kindertagesstätten, Geschäfte, Ärzte oder der wöchentliche Bauernmarkt sind. An die Metropole München sind Sie auch mit den öffentlichen Verkehrsmitteln ebenso bestens angeschlossen und nur in knapp über 20 Minuten direkt am Marienplatz.
Sonstige Angaben
ALS KLIMAFREUNDLICHER NEUBAU, IST DAS PROJEKT KfW-FÖRDERFÄHIG - INKLUSIVE ATTRAKTIVEM KfW-KREDIT VON BIS ZU 100.000,- EURO BEI EINEM ZINSSATZ AB 1,28% EFFEKTIVEN JAHRESZINS (STAND 14.11.2025).
Weitere Dokumente
Keller-TG - Immo_UG_20230921Haus A_Wo_05 - Immo_1-OG
Grundriss
Wohnung 5
>
>
Adresse
Steinweg 28, 85598 Vaterstetten
Interessante Orte
Preis- und Lageinformationen
Preistrend für Bestandsimmobilien in Vaterstetten