Dieses nach WEG aufgeteilte Reihenendhaus aus dem Baujahr 2015 befindet sich in einem gefragten Baugebiet im Stadtteil Stöcken – einer etablierten und gleichzeitig dynamischen Lage innerhalb der Landeshauptstadt Hannover. Das Haus liegt an einer ruhigen Anliegerstraße, umgeben von überwiegend Einfamilienhäusern. Trotz der Nähe zur Bundesstraße und Feuerwehr präsentiert sich das Wohnumfeld angenehm ruhig und uneingeschränkt alltagstauglich. ÖPNV-Anbindungen sowie alle Einrichtungen des täglichen Bedarfs sind bequem fußläufig erreichbar. Große Arbeitgeber befinden sich in der direkten Umgebung, während die ausgezeichnete Verkehrsanbindung über die B6 und die nahegelegene A2 zusätzliche Flexibilität bietet.
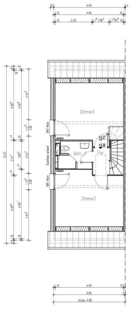
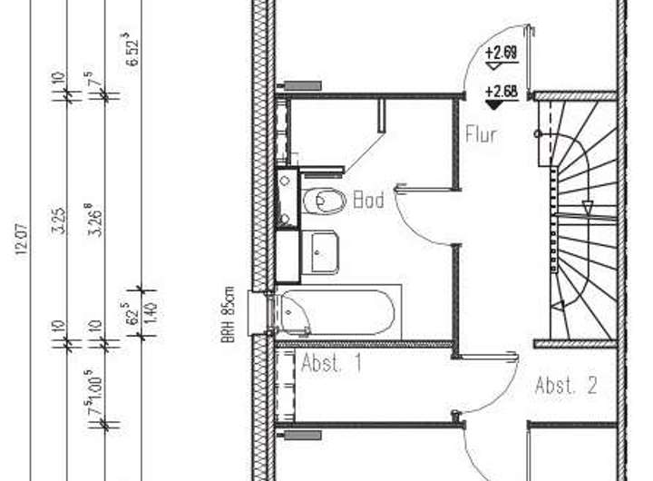
Auf rund 145 m² Wohnfläche verteilen sich fünf helle und großzügig geschnittene Zimmer, darunter vier Schlafzimmer, die vielseitige Nutzungsmöglichkeiten für Familien, Homeoffice oder Gäste bieten. Der neuwertige Gesamtzustand und die lichtdurchflutete Bauweise schaffen ein modernes, einladendes Wohnambiente. Ergänzt wird das Raumangebot durch ein Wannen- und Duschbad, ein separates Tageslicht-Duschbad sowie ein Gäste-WC. Eine Abstellkammer und ein praktischer Spitzboden sorgen für zusätzlichen Stauraum.
Die hochwertige Einbauküche, eine effiziente Nahwärmeversorgung, Smart-Home-Technik sowie eine 3,2 kWP Photovoltaikanlage unterstreichen den zeitgemäßen und nachhaltigen Charakter der Immobilie. Der Sondernutzungsbereich mit Terrasse und fest installiertem Pavillon lädt zum Entspannen im Freien ein. Ein privater Stellplatz rundet dieses attraktive Angebot ab.
Überzeugen Sie sich selbst von diesem modernen Zuhause in gefragter Lage – wir freuen uns auf Ihre Kontaktaufnahme und stellen Ihnen die Immobilie gern persönlich vor.
Modernes Reihenendhaus mit Nahwärme und PV in Stöcken!
30419 Hannover
Die vollständige Adresse der Immobilie erhalten Sie vom Anbieter.
Auf Karte anzeigen
Die vollständige Adresse der Immobilie erhalten Sie vom Anbieter.
Finanzierungszertifikat
In nur zwei Minuten zu Ihrem persönlichen Finanzierungszertifkat.
Infos
| Haustyp | Sonstige |
|---|---|
| Etagenzahl | 3 |
| Wohnfläche ca. | 145 m2 |
| Grundstücksfläche | 306 m2 |
| Zimmer | 5 |
| Schlafzimmer | 4 |
| Badezimmer | 2 |
| Anzahl Garage/Stellplatz | 1 |
Kosten
| Kaufpreis |
525.000 € |
|---|---|
| Provision |
3,57 % inkl. MwSt. |
Finanzierungsrechner:
Kaufpreis:
600.000 €
Eigenkapital:
600.000 €
Monatliche Rate
0 €
Effektiver Jahreszins
0 %
Sollzinsbindung
10 Jahre
Bausubstanz & Energieausweis
| Baujahr | 2015 |
|---|---|
| Letzte Sanierung | 2023 |
| Objektzustand | Neuwertig |
| Qualität der Austattung | Gehoben |
| Heizungsart | Blockheizkraftwerk |
| Wesentliche Energieträger | Nahwärme |
| Energieausweis | liegt vor |
| Energieausweistyp | Verbrauchsausweis |
| Energieverbrauchskennwert | 49,5 kWh/(m²*a) |
| Energieeffizienzklasse | A |
49,5
kWh/(m²*a)
Energieeffizienzklasse A
- A+
- A
- B
- C
- D
- E
- F
- G
- H
- 0
- 25
- 50
- 75
- 100
- 125
- 150
- 175
- 200
- 225
- >250
Beschreibung des Objekts
Ausstattung
- Einbauküche
- 1 Tageslicht Wannen-/Duschbad
- 1 Duschbad im DG (2018)
- 1 Gäste-WC
- Abstellkammer
- Spitzboden
- Manuelle Außenjalousien
- Smart Home
- Außenkameras (2017)
- 3,2 kWP PV-Anlage (2023)
- Terrasse mit fest installiertem Pavillon (2021)
- Außen-Elektrik mit zwei separaten Unterverteilungen und einen 11 kW Stromanschluss (2017)
- Gartenhaus
- Carport mit Fahrradabstellraum im Garten (2016)
- Automatische Gartenbewässerung (2017)
- Schichtwasserbrunnen (2018)
- Privater Stellplatz
Lage
Hannover, die Landeshauptstadt Niedersachsens, ist seit 2000 EXPO-Stadt und zählt ca. 520.000 Einwohner. Auch bekannt als die grüne Messestadt an der Leine, bietet sie mit dem Maschsee, den königlichen Herrenhäuser Gärten, dem Erlebnis-Zoo Hannover und ihrem großen Stadtwald ,,Eilenriede”, eine hohe Lebensqualität.
Im nordwestlichen Stadtteil Stöcken, zwischen Mittellandkanal und Herrenhausen, mit ca. 13.000 Einwohnerinnen und Einwohnern schlägt das industrielle Herz Hannovers. Die großen Arbeitgeber Conti und VW sind in Stöcken ansässig und in wenigen Minuten erreichbar. Die in 5 Minuten fußläufig erreichbare Straßenbahn Line 5 bringt Sie in ca. 15 Minuten in die Innenstadt und in ca. 100 Metern Entfernung befindet sich außerdem eine Bushaltestelle. Durch den Messeschnellweg haben Sie direkte Anbindung an die A2 und A7. Aber auch Naturfreunde kommen auf ihre Kosten, das angrenzende Naherholungsgebiet Leine-Masch ermöglicht lange Spaziergänge oder Fahrradtouren in der Natur.
Alle Einkaufsmöglichkeiten des täglichen Bedarfs sowie Ärzte, Sparkassen, Post, Kindergärten, Grundschulen und die IGS sind schnell erreichbar im Stadtteil.
Sonstige Angaben
Für nähere Informationen zu diesem Objekt steht Ihnen Herr Grein unter der Mobilfunknummer 0172-6743140 gerne zur Verfügung. Um eine Verzögerung bei der Versendung des Exposés zu vermeiden, bitten wir Sie bei Ihrer Anfrage, Ihre vollständige Adresse, Telefonnummer sowie Ihre E-Mail-Adresse zu hinterlassen.
Weitere interessante Angebote finden Sie auf unserer Firmenhomepage: www.kensington-hannover.com
Alle Angaben sind ohne Gewähr und basieren ausschließlich auf Informationen, die uns von unserem Auftraggeber zur Verfügung gestellt wurden. Wir übernehmen keine Gewähr für die Vollständigkeit, Richtigkeit und Aktualität dieser Angaben.
Grundriss
Grundriss_EG
>
>
Grundriss_OG
>
>
Grundriss_DG
>
>
Adresse
30419 Hannover
Interessante Orte
Preis- und Lageinformationen
Preistrend für Bestandsimmobilien in Stöcken