Auf einem großzügigen, ca. 5.900 m² großen Grundstück in ländlich-ruhiger, dennoch zentraler Lage von Brokstedt präsentiert sich dieses außergewöhnliche Immobilienensemble. Es besticht durch seine historische Bausubstanz, den besonderen Charakter und vielseitige Nutzungsmöglichkeiten. Das Ensemble besteht aus einer denkmalgeschützten Bauernscheune mit integrierter Einliegerwohnung (erbaut 1756) sowie einem ebenfalls denkmalgeschützten Wohnhaus aus ca. 1890.
Die denkmalgeschützte Bauernscheune aus dem Jahr 1756 – ein historisches Herzstück mit Einliegerwohnung
Die Bauernscheune, das älteste Gebäude des Ensembles, wurde 1756 in traditioneller Holzständerbauweise errichtet und steht unter Denkmalschutz. Sie verkörpert den Charme eines norddeutschen Wirtschaftsanwesens mit Geschichte. Durch ein großes Dielentor gelangt man in den Innenraum: links befinden sich fünf Pferdeboxen mit originalem Kopfsteinpflaster, rechts die ehemaligen Stallungen. Eine Holztreppe führt auf den weitläufigen Heuboden – ideal für kreative Nutzungsideen.
In einem abgetrennten Bereich der Scheune wurde eine Einliegerwohnung mit ca. 97 m² Wohn- und Nutzfläche geschaffen, die Folgendes umfasst:
– einen Windfang und eine Eingangsdiele,
– eine große Küche,
– ein Gäste-WC,
– ein Wohnzimmer,
– ein Durchgangszimmer,
– sowie ein Schlafzimmer mit angrenzendem Vollbad.
Beheizt wird die Wohnung über Nachtspeicheröfen, zusätzlich sorgt ein Kaminofen für gemütliche Wärme. Fenster und Haustür bestehen aus isolierverglasten Kunststoffelementen, die Elektrik wurde teilweise modernisiert. Ein gepflegter Gartenbereich sowie ein Doppel-Carport runden dieses Angebot ab.
Das Wohnhaus von ca. 1890 – denkmalgeschütztes Drei-Giebel-Haus mit historischem Charme
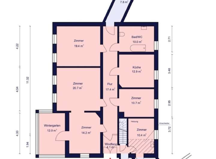
Das angrenzende Wohnhaus aus ca. 1890 ist ebenfalls denkmalgeschützt. Es handelt sich um ein stattliches Drei-Giebel-Haus mit klassischem Satteldach, gedeckt mit Naturschiefer. Die Wohn- und Nutzfläche beträgt ca. 254 m² und verteilt sich auf sechs großzügige Zimmer, eine Küche, ein Wannenbad, einen Hauswirtschaftsraum sowie einen historischen Wintergarten.
Original erhaltene Pitch-Pine-Dielenböden, massive Holz-Innentüren und ein Kamin im Wohnzimmer schaffen eine authentische, wohnliche Atmosphäre. Das Dachgeschoss bietet zwei bereits ausgebaute, beheizbare Zimmer (ohne behördliche Genehmigung) sowie weitere Ausbaureserven, inklusive einer traditionellen Räucherkammer. Die Fenster wurden bereits in Kunststoffausführung modernisiert. Ein kleiner Gewölbekeller rundet das Raumangebot ab. Das Wohnhaus ist direkt mit der angrenzenden Scheune verbunden
Wichtig: Beide Gebäude stehen unter Denkmalschutz – innen wie außen. Bauliche Veränderungen, sowohl an der Fassade als auch im Inneren, sind genehmigungspflichtig. Der Erhalt der historischen Bausubstanz trägt zum einzigartigen Wert und Charakter des Ensembles bei.
Zustand und Perspektiven
Die Gebäude befinden sich in einem sanierungsbedürftigen Zustand. Die Grundsubstanz ist jedoch solide, und der historische Charakter eröffnet vielfältige Möglichkeiten. Ob als Wohnprojekt, Künstlerhof, generationsübergreifendes Zuhause oder in Kombination mit kleingewerblicher Nutzung – diese Liegenschaft bietet außergewöhnliches Entwicklungspotenzial für Menschen mit Sinn für Baukultur, Nachhaltigkeit und kreative Gestaltung.
Fazit
Dieses charmante Immobilienensemble ist weit mehr als nur ein Anwesen – es ist ein Ort mit Geschichte, Atmosphäre und Möglichkeiten. Wer das Besondere sucht und bereit ist, in die Zukunft dieses Anwesens zu investieren, findet hier eine einmalige Gelegenheit. Ob als privates Lebensprojekt, Anlageobjekt oder Plattform für neue Wohnideen – hier wird aus Vergangenheit Zukunft.
Brokstedter Hofidylle – historisches Wohnhaus, Bauernscheune mit Einliegerwohnung, Waldfläche und
24616 Brokstedt
Die vollständige Adresse der Immobilie erhalten Sie vom Anbieter.
Auf Karte anzeigen
Die vollständige Adresse der Immobilie erhalten Sie vom Anbieter.
Finanzierungszertifikat
In nur zwei Minuten zu Ihrem persönlichen Finanzierungszertifkat.
Infos
| Wohnfläche ca. | 965 m2 |
|---|---|
| Grundstücksfläche | 965 m2 |
| Bezugsfrei ab | sofort |
| Zimmer | 10 |
Kosten
| Kaufpreis |
289.000 € |
|---|---|
| Provision |
3,57 % |
Finanzierungsrechner:
Kaufpreis:
600.000 €
Eigenkapital:
600.000 €
Monatliche Rate
0 €
Effektiver Jahreszins
0 %
Sollzinsbindung
10 Jahre
Bausubstanz & Energieausweis
| Baujahr | 1756 |
|---|---|
| Denkmalschutzobjekt | Ja |
| Objektzustand | Renovierungsbedürftig |
| Heizungsart | Gas-Heizung |
| Wesentliche Energieträger | Gas |
| Energieausweis | laut Gesetz nicht erforderlich |
Beschreibung des Objekts
Ausstattung
Allgemein
•Grundstücksgröße: ca. 5.900 m²
•Zwei Hauptgebäude:
oDenkmalgeschütztes Bauernscheune (aus 1756) mit Einliegerwohnung
oDenkmalgeschütztes Wohnhaus (ca. 1890)
•Teilweise bewaldetes Grundstück
•Fünf Garagen (vier davon vermietet)
Bauernscheune (aus 1756, denkmalgeschützt)
•Traditionelle Holzständerbauweise
•Große Diele
•5 Pferdeboxen, original Kopfsteinpflaster
•Ehemalige Stallungen
•Weitläufiger Heuboden (Zugang über Holztreppe)
Einliegerwohnung in der Bauernscheune (ca. 97 m² Wohn-/Nutzfläche):
•Windfang und Eingangsdiele
•Geräumige Küche
•Gäste-WC
•Wohnzimmer
•Durchgangszimmer
•Schlafzimmer mit angrenzendem Vollbad
•Beheizung über Nachtspeicheröfen + Kaminofen
•Kunststofffenster, zweifach isolierverglast
•Haustür ebenfalls isolierverglast
•Elektrik teilweise erneuert
•Gepflegter Gartenbereich
•Doppel-Carport
Wohnhaus (ca. 1890, denkmalgeschützt, Drei-Giebel-Haus)
•Klassisches Satteldach mit Naturschieferdeckung
•Ca. 254 m² Wohn-/Nutzfläche
•4 großzügige Zimmer im EG
•Küche
•Wannenbad
•Hauswirtschaftsraum
•Historischer Wintergarten
•Pitch-Pine-Dielenböden (original erhalten)
•Massive Holz-Innentüren
•Kamin im Wohnzimmer
•2 ausgebaute, beheizbare Dachgeschosszimmer (nicht genehmigt)
•Weitere Ausbaureserven im Dachgeschoss
•Traditionelle Räucherkammer
•Modernisierte Kunststofffenster
•Kleiner Gewölbekeller
•Direkter Zugang zur angrenzenden Bauernscheune
Lage
Dieser charmante Hof liegt idyllisch eingebettet im Herzen von Brokstedt, einer lebendigen Gemeinde im Kreis Steinburg in Schleswig-Holstein. Die Umgebung ist geprägt von weitläufigen Wiesen, Feldern und kleinen Wäldern – ideal für Naturliebhaber, Pferdehalter oder alle, die die Ruhe des Landlebens schätzen.
Trotz der ruhigen, ländlichen Lage bietet Brokstedt eine sehr gute Infrastruktur: Einkaufsmöglichkeiten für den täglichen Bedarf, Ärzte, eine Grundschule sowie Kindergärten sind direkt im Ort vorhanden.
Für Pendler besonders attraktiv ist der örtliche Bahnhof mit direkter Anbindung an Hamburg und Kiel – eine Seltenheit in dieser Region und ein klarer Standortvorteil.
Die nächstgelegenen Städte wie Neumünster, Itzehoe und Bad Bramstedt sind in wenigen Autominuten erreichbar und bieten ein erweitertes Angebot an Einkaufsmöglichkeiten, weiterführenden Schulen und Freizeitaktivitäten.
Die Nähe zur A7 sorgt zudem für eine schnelle Erreichbarkeit überregionaler Ziele.
Ein idealer Ort für alle, die das Landleben genießen möchten, ohne auf eine gute Anbindung und die Vorteile urbaner Infrastruktur verzichten zu müssen.
Sonstige Angaben
Sehr geehrte Interessentinnen und Interessenten. Bitte geben Sie uns bei Ihrer Anfrage Ihre Kontaktdaten bekannt:
• Name
• Adresse
• Telefonnummer
• E-Mail-Adresse
So können wir Ihnen die gewünschten Unterlagen ohne Verzögerung zusenden
und haben auch einen Nachweis für unseren Auftraggeber. Ihre Daten werden selbstverständlich vertraulich behandelt (gemäß DSGVO) und nicht an Dritte weitergegeben.
Alle Information sind nach bestem Wissen und Gewissen aufbereitet. Die angegebenen Maße sind vor Ort zu überprüfen und es wird keine Haftung für die Richtigkeit übernommen.
Wegen der Widerrufsbelehrung:
Da eine Provision selbstverständlich nur dann anfällt, wenn Sie ein provisionspflichtiges Objekt auch tatsächlich kaufen, bleibt Ihre Anfrage auch bei Einwilligung zur sofortigen Maklertätigkeit kostenfrei.
Jederzeit können Sie sich auf uns als kompetenten und vertrauensvollen Partner verlassen. Wir beraten Sie beim Kauf des geeigneten Grundstücks, im Umgang mit Ämtern, Anwälten und Notaren, bei Bank- und Behörden-Angelegenheiten. Wir bieten Ihnen Sicherheit und Professionalität und entlasten Sie dadurch spürbar.
Auch bei der Findung des richtigen Finanzpartners unterstützen wir Sie gerne. Unsere Finanzierungspartner freuen sich darauf, Sie persönlich kennen zu lernen. Eine Beratung ist für Sie kostenlos und aufschlussreich.
Grundriss
Grundriss Wohnhaus EG
>
>
Grundriss Wohnhaus DG
>
>
Grundriss Bauernhaus EG
>
>
Grundriss Bauernhaus DG
>
>
Adresse
24616 Brokstedt
Interessante Orte
Preis- und Lageinformationen
Preistrend für Bestandsimmobilien in Brokstedt