Dieses außergewöhnliche Anwesen bietet ein in dieser Größenordnung extrem seltenes Grundstücks- und Entwicklungspotenzial.
Im Mittelpunkt steht eine Gesamtgrundstücksfläche von ca. 18.157 m² (ca. 1,82 ha), davon ca. 8.855 m² ausgewiesene Wohnbaufläche (Bauland) – ergänzt durch land- und forstwirtschaftliche Flächen sowie bestehende Bebauung.
Die Flächen verteilen sich auf mehrere Flurstücke und bieten eine außergewöhnliche Kombination aus großem Baulandanteil, Bestandsimmobilie und zusätzlichem Wirtschaftsgebäude. Damit eignet sich das Objekt ideal für Kapitalanleger, Projektentwickler oder langfristige Bestandshalter, die nach seltenen Flächen mit Substanz und Entwicklungsspielraum suchen.
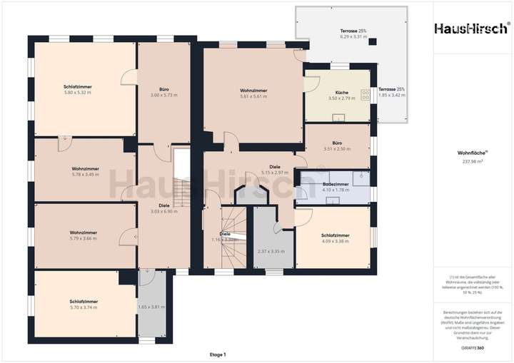
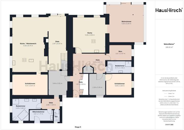
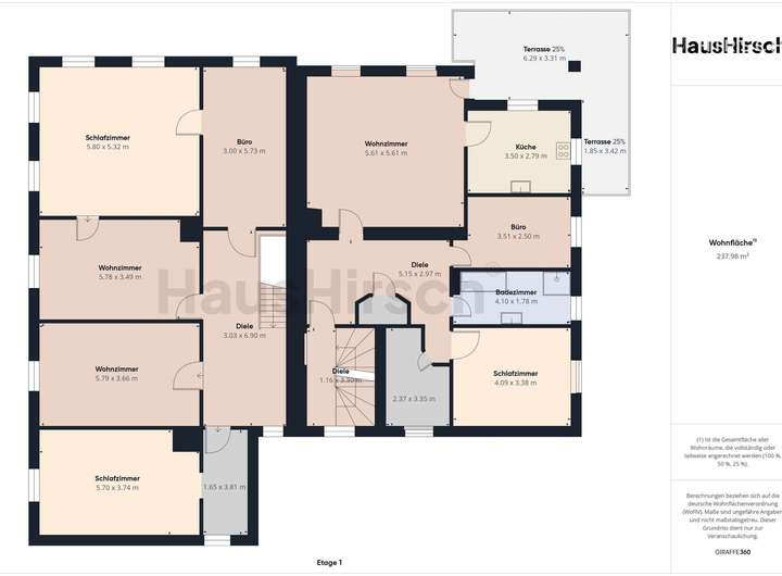
Auf dem Grundstück befindet sich ein Mehrfamilienhaus mit ca. 771 m² Wohnfläche, das sofort nutzbar ist und laufende Erträge ermöglicht. Zusätzlich steht ein genehmigtes landwirtschaftliches Wirtschaftsgebäude (Stall) mit ca. 1.250 m² Nutzfläche zur Verfügung, welches das Gesamtprojekt sinnvoll ergänzt.
Das Anwesen kann entweder separat (Mehrfamilienhaus auf Teilgrundstück) oder als Gesamtpaket inklusive sämtlicher Flächen erworben werden. Der erhebliche Baulandanteil, die Größe des Gesamtareals sowie die vorhandene Bebauung machen dieses Objekt zu einer absoluten Rarität im Markt.
1,8 HA Grundstück mit Mehrfamilienhaus - Projektchance mit Bergpanorama
87463 Dietmannsried
Die vollständige Adresse der Immobilie erhalten Sie vom Anbieter.
Auf Karte anzeigen
Die vollständige Adresse der Immobilie erhalten Sie vom Anbieter.
Finanzierungszertifikat
In nur zwei Minuten zu Ihrem persönlichen Finanzierungszertifkat.
Infos
| Vermarktungsart | Kaufen |
|---|---|
| Grundstücksfläche | 18.157 m2 |
| Empfohlene Nutzung | Bauerwartungsland, Mehrfamilienhaus, Villa |
| Verfügbar ab | nach Absprache |
Kosten
| Miete pro Jahr |
0 € |
|---|---|
| Provision |
4,76% Die angegebene Käuferprovision (inkl. MwSt.) ist verdient und fällig mit Beurkundung des notariellen Kaufvertrages. |
Finanzierungsrechner:
Kaufpreis:
600.000 €
Eigenkapital:
600.000 €
Monatliche Rate
0 €
Effektiver Jahreszins
0 %
Sollzinsbindung
10 Jahre
Beschreibung des Objekts
Lage
Die Immobilie liegt in idyllischer Umgebung im Markt Dietmannsried und ist eingebettet in eine von Wiesen und Feldern geprägte Landschaft. Wer Natur und Ruhe schätzt, findet hier den idealen Rückzugsort. Spazier- und Radwege beginnen quasi vor der Haustüre und laden zu Erholung inmitten des Allgäuer Voralpenlands ein.
Trotz der naturnahen Lage ist die Anbindung alltagstauglich: Mit dem Auto erreichen Sie in wenigen Minuten das Zentrum von Dietmannsried mit Supermärkten, Bäckereien und weiteren Einkaufsmöglichkeiten. Ärzte, Apotheken und Schulen sind ebenfalls im Ort vorhanden.
Die Verkehrsanbindung ist komfortabel: Über die nahegelegene A7 gelangen Sie schnell nach Kempten, Memmingen oder in Richtung München. Auch der Allgäu Airport Memmingen ist in kurzer Zeit erreichbar.
Sonstige Angaben
Sämtliche Angaben in diesem Exposé beruhen auf den Informationen des Verkäufers bzw. Dritter. Trotz sorgfältiger Prüfung kann keine Gewähr für die Richtigkeit, Vollständigkeit oder Aktualität übernommen werden. Verbindlich sind allein die Vereinbarungen im notariellen Kaufvertrag.
Weitere Dokumente
EnergieausweisGrundriss
Grundrisse (außer Keller)
>
>
Grundriss EG
>
>
Grundriss 1. OG
>
>
Grundriss 2. OG
>
>
Grundriss DG ausgebaut
>
>