Drei moderne Wohneinheiten mit Garten & Stellplätzen – familienfreundlich, ruhig und dennoch zentral gelegen.
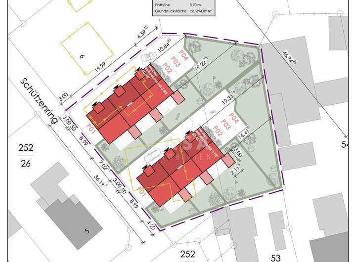
In ruhiger Wohnlage von Brinkum ist auf einem attraktiv geschnittenen Grundstück eine projektierte Reihenhausanlage mit drei Wohneinheiten verfügbar. Die durchdacht geplanten Reihenhäuser bieten modernen Wohnkomfort für Paare, kleine Familien oder Kapitalanleger. Jede Einheit verfügt über einen eigenen Garten sowie über 1 bis 2 private PKW-Stellplätze. Zusätzlich stehen ausreichend Besucherparkplätze zur Verfügung.
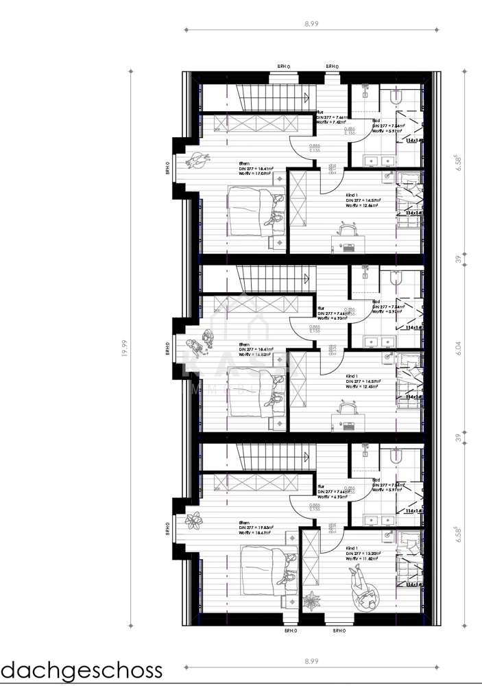
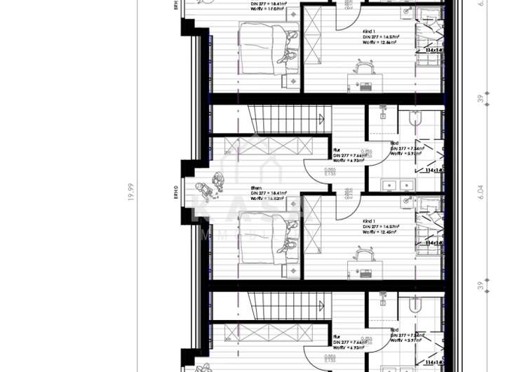
Die Häuser zeichnen sich durch eine offene Wohnraumgestaltung aus und bieten pro Einheit auf ca. 93 qm Wohnfläche folgende Raumaufteilung:
•2 Schlafzimmer
•offenes Wohn-/Esszimmer mit Küche
•Tageslichtbad
•separates Gäste-WC
•Hauswirtschaftsraum
Das Grundstück kann sauber übergeben werden, sodass der Bodenaustausch stattfinden kann. Insgesamt sind 2 x 3-Parteienhäuser geplant. Das Projekt kann auch im Gesamten mit 2 Grundstücken und insgesamt ca. 1.600 qm erworben werden. Bezüglich weiterer Informationen wie Preis etc. sprechen Sie uns gerne an.
Änderungswünsche können berücksichtigt werden – sprechen Sie uns gerne an, um Ihre individuellen Vorstellungen einzubringen.
Projektierte Reihenhausanlage in gewachsener Siedlung in Brinkum!
26835 Brinkum
Die vollständige Adresse der Immobilie erhalten Sie vom Anbieter.
Auf Karte anzeigen
Die vollständige Adresse der Immobilie erhalten Sie vom Anbieter.
Finanzierungszertifikat
In nur zwei Minuten zu Ihrem persönlichen Finanzierungszertifkat.
Infos
| Vermarktungsart | Kaufen |
|---|---|
| Grundstücksfläche | 800 m2 |
| Erschließung | Erschlossen |
| Empfohlene Nutzung | Mehrfamilienhaus |
Kosten
| Miete pro Jahr |
129.000 € |
|---|---|
| Provision |
5,95% (inkl. MwSt.) vom Kaufpreis |
Finanzierungsrechner:
Kaufpreis:
600.000 €
Eigenkapital:
600.000 €
Monatliche Rate
0 €
Effektiver Jahreszins
0 %
Sollzinsbindung
10 Jahre
Beschreibung des Objekts
Lage
Lage – familienfreundlich & verkehrsgünstig
Der Standort Schützenring 6 liegt in einem gewachsenen Wohngebiet von Brinkum – ruhig und dennoch verkehrsgünstig. Einkaufsmöglichkeiten wie Supermärkte, Bäckereien und Drogerien befinden sich nur wenige Minuten entfernt. Kindergärten und Schulen sind mit dem Rad schnell erreichbar.
Die ärztliche Versorgung, Apotheken und Freizeitangebote wie Sportvereine, Spielplätze und das nahe gelegene Hallenbad runden die familienfreundliche Infrastruktur ab.
Auch Pendler profitieren: Die Anbindung an die Autobahn sowie an den öffentlichen Nahverkehr ist ideal. Der Nachbarort Holtland ist in 2,5 km erreicht und bietet alle Anlaufpunkte des täglichen Bedarfs. Die Einkaufsstadt Leer mit Ihrer malerischen Altstadt ist in ca. 5km erreichen und in der Innenstadt befinden Sie sich in knapp 14 Minuten.
Sonstige Angaben
Die Käufer-Provision beträgt 5,95% vom Kaufpreis inkl. MwSt. Die Käufer-Provision ist verdient und fällig mit notarieller Beurkundung. Der Immobilienmakler hat einen provisionspflichtigen Maklervertrag in gleicher Höhe mit dem Verkäufer abgeschlossen. Grunderwerbsteuer, Notar- und Grundbuchkosten sind vom Käufer zu tragen.
Da wir Objektangaben nicht selbst ermitteln, übernehmen wir hierfür keine Gewähr.
Dieses Exposé ist nur für Sie persönlich bestimmt.
Eine Weitergabe an Dritte ist an unsere ausdrückliche Zustimmung gebunden und unterbindet nicht unseren Provisionsanspruch bei Zustandekommen eines Vertrages. Alle Gespräche sind über unser Büro zu führen. Bei Zuwiderhandlung behalten wir uns Schadenersatz bis zur Höhe der Provisionsansprüche ausdrücklich vor. Irrtum und Zwischenvermietung bleibt ausdrücklich vorbehalten.
Grundriss
_62803.jpg
>
>
_62805.jpg
>
>