Ihr neues Zuhause
Bei dieser schönen Immobilie handelt es sich um ein Einfamilienhaus aus dem Baujahr 1978, in exklusiver und ruhiger Lage. Hier werden Ihnen 4 Zimmer auf insgesamt ca. 168 m² Wohnfläche geboten. Das Besondere: Ein Teil des Obergeschosses (Dachgeschoss) kann noch ausgebaut werden, sodass hier noch ca. 2-3 Zimmer entstehen können. Das Haus ist ideal aufgeteilt und bietet Ihnen einen geräumigen Eingangsbereich (Art Foyer). Sie kommen von hier in den Bereich des Erdgeschosses bzw. über eine Treppe in das Obergeschoss.
Der Wohnbereich
Ein Highlight im Wohnzimmer sind die großen Fensterfronten, die für eine sehr angenehme Helligkeit sorgen. Vom Wohnbereich gelangen Sie auch direkt in den Essbereich. Hier sorgt ein Kamin an kühlen Tagen für eine schöne Stimmung!
Die Küche
Die geschlossene Küche liegt direkt gegenüber vom Essbereich und bietet Ihnen die Möglichkeit ihre Traumküche ganz nach eigenen Vorstellungen gestalten zu können. Ob offen zum Wohn-/ Essbereich oder geschlossen – hier stehen Ihnen viele Möglichkeiten zur Verfügung.
Das Badezimmer / WC
Ein geräumiges Vollbad mit Fenster befindet sich genau gegenüber vom Schlafzimmer im Erdgeschoss. Im Obergeschoss befindet sich noch ein Duschbad mit Fenster. Zusätzlich gibt es noch ein Gäste-WC im Erdgeschoss, welches Sie vom „Foyer“ aus erreichen.
Die Zimmer
Im Erdgeschoss befindet sich ein geräumiges Schlafzimmer mit Blick in den Garten. Dieser Bereich ist vom Wohnbereich mit einer Tür abgetrennt. Vor dem Schlafzimmer befindet sich noch Bereich „Ankleide“. Im Obergeschoss bietet zwei weitere große Zimmer ausreichen Platz. Zudem ist hier noch eine kleine Küche untergebracht.
Der Ausbaubereich im Obergeschoss
Ein Teil des Obergeschosses ist noch nicht ausgebaut. Hier bietet sich ein Ausbau an. Der Bereich wird derzeit als Staufläche genutzt und hier ist auch eine Sauna untergebracht.
Villenviertel Ahrensburg – schönes Einfamilienhaus in bester Lage zum Kauf - Wentzel Dr.
22926 Ahrensburg
Die vollständige Adresse der Immobilie erhalten Sie vom Anbieter.
Auf Karte anzeigen
Die vollständige Adresse der Immobilie erhalten Sie vom Anbieter.
Finanzierungszertifikat
In nur zwei Minuten zu Ihrem persönlichen Finanzierungszertifkat.
Infos
| Haustyp | Einfamilienhaus |
|---|---|
| Wohnfläche ca. | 168 m2 |
| Nutzfläche | 50 m2 |
| Grundstücksfläche | 866 m2 |
| Bezugsfrei ab | nach Vereinbarung |
| Zimmer | 4 |
| Badezimmer | 2 |
| Garage/Stellplatz | Garage |
| Anzahl Garage/Stellplatz | 1 |
Kosten
| Kaufpreis |
790.000 € |
|---|---|
| Provision |
3,57 % inkl. MwSt. |
Finanzierungsrechner:
Kaufpreis:
600.000 €
Eigenkapital:
600.000 €
Monatliche Rate
0 €
Effektiver Jahreszins
0 %
Sollzinsbindung
10 Jahre
Bausubstanz & Energieausweis
| Baujahr | 1978 |
|---|---|
| Objektzustand | Gepflegt |
| Qualität der Austattung | Normal |
| Heizungsart | Öl-Heizung |
| Wesentliche Energieträger | Öl |
| Energieausweis | liegt vor |
| Energieausweistyp | Bedarfsausweis |
| Energieverbrauchskennwert | 150,7 kWh/(m²*a) |
| Energieeffizienzklasse | E |
150,7
kWh/(m²*a)
Energieeffizienzklasse E
- A+
- A
- B
- C
- D
- E
- F
- G
- H
- 0
- 25
- 50
- 75
- 100
- 125
- 150
- 175
- 200
- 225
- >250
Beschreibung des Objekts
Ausstattung
Der Außenbereich & Garten
Sie gelangen von Wohn-/Essbereich in den Garten, welcher mit viel Liebe angelegt worden ist und Ihnen einen Ort zum Entspannen bietet. Egal ob Sie das bunte Frühlingserwachen oder im
Sommer die warmen Sonnenstrahlen genießen, im Herbst an der Feuerschale Stockbrot backen
oder im Winter einen Schneemann bauen: Der Garten zeigt mit seinem gut gepflegten Baum- und
Pflanzenbestand sowie den großzügig angelegten Rasenflächen und Blumenbeeten in jeder Saison ein neues Gesicht. Zwei nach Süden gelegene Terrassen laden zum Erholen ein.
Der Stellplatz
Ihre Fahrzeuge finden Platz in der Garage, direkt hinter dem Haus oder auf der großzügigen
Auffahrt. Die Garage hat zudem einen Anbau, in dem Gartengeräte und Gartenmöbel Platz finden. Die Garage ist mit einem elektrischen Tor ausgestattet.
Der Keller
Die Immobilie ist Teilunterkellert. In diesem Bereich gibt es 3 Räume, wobei in einem Raum die Heizung untergebracht ist.
Die Beheizung
Die Immobilie wird mit einer Öl-Heizung aus dem Jahr 2002 (Marke Viessmann) beheizt.
Lage
Die Umgebung
Die Immobilie befindet sich in einer ruhigen und sehr guten Wohnlage von Ahrensburg. Die Nachbarschaft ist geprägt durch Einzelhäuser und Villen. Der Stadtkern von Ahrensburg liegt nur ca. 1,2 Kilometer entfernt. Hier finden Sie diverse Einkaufsmöglichkeiten, Bäcker, Ärzte, Apotheken. Kitas und Schulen befinden sich alle im nahe gelegenem Umfeld. Die nächste Autobahn „A1“ erreichen Sie in ca. 10 Minuten Fahrzeit. Den Bahnhof „Ahrensburg“ erreichen Sie mit dem Fahrrad in ca. 5 Minuten. In die Hamburger Innenstadt gelangen Sie mit den öffentlichen Verkehrsmitteln in ca. 20 Minuten. Auch Sportbegeisterte kommen hier nicht zu kurz. In der Umgebung befinden sich Fitnessstudios, Tennis und Hockey Verein, Reitställe, sowie der Golf Club Hamburg- Ahrensburg e.V.
Insbesondere das Wahrzeichen der Stadt, das „Schloss Ahrensburg“ prägt das Bild und das kulturelle Leben der Stadt. Hier finden regelmäßig Veranstaltungen und Feste für Jung und Alt statt. Die malerische Umgebung des Schlosses lädt zu Aktivitäten wie ausgedehnten Spaziergängen, ein. Ahrensburg liegt direkt vor den Toren der Hansestadt Hamburg und ist perfekt für Familien geeignet, die nach einem Leben im Grünen streben und trotzdem das Stadtleben nicht missen möchten. Durch die Nähe zu den Städten Hamburg und Lübeck lassen sich diese beiden Komponenten perfekt miteinander vereinen.
Sonstige Angaben
Immobilienbewertung:
Sie möchten Ihre aktuelle Immobilie verkaufen und sind bereits auf der Suche nach etwas Neuem? Dann lassen Sie uns gemeinsam den nächsten Schritt gehen. Wir von Wentzel Dr. bewerten Ihr Zuhause kostenlos und unverbindlich – direkt bei Ihnen vor Ort oder am Telefon.
Finanzierung:
Um bestmöglich auf Ihren bevorstehenden Kauf vorbereitet zu sein, empfehlen wir Ihnen, auch die passende Finanzierung im Blick zu behalten. Gern unterstütze wir Sie dabei und bieten Ihnen mit unseren starken Partnern maßgeschneiderte Lösungen, die Ihre Wünsche und finanziellen Möglichkeiten berücksichtigen.
Sprechen Sie unseren Berater unter den angegebenen Kontaktdaten gerne an!
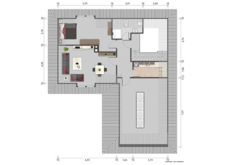
Grundriss
Grundriss, Kellergeschoss
>
>
Grundriss, Erdgeschoss
>
>
Grundriss, Obergeschoss
>
>
Adresse
22926 Ahrensburg
Interessante Orte
Preis- und Lageinformationen
Preistrend für Bestandsimmobilien in Ahrensburg