Sehr geehrte Leser dieses Exposés,
wenn für Sie die Lage entscheidend ist (und das sollte sie sein), dann müsste unser Angebot ein Volltreffer sein: wenige Gehminuten zu vielen Einkaufsmöglichkeiten und Annehmlichkeiten, Bushaltestelle gleich neben dem Haus, und bei alldem eine Randlage mit weitem freiem Ausblick!
Das Raumangebot des Hauses ist beachtlich: über 250 m² nutzbare Fläche auf 3 Etagen, davon ca. 146 m² Wohnfläche, mit sehr schöner Belichtung aus Richtung Südost, Südwest und Nordwest.
Das mit Baujahr 2009 noch sehr junge Haus (wobei zahlreiche Details erst in den letzten Jahren erfolgt sind) besticht durch die gleichermaßen freundlich-helle wie auch hochwertige Ausstattung.
Die ökologische Gebäudehülle mit hervorragendem U-Gefach-Wert, in Verbindung mit modernster Haustechnik, garantiert ein angenehmes Wohnklima und dabei minimale Betriebskosten.
Zeitgemäße Holzständerbauweise, ein hochisoliertes Thermodach, 2-fach-Fensterverglasung, wärme-brückenfreie Konstruktion, sind die Hauptattribute dieses Hauses. Der geringe Heizenergiebedarf wird effizient mit einer Luft/Wasser Wärmepumpe realisiert, die Wärmeabgabe erfolgt flächendeckend über eine Fußbodenheizung, wobei jeder Raum separat temperiert werden kann. Nachhaltiges Bauen bedeutet auch in Zukunft eine sehr hohe Wertstabilität eines Eigenheims, bezogen auf die anstehenden Energieeffizienzauflagen und die Verwendung von umweltschonenden Materialien.
Das zum Haus gehörende Grundstück hat eine Größe von 483 m², ein guter Rahmen für das Haus.
Bitte sehen Sie zu weiteren Details die Bilder und Grundrisse in unserem Exposé.
Das Haus kann in individueller Vereinbarung übergeben werden, auf Wunsch auch relativ kurzfristig, Kaufpreiszahlung vorausgesetzt, versteht sich.
Geräumiges neuwertiges Einfamilienhaus in Ortsrandlage von Ingolstadt-Südwest
85051 Ingolstadt
Die vollständige Adresse der Immobilie erhalten Sie vom Anbieter.
Auf Karte anzeigen
Die vollständige Adresse der Immobilie erhalten Sie vom Anbieter.
Finanzierungszertifikat
In nur zwei Minuten zu Ihrem persönlichen Finanzierungszertifkat.
Infos
| Haustyp | Einfamilienhaus |
|---|---|
| Etagenzahl | 3 |
| Wohnfläche ca. | 146 m2 |
| Nutzfläche | 130 m2 |
| Grundstücksfläche | 483 m2 |
| Bezugsfrei ab | 01.02.2026 |
| Zimmer | 4 |
| Schlafzimmer | 3 |
| Badezimmer | 2 |
| Garage/Stellplatz | Außenstellplatz |
| Anzahl Garage/Stellplatz | 5 |
Kosten
| Kaufpreis |
875.000 € |
|---|---|
| Provision |
2,38 % inkl. MwSt. Käuferprovision 2,38 % inkl. MwSt. Käuferprovision, verdient und fällig mit Beurkundung des notariellen Kaufvertrages. Der Makler hat einen provisionspflichtigen Maklervertrag mit dem Verkäufer in gleicher Höhe abgeschlossen. |
Finanzierungsrechner:
Kaufpreis:
600.000 €
Eigenkapital:
600.000 €
Monatliche Rate
0 €
Effektiver Jahreszins
0 %
Sollzinsbindung
10 Jahre
Bausubstanz & Energieausweis
| Baujahr | 2009 |
|---|---|
| Letzte Sanierung | 2022 |
| Bauphase | Haus fertig gestellt |
| Objektzustand | Neuwertig |
| Qualität der Austattung | Gehoben |
| Heizungsart | Wärmepumpe |
| Wesentliche Energieträger | Umweltwärme |
| Energieausweis | liegt vor |
| Energieausweistyp | Verbrauchsausweis |
| Energieverbrauchskennwert | 39,9 kWh/(m²*a) |
| Energieeffizienzklasse | A |
39,9
kWh/(m²*a)
Energieeffizienzklasse A
- A+
- A
- B
- C
- D
- E
- F
- G
- H
- 0
- 25
- 50
- 75
- 100
- 125
- 150
- 175
- 200
- 225
- >250
Beschreibung des Objekts
Ausstattung
Hier die wichtigsten Qualitätsmerkmale:
Außenwände in moderner Holzständerbauweise;
Voll-Unterkellerung in wasserdichter Ausführung (sog. 'Weiße Wanne');
Satteldach mit 45° steiler Dachneigung, für beste Raumausnutzung im Dachgeschoss;
Zentralheizung über Luft-/Wasser-Wärmepumpe (installiert 2018), in Verbindung mit Fußbodenheizung, im Hobbykeller Heizkörper plus Holzofen-Anschlussmöglichkeit;
Hervorragender Energieausweis-Wert: nur 39,9 kWh/(m²*a), 'A';
Kunststofffenster weiß, mit 2-fach-Verglasung und Rollos;
Ggeschmackvoll ausgestattete Bäder: Bad im EG mit bodengleicher Dusche, Bad im DG mit Wanne;
Ganzjahres-Wintergarten (errichtet 2018) mit Klima-Anlage mit eigener Wärmepumpe, Fußbodenheizung und elektrisch bedienbarer Außenbeschattungsanlage;
Attraktive filigrane Treppe mit Trittstufen und Handlauf aus Hartholz, vom EG bis ins DG;
Hochwertige ansprechende Böden: großformatige helle Fliesen im gesamten EG einschließlich Wintergarten, im Dachgeschoss Vinylboden in Buche-Optik im DG, Untergeschoss komplett gefliest;
Südwest-Terrasse mit Sonne bis in die Abendstunden, ohne Straßenangrenzung;
Garten-Gerätehaus;
Überbreite Garage, plus Carport für bis zu 3 Pkw's oder auch ein Wohnmobil, plus 3 Stellplätze vor dem Haus, mit Gehsteigabsenkung;
54 Felder große Photovoltaik-Anlage, mit einem 10-kw-Pufferspeicher (installiert 2021);
Regenwasserzisterne.
Lage
Ingolstadt, das im Jahre 806 erstmals urkundlich erwähnt wurde, ist in vieler Hinsicht eine bemerkens-werte Stadt. So ziemlich in der Mitte Bayerns gelegen (nur wenige Kilometer vom geografischen Mittelpunkt Bayerns entfernt), ist die mittlerweile auf ca. 140.000 Einwohner angewachsene Großstadt ein begehrter Ort zum Arbeiten und Wohnen geworden. Dies dank zahlreicher Arbeitgeber, an Platz 1 natürlich Audi, an Platz 2 das Klinikum Ingolstadt, das viertgrößte Bayerns, und vieler weiterer Betriebe, die gute und sichere Arbeitsplätze bieten. Mit ausgezeichneter Infrastruktur, sowohl bildungstechnisch als auch die vielfältigen Einkaufsmöglichkeiten betreffend, ist Ingolstadt erste Wahl.
Weithin bekannt ist das Stadttheater Ingolstadt, aber auch 13 Museen und viele altehrwürdige Bauwerke der historischen Altstadt sind Teil dessen, was Ingolstadt zur charmanten liebenswerten Stadt an der Donau macht.
Viele Einrichtungen zur Deckung des täglichen Bedarfs befinden sich im näheren Umfeld des Hauses, zudem gibt es eine Busstation gleich neben dem Haus, mit kurzen Taktzeiten in die Innenstadt.
Hier ein paar wichtige Entfernungen (ohne Anspruch auf Vollständigkeit):
Stadtzentrum 3,5 km, IN-Hauptbahnhof 2,2 km, Kindergarten Spitalhof 600 m, Grundschule Haunwöhr 950 m, Aldi Süd 500 m, Edeka mit Backstube Wünsche und Apotheke im Gebäude 950 m, Backstube Hackner 900 m, Metzgerei Pauleser 900 m, weitere Apotheke 900 m, Hausarztzentrum IN 1000 m.
Für sportliche Aktivitäten und zur Freizeitgestaltung bietet 'IN' zahlreiche Parks und Baggerseen an, die auch mit dem Fahrrad bequem zu erreichen sind.
Hier eine Immobilie zu erwerben, ist eine absolut erstrebenswerte Sache, sind Ingolstadt und auch die Lage des Hauses doch ein Garant für langfristigen Werterhalt.
Sonstige Angaben
Der Kaufpreis beträgt EUR 875.000,- für das Haus inkl. Garage und Carport.
Beim Abschluss des notariellen Kaufvertrages stellen wir dem Käufer eine Nachweis- und/oder Vermittlungsprovision in Höhe von 2,38 % inkl. ges. MwSt. in Rechnung.
Wir haben einen provisionspflichtigen Maklervertrag mit dem Verkäufer in gleicher Höhe geschlossen.
Grundriss
Grundriss EG
>
>
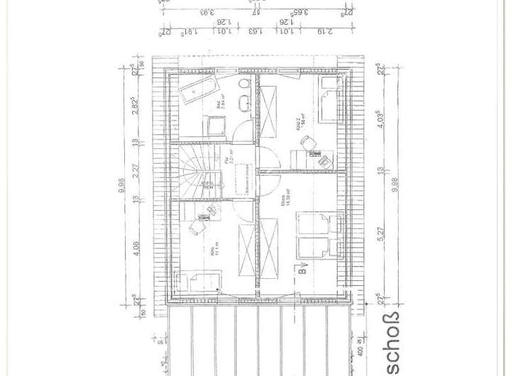
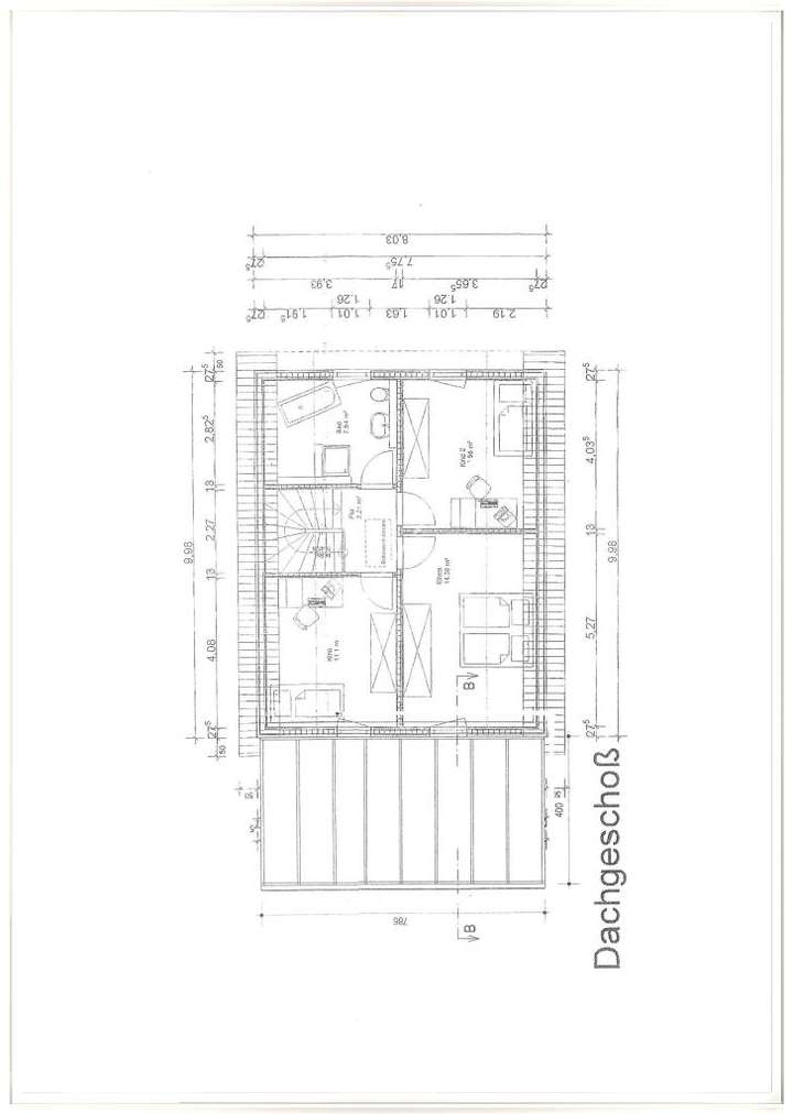
Grundriss DG
>
>
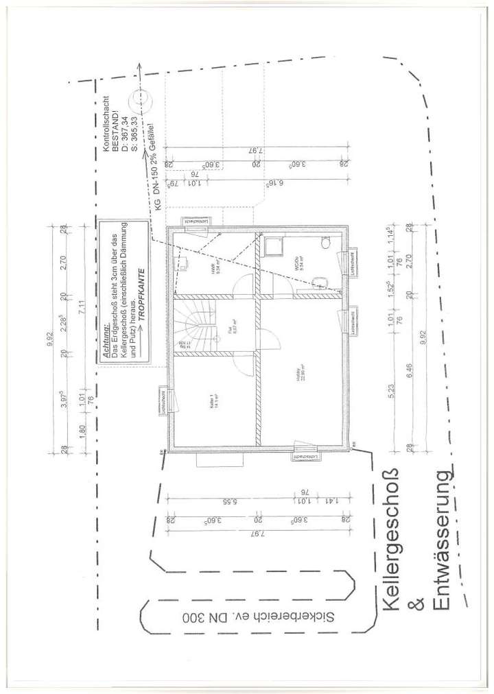
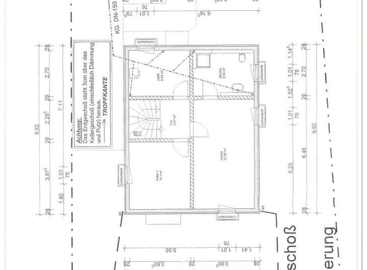
Grundriss UG
>
>
Adresse
85051 Ingolstadt
Interessante Orte
Preis- und Lageinformationen
Preistrend für Bestandsimmobilien in Südwest