+++Teilgrundstück in Südlage+++
Für die zweite Doppelhaushälfte wird der Mitbauherr gesucht.
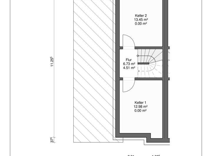
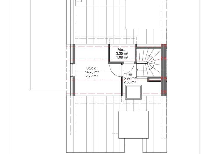
Ca. 132 m² Netto-Wohnfläche.
Teilkeller, Weißer Wärmedämmputz als Außenfassade.
Große Fenster zur optimalen Belichtung der Räume.
Gute Innenausstattung.
Alle nach aktueller GEG Vorgabe.
Noch in 2026 Fertigstellung !
*** Mittbauherr für zweite Grundstückshälfte in Südlage von D - Vennhausen gesucht***
40627 Düsseldorf
Die vollständige Adresse der Immobilie erhalten Sie vom Anbieter.
Auf Karte anzeigen
Die vollständige Adresse der Immobilie erhalten Sie vom Anbieter.
Finanzierungszertifikat
In nur zwei Minuten zu Ihrem persönlichen Finanzierungszertifkat.
Infos
| Vermarktungsart | Kaufen |
|---|---|
| Grundstücksfläche | 370 m2 |
| Erschließung | Erschlossen |
| Empfohlene Nutzung | Doppelhaus |
| Grundflächenzahl (GRZ) | 0.3 |
| Geschossflächenzahl (GFZ) | 0.6 |
| Bebaubar nach | Bebauungsplan |
| Verfügbar ab | sofort |
Kosten
| Miete pro Jahr |
0 € |
|---|---|
| Provision |
3,57 % vom Grundstückswert |
Finanzierungsrechner:
Kaufpreis:
600.000 €
Eigenkapital:
600.000 €
Monatliche Rate
0 €
Effektiver Jahreszins
0 %
Sollzinsbindung
10 Jahre
Beschreibung des Objekts
Lage
Attraktive Süd-Lage.
Vorhandener alter Baubestand wird in die Gartenplanung mit einbezogen.
Sonstige Angaben
Buchen Sie einen unverbindlichen Beratungstermin.