Dieses freistehende Einfamilienhaus in Holzbauweise befindet sich in angenehmer, ruhiger Lage in zweiter Reihe im Berliner Bezirk Reinickendorf. Die Umgebung ist geprägt von Einfamilienhäusern, viel Grün und einer entspannten Nachbarschaftsatmosphäre.
Das Haus, das 1973 von der Fertighausfirma OKAL in Holzständerbauweise errichtet wurde, verfügt über 6 Zimmer auf zwei Etagen und ist vollunterkellert, wodurch zusätzliche Nutzfläche zur Verfügung steht. Die Immobilie befindet sich in einem renovierungsbedürftigen Zustand und bietet damit eine hervorragende Gelegenheit, eigene Wohnideen zu verwirklichen und das Haus ganz nach den eigenen Vorstellungen zu modernisieren.
Einfamilienhaus mit Garten – viel Potenzial in ruhiger Wohnlage
Im Erpelgrund 7a,
13503 Berlin
Auf Karte anzeigen
Finanzierungszertifikat
In nur zwei Minuten zu Ihrem persönlichen Finanzierungszertifkat.
Infos
| Haustyp | Einfamilienhaus |
|---|---|
| Wohnfläche ca. | 142 m2 |
| Grundstücksfläche | 662 m2 |
| Bezugsfrei ab | sofort |
| Zimmer | 6 |
| Badezimmer | 2 |
| Garage/Stellplatz | Garage |
| Anzahl Garage/Stellplatz | 1 |
Kosten
| Kaufpreis |
420.000 € |
|---|---|
| Provision |
3,57 % des beurkundeten Kaufpreises inkl. der gesetzlichen MwSt. 3,57 % des beurkundeten Kaufpreises inkl. der gesetzlichen MwSt. |
Finanzierungsrechner:
Kaufpreis:
600.000 €
Eigenkapital:
600.000 €
Monatliche Rate
0 €
Effektiver Jahreszins
0 %
Sollzinsbindung
10 Jahre
Bausubstanz & Energieausweis
| Baujahr | 1973 |
|---|---|
| Heizungsart | Öl-Heizung |
| Wesentliche Energieträger | Öl |
| Energieausweis | liegt vor |
| Energieausweistyp | Verbrauchsausweis |
| Energieverbrauchskennwert | 148,4 kWh/(m²*a) |
| Energieeffizienzklasse | E |
148,4
kWh/(m²*a)
Energieeffizienzklasse E
- A+
- A
- B
- C
- D
- E
- F
- G
- H
- 0
- 25
- 50
- 75
- 100
- 125
- 150
- 175
- 200
- 225
- >250
Beschreibung des Objekts
Lage
Das Haus befindet sich in einer ruhigen Wohnlage im Berliner Bezirk Reinickendorf, Ortsteil Heiligensee, in der Straße Im Erpelgrund – einer wenig befahrenen Anliegerstraße mit angenehmer Nachbarschaft. Die geschützte Lage in zweiter Reihe sorgt für ein entspanntes Wohnumfeld mit reduziertem Durchgangsverkehr.
Die Umgebung ist geprägt von Wohnhäusern, kleinen Gärten und viel Grün. In unmittelbarer Nähe befinden sich alle wichtigen Einrichtungen des täglichen Bedarfs: Supermarkt, Apotheke sowie Schulen und Kitas sind gut erreichbar. Auch Ärzte, Café und Restaurants befinden sich in der näheren Umgebung.
Der öffentliche Nahverkehr ist über eine Buslinie angebunden – die nächste Bushaltestelle liegt nur wenige Gehminuten entfernt. Von dort besteht Anschluss an die S- und U-Bahn in Tegel. Mit dem Auto erreicht man die Berliner Innenstadt über die Heiligenseestraße oder die A111 in etwa 25–30 Minuten, je nach Verkehrslage.
Naherholung bieten unter anderem der Tegeler Forst, der Tegeler See sowie die Strandbäder Heiligensee und Tegel, die mit dem Fahrrad oder Auto in kurzer Zeit erreichbar sind.
Sonstige Angaben
Dieses Kaufangebot ist provisionspflichtig. Dem Erwerber wird bei Abschluss eines Kaufvertrages eine Provision in Höhe von 3,57 % des beurkundeten Kaufpreises inkl. der gesetzlichen MwSt. berechnet. Abweichungen sind nur in Form einer gesonderten, schriftlichen Vereinbarung gültig. Die Resino Real Estate GmbH ist Rechnungsstellerin und Empfängerin der Provision. Irrtum und Zwischenverkauf sind vorbehalten. Alle Informationen und Unterlagen sind uns von Seiten des Verkäufers übermittelt und werden ohne Haftung für Vollständigkeit oder Fehlinformationen von uns weitergeleitet. Hinsichtlich weiterer Dienstleistungen in Zusammenhang mit dem Erwerb, wie beispielsweise Finanzierungen oder entsprechende Versicherungen unterstützen wir Sie gerne. Es ist uns leider nicht gestattet, Sie zu steuerrelevanten Aspekten zu beraten. Hierzu wenden Sie sich bitte an Ihren Steuerberater, beziehungsweise werden wir auch in diesem Zusammenhang gerne vermittelnd tätig. Es gelten unsere AGB.
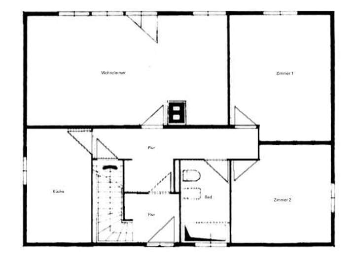
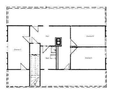
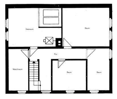
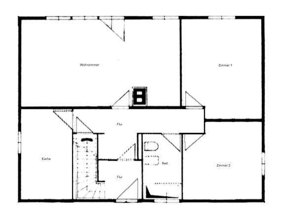
Grundriss
EG
>
>
DG
>
>
KG
>
>
Adresse
Im Erpelgrund 7a, 13503 Berlin
Interessante Orte
Preis- und Lageinformationen
Preistrend für Bestandsimmobilien in Heiligensee (Reinickendorf)