Dieses freistehende Einfamilienhaus von Bien-Zenker aus dem Jahr 1972 befindet sich in begehrter Lage von Rudow, unweit des idyllischen Mauseparks. Mit 7 Zimmern auf einer Wohnfläche von ca. 151 m² und zusätzlichen ca. 148 m² Nutzfläche bietet die Immobilie ein großzügiges Raumangebot für Familien mit Platzbedarf. Die umfassende Sanierung im Jahr 2000, bei der unter anderem Fenster und Außenfassade erneuert wurden, verleiht dem Haus einen gepflegten und zeitgemäßen Eindruck.
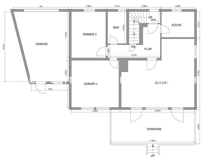
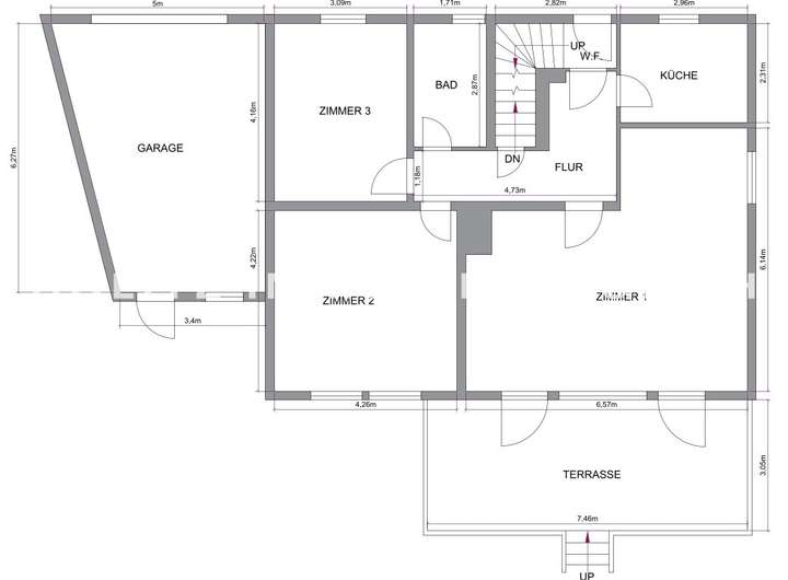
Beim Betreten des Hauses empfängt Sie ein einladender Flur, von dem Sie direkt in das helle Wohnzimmer gelangen. Hier sorgen Parkettboden, große Fensterfronten und der Zugang zur sonnigen Terrasse für eine angenehme Wohnatmosphäre. Eine Markise sowie Jalousien bieten zusätzlichen Komfort. Angrenzend befindet sich die funktional ausgestattete Küche, die sowohl kurzen Wegen als auch familiärem Zusammensein gerecht wird. Ergänzt wird das Erdgeschoss durch ein weiteres Zimmer, das sich ideal als Arbeits- oder Gästezimmer eignet. Direkt daneben befindet sich ein großes Tageslichtbad.
Über die Treppe erreichen Sie das Obergeschoss, das mit mehreren flexibel nutzbaren Zimmern überzeugt – perfekt als Schlafräume, Kinderzimmer oder private Rückzugsorte. Ein zweites Tageslichtbad mit Wanne sorgt hier für zusätzlichen Komfort. Das Obergeschoss läßt sich leicht in eine Einliegerwohnung umfunktionieren.
Der Vollkeller eröffnet mit ca. 80 m² weitere Nutzungsmöglichkeiten: Ein großer Hobbyraum, derzeit als Bar genutzt, lädt zu geselligen Stunden ein. Zudem stehen eine weitere Küche und eine Dusche zur Verfügung – ideal für Gäste oder als praktischer Hauswirtschaftsbereich.
Eine am Haus gelegene Garage rundet das Angebot ab. Die Kombination aus durchdachter Raumaufteilung, vielseitigen Nutzungsperspektiven und der ruhigen, grünen Lage macht dieses Einfamilienhaus zu einem attraktiven Zuhause. Überzeugen Sie sich gern persönlich bei einer Besichtigung.
Rudow: Großzügiges Wohnhaus: 7 Zi.,151m² Wfl+147m² Nfl., 2 Bäder, tollem Garten auf 579m² Grdst.
12357 Berlin
Die vollständige Adresse der Immobilie erhalten Sie vom Anbieter.
Auf Karte anzeigen
Die vollständige Adresse der Immobilie erhalten Sie vom Anbieter.
Finanzierungszertifikat
In nur zwei Minuten zu Ihrem persönlichen Finanzierungszertifkat.
Infos
| Haustyp | Einfamilienhaus |
|---|---|
| Wohnfläche ca. | 151 m2 |
| Nutzfläche | 147,96 m2 |
| Grundstücksfläche | 579 m2 |
| Bezugsfrei ab | sofort / frei |
| Zimmer | 6,5 |
| Badezimmer | 2 |
| Garage/Stellplatz | Garage |
| Anzahl Garage/Stellplatz | 1 |
Kosten
| Kaufpreis |
595.000 € |
|---|---|
| Provision |
3,57% |
Finanzierungsrechner:
Kaufpreis:
600.000 €
Eigenkapital:
600.000 €
Monatliche Rate
0 €
Effektiver Jahreszins
0 %
Sollzinsbindung
10 Jahre
Bausubstanz & Energieausweis
| Baujahr | 1972 |
|---|---|
| Objektzustand | Renovierungsbedürftig |
| Heizungsart | Zentralheizung |
| Wesentliche Energieträger | Gas |
Beschreibung des Objekts
Ausstattung
- 7 Zimmer Holzhaus mit Sonnenterrasse
- Parkettboden im Wohnzimmer
- Markise und Jalousien
- 2 Tageslichtbäder
- voll unterkellert
- Keller mit 80m² / großem Hobbyraum als Bar
- im Keller weitere Dusche und Küche
- Garage am Haus
Lage
Diese charmante Immobilie befindet sich im begehrten Stadtteil Rudow im Süden Berlins. Rudow ist bekannt für seine ruhige, familienfreundliche Atmosphäre und seine hervorragende Anbindung an die Innenstadt. In der Umgebung finden Sie zahlreiche Grünflächen und Parkanlagen, welche zu erholsamen Spaziergängen und Freizeitaktivitäten im Freien einladen.
Der Stadtteil bietet eine ausgezeichnete Infrastruktur mit einer Vielzahl an Einkaufsmöglichkeiten, Schulen und Kindergärten, die bequem zu Fuß oder mit dem Fahrrad erreichbar sind. Die Nähe zur U-Bahn-Station garantiert eine schnelle und unkomplizierte Verbindung zu anderen Teilen Berlins sowie eine zügige Anbindung an den internationalen Flughafen Berlin Brandenburg.
Sonstige Angaben
Das Objekt wird im qualifizierten Alleinauftrag angeboten. Bitte beachten Sie, dass wir keine telefonischen Auskünfte erteilen können.
Nachfragen können nur bei vollständiger Angabe von Name, Adresse, Telefonnummer
beantwortet werden.
Courtage
Der Maklervertrag mit der Bölitz Immobilien GmbH und/oder einem von uns Beauftragten kommt durch die Bestätigung der Inanspruchnahme unserer Maklertätigkeit in Textform zustande, z. B. insbesondere durch die Unterschrift des Suchkundenvertrages und/oder des Objekt-Exposés.
Die Höhe der Courtage richtet sich nach den ab dem 23.12.2020 geltenden gesetzlichen Regelungen zur Teilung der Maklercourtage. Danach wird die Courtage regelmäßig für beide Parteien (Eigentümer und Käufer) jeweils in Höhe von 3 % zuzüglich Umsatzsteuer in der jeweils geltenden Höhe verdient und fällig, derzeit also insgesamt 3,57 % des Kaufpreises einschließlich Umsatzsteuer bei notariellem Vertragsabschluss.
Die Höhe der Bruttocourtage passt sich automatisch an, wenn sich der Umsatzsteuersatz ändert. Grunderwerbssteuer, Notar- und Gerichtskosten trägt der Käufer.
Hinweise
Alle Angaben erfolgen ohne Gewähr und basieren ausschließlich auf Informationen, die uns von unserem Auftraggeber übermittelt wurden. Für Vollständigkeit, Richtigkeit und Aktualität dieser Angaben übernehmen wir keine Haftung. Ein Zwischenverkauf bleibt vorbehalten.
Ist das von uns nachgewiesene Objekt dem Interessenten bereits bekannt, ist uns dies unverzüglich mitzuteilen. Die Weitergabe dieses Exposés an Dritte ohne unsere Zustimmung kann Courtage- bzw. Schadensersatzansprüche auslösen.
Im Übrigen gelten die beigefügten Allgemeinen Geschäftsbedingungen der Bölitz Immobilien GmbH für die Rechtsbeziehung zwischen Ihnen und uns.
Grundriss
Grundriss DG
>
>
Grundriss EG
>
>
Grundriss UG
>
>
Adresse
12357 Berlin
Interessante Orte
Preis- und Lageinformationen
Preistrend für Bestandsimmobilien in Rudow (Neukölln)