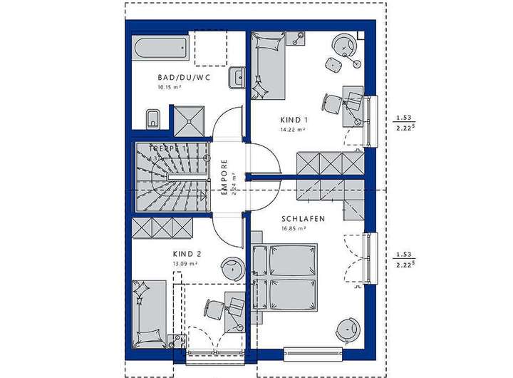
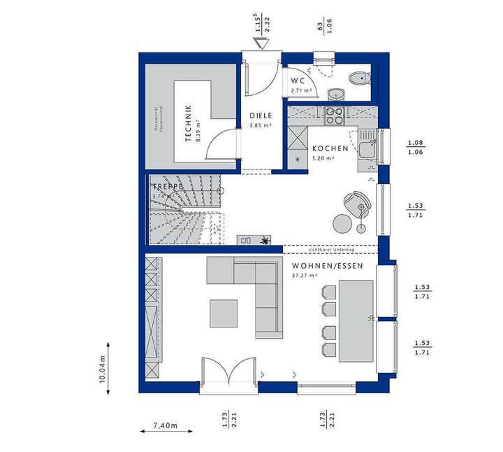
Eine interessante Lösung für kleinere bis mittelgroße Grundstücke ist dieses Doppelhaus. Der kompakte Baukörper nutzt den vorhandenen Platz optimal aus und bietet innen wie außen viel Freiraum für zwei vierköpfige Familien. Ein weiterer Vorteil: Die Parteien teilen sich nicht nur das Grundstück, sondern auch sämtliche Baunebenkosten. Bei der Gestaltung ihres neuen Traumhauses sind sie völlig frei. Wie wäre es beispielsweise mit modernen Zwerchgiebeln, die sich nicht nur durch die Flachdächer, sondern auch durch die Fassadenaufdopplungen vom Haupthaus mit klassischem Satteldach absetzen? Ein weiterer Blickfang ist das Panoramafenster, das durch den breiten grauen Rahmen wie ein Bild wirkt. Ergänzt wird das Architektur-Konzept von weiteren formschönen Fensterpartien, die von schlanken Lichtbändern im Dachgeschoss bis hin zu breiten Fenstertüren im Erdgeschoss reichen. Letztere fluten die Innenräume nicht nur mit Licht, sondern gewähren auch Zugang zur Terrasse. Im Hausinnern steht beiden Parteien eine Wohnfläche von mehr als 121 m² zur Verfügung - viel Raum, der individuell gestaltet werden möchte. Empfangen werden Besucher und Bewohner von einer kleinen, aber feinen Diele, an die sich ein Gäste-WC und ein Technikraum anschließen. Geradeaus mündet sie in die Gemeinschaftsräume, die überraschend großzügig bemessen sind. Die Küche bietet mit ihrer U-Form genügend Stau- und Arbeitsfläche. Wer möchte, kann zusätzlich eine Kücheninsel mit Theke integrieren. Der lange Esstisch findet vor dem Panoramafenster Platz. In den Winkel zwischen kulinarischem Bereich und Wohnzimmer fügt sich der Treppenaufgang ein. So ist die gemütliche Couchlandschaft nicht gleich von der Haustür aus einsehbar. Das Dachgeschoss entpuppt sich als wahrer Wohntraum für Familien. Um eine kleine, aber luftige Empore gruppieren sich drei gut geschnittene Schlafzimmer, die viele Einrichtungsoptionen offerieren sowie ein geräumiges Familienbad, das über ein Dachflächenfenster in eine freundliche Atmosphäre getaucht wird.
Grundstücke in Dresden Mobschatz für Ihre Doppelhaushälfte
01156 Weinböhla
Die vollständige Adresse der Immobilie erhalten Sie vom Anbieter.
Auf Karte anzeigen
Die vollständige Adresse der Immobilie erhalten Sie vom Anbieter.
Finanzierungszertifikat
In nur zwei Minuten zu Ihrem persönlichen Finanzierungszertifkat.
Infos
| Haustyp | Doppelhaushaelfte |
|---|---|
| Wohnfläche ca. | 135 m2 |
| Grundstücksfläche | 600 m2 |
| Bezugsfrei ab | sofort |
| Zimmer | 4 |
| Schlafzimmer | 3 |
| Badezimmer | 2 |
| Anzahl Garage/Stellplatz | 2 |
Kosten
| Kaufpreis |
599.000 € |
|---|
Finanzierungsrechner:
Kaufpreis:
600.000 €
Eigenkapital:
600.000 €
Monatliche Rate
0 €
Effektiver Jahreszins
0 %
Sollzinsbindung
10 Jahre
Bausubstanz & Energieausweis
| Baujahr | 2026 |
|---|---|
| Bauphase | Haus in Planung (projektiert) |
| Qualität der Austattung | Gehoben |
| Heizungsart | Fußbodenheizung |
Beschreibung des Objekts
Ausstattung
Dieses Angebot beinhaltet folgende Positionen:
- inkl. energieeffizienter schlüsselfertiger Doppelhaushälfte auf Bodenplatte
(Keller optional möglich)
- inkl. Baunebenekosten
- inkl. Grundstückskaufpreis und Kaufnebenkosten
- inkl. Architekten- und Vermessungsleistungen
- inkl. kompetente Beratungs- und individuelle Planungsleistungen
- inkl. durchgängige persönliche Begleitung des gesamten Bauvorhabens
- inkl. erstklassige Bemusterungsbetreuung vom Spezialisten
- inkl. Küche
- inkl. ausführlicher Finanzierungs- und Fördermittelberatung vor Ort
Der Innenausbau kann sowohl komplett oder teilweise über uns oder Sie selbst erfolgen.
Vereinbaren Sie gerne einen Planungstermin, in dem wir ihr individuelles Angebot erstellen.
Lage
6 einzugsfertige Doppelhaushälften in Mobschatz gelegen warten auf Bauherren!
Verschiedene Grundstücksgrößen stehen zur Wahl.
Ebenso ist jede Haushälfte frei nach Ihren Wünschen planbar.
Ein Beratungstermin sowie die Besichtigung der Grundstücke ist ab sofort möglich.
Sonstige Angaben
Um Angebot und Nachfrage im exklusiven Neubausegment in und um Dresden optimal erfüllen zu können, pflege ich ein erstklassiges Netzwerk.
Sie profitieren von weitreichenden Kontakten zu Architekten, Maklern, Notaren, Sachverständigen sowie zum Garten- und Landschaftsbau.
Die Eigenschaften Diskretion, Seriosität und Zuverlässigkeit kennzeichnen seit jeher meine Arbeit! Wenn Sie sich eine professionelle Beratung wünschen, stehen ich Ihnen als erfahrene Planerin für erstklassige Neubauprojekte jederzeit zur Verfügung.
Ihre Janine Teichmann
Mobil: 0176 /303 727 90
Mail: Janine.Teichmann@bien-zenker.de
Grundriss
csm Bien-Zenker-Haeuser-Doppel
>
>
csm Bien-Zenker-Haeuser-Doppel
>
>
Adresse
01156 Weinböhla
Interessante Orte
Preis- und Lageinformationen
Preistrend für Bestandsimmobilien in Weinböhla