BUILD YOUR WAY. OWN YOUR SPACE.
Dein Traum vom Eigenheim beginnt hier. White&Black bringt dich dorthin – einfach, erschwinglich, zukunftssicher.
THE RIGHT MATCH.
Finanzierung, Grundstück, Haus – wir bringen alles zusammen.
FEELS LIKE HOME.
Dein Stil, dein Design, dein Zuhause.
MORE HOME. LESS WORRY.
Klare Prozesse, smarte Lösungen, stressfreier Hausbau.
SIMPLE IST THE NEW LUXURY.
Durchdachte Architektur, hochwertige Ausstattung, flexibles Design.
Es gibt nie den perfekten Moment – aber den richtigen Schritt. Warum warten?
START YOUR HOME JOURNEY TODAY.
Designed with Care – Weil gutes Design den Unterschied macht.
39164 Seehausen
Die vollständige Adresse der Immobilie erhalten Sie vom Anbieter.
Auf Karte anzeigen
Die vollständige Adresse der Immobilie erhalten Sie vom Anbieter.
Finanzierungszertifikat
In nur zwei Minuten zu Ihrem persönlichen Finanzierungszertifkat.
Infos
| Haustyp | Einfamilienhaus |
|---|---|
| Wohnfläche ca. | 119 m2 |
| Nutzfläche | 0 m2 |
| Grundstücksfläche | 650 m2 |
| Zimmer | 4 |
| Schlafzimmer | 3 |
| Badezimmer | 1 |
| Anzahl Garage/Stellplatz | 0 |
Kosten
| Kaufpreis |
334.280 € |
|---|---|
| Provision | Nein |
Finanzierungsrechner:
Kaufpreis:
600.000 €
Eigenkapital:
600.000 €
Monatliche Rate
0 €
Effektiver Jahreszins
0 %
Sollzinsbindung
10 Jahre
Bausubstanz & Energieausweis
| Baujahr | 2026 |
|---|---|
| Bauphase | Haus in Planung (projektiert) |
| Qualität der Austattung | Gehoben |
| Heizungsart | Wärmepumpe |
Beschreibung des Objekts
Ausstattung
THINK BLACK – All in.
- Schlüsselfertig & sofort bezugsbereit – ohne zusätzlichen Aufwand
- Kompletter Innenausbau – keine Handwerkersuche, kein Planungsstress
- Durchdachte Raumaufteilung – moderne Wohnkonzepte für jede Lebensphase
- Innovative Haustechnik – zukunftssicheres Wohnen mit höchster Effizienz
- Maximaler Komfort – alles fertig, alles drin
Für alle, die einfach einziehen und losleben wollen!
Lage
Das Grundstück befindet sich in einer ruhigen und dennoch zentral gelegenen Wohngegend in der Ortschaft Wanzleben / Seehausen im Landkreis Börde. Die Umgebung bietet eine ideale Mischung aus ländlicher Ruhe und guter Anbindung an infrastrukturelle Einrichtungen und größere Städte.
Einkaufsmöglichkeiten für den täglichen Bedarf sind in Wanzleben selbst vorhanden. Mehrere Supermärkte, ein Discounter sowie diverse Fachgeschäfte bieten eine breite Auswahl an Produkten und Dienstleistungen. Zusätzlich sind Apotheken, ein Baumarkt und weitere kleinere Einzelhandelsgeschäfte im Ort zu finden, sodass den Bewohnern alles Notwendige für den Alltag zur Verfügung steht.
Die Anbindung an den öffentlichen Personennahverkehr (ÖPNV) ist gut. In Wanzleben selbst befinden sich mehrere Bushaltestellen, die regelmäßige Verbindungen zu umliegenden Orten und Städten gewährleisten. Die nächstgelegene Bahnstation ist ebenfalls gut erreichbar, sodass die Bewohner schnell in die größeren Städte der Region gelangen können. Besonders hervorzuheben ist die Nähe zur Landeshauptstadt Magdeburg, die in nur etwa 20 Minuten mit dem Auto oder dem Zug erreicht werden kann. Dadurch bietet sich eine ideale Kombination aus ländlichem Wohnen und urbaner Erreichbarkeit.
Für die junge Familie ist auch die Nähe zu Schulen ein wichtiger Aspekt. In Wanzleben gibt es eine Grundschule und eine weiterführende Schule, sodass der Schulweg für Kinder vor Ort gut organisiert werden kann. Weitere Bildungseinrichtungen sind in den benachbarten Städten ebenfalls schnell zu erreichen.
In Bezug auf Freizeitmöglichkeiten bietet die Umgebung zahlreiche Optionen. Direkt vor Ort gibt es Sporteinrichtungen, die für aktive Freizeitgestaltung genutzt werden können. Ein Sportplatz sowie ein Sportverein ermöglichen sowohl Freizeit- als auch Leistungssport. Für Wander- und Naturfreunde ist die Umgebung von Wanzleben ebenfalls sehr reizvoll, da sich zahlreiche Wald- und Naturgebiete in unmittelbarer Nähe befinden. Der nahe gelegene Elbdeich bietet sich für ausgedehnte Spaziergänge oder Radtouren an.
Die Anbindung an größere Städte wie Magdeburg und Halberstadt eröffnet zahlreiche Möglichkeiten für kulturelle Aktivitäten, Shopping und berufliche Entfaltung. Magdeburg, nur eine kurze Fahrt entfernt, bietet eine Vielzahl an Veranstaltungen, Museen, Theater, Kinos sowie ein breites gastronomisches Angebot. Darüber hinaus sind in der Landeshauptstadt sämtliche Universitäten, Hochschulen und große Unternehmen ansässig, was den Standort auch für Pendler und Berufspendler besonders attraktiv macht.
Insgesamt bietet das Grundstück in Wanzleben eine perfekte Kombination aus ländlichem Wohnen und der Nähe zu urbanen Annehmlichkeiten. Es eignet sich sowohl für Familien als auch für Berufspendler, die das ruhige Leben in einer freundlichen Gemeinde suchen, aber gleichzeitig die Vorteile einer Großstadt in greifbarer Nähe wissen möchten.
Sonstige Angaben
Das Haus ist projektiert inkl. Grundstück. Das Grundstück wird in Kommission angeboten bzw. direkt von Dritten verkauft. Daher kann der genannte Preis aufgrund aktueller Marktsituationen schwanken.
Die Bauabwicklung kann kurzfristig nach Grundstückserwerb begonnen werden. Bilder zeigen möglicherweise Sonderausstattungen, die auf Wunsch gegen Aufspreis zusätzlich angeboten werden können.
Erhalte in deinem persönlichen Beratungsgespräch kostenlos alle wichtigen Informationen zu diesem Projekt, insbesondere: Lage und Bebauungsmöglichkeiten des Baugrundstücks, Baukosten-Kalkulation, Finanzierungs- u. Förderungsmöglichkeiten sowie detaillierte Architektur- uund Grundrissplanung.
Wir freuen uns darauf, dich beraten zu dürfen!
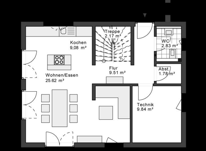
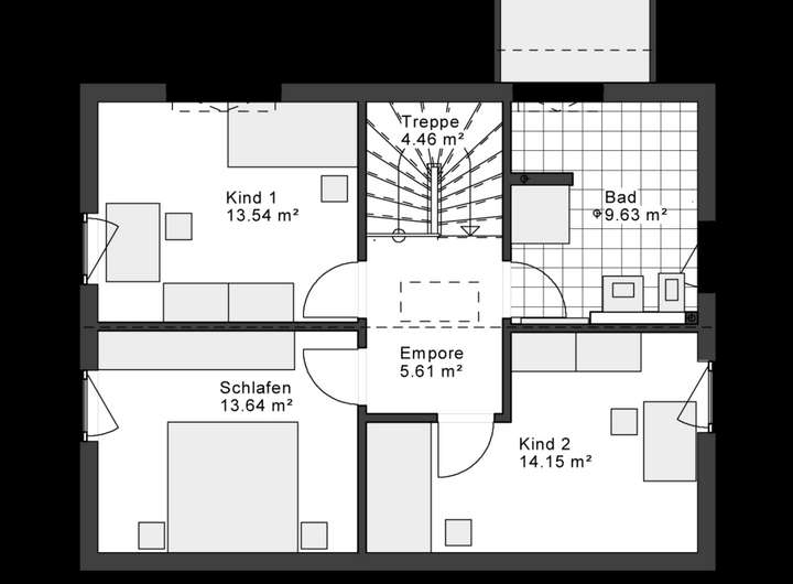
Grundriss
Grundriss EG
>
>
Grundriss OG
>
>
Adresse
39164 Seehausen
Interessante Orte
Preis- und Lageinformationen
Preistrend für Bestandsimmobilien in Seehausen