Dieses moderne und in massiver Bauweise errichtete Einfamilienhaus befindet sich auf einem ca. 904 m² großen Grundstück in einer ruhigen Sackgassenlage in Hohnstorf und überzeugt durch die großzügige Raumaufteilung, eine moderne Gestaltung sowie einen gepflegten Garten mit beheizbarem Pool. Die Immobilie bietet ideale Voraussetzungen für Familien oder Paare, die komfortables Wohnen in einer ruhigen, naturnahen Umgebung in der Nähe von Lüneburg suchen.
Gern lassen wir Ihnen das vollständige Exposé inkl. weiterer Bilder auf Anfrage zukommen.
Modernes Einfamilienhaus mit Außenpool, Kamin u.v.m. in Hohnstorf
21522 Hohnstorf (Elbe)
Die vollständige Adresse der Immobilie erhalten Sie vom Anbieter.
Auf Karte anzeigen
Die vollständige Adresse der Immobilie erhalten Sie vom Anbieter.
Finanzierungszertifikat
In nur zwei Minuten zu Ihrem persönlichen Finanzierungszertifkat.
Infos
| Haustyp | Einfamilienhaus |
|---|---|
| Wohnfläche ca. | 153 m2 |
| Grundstücksfläche | 904 m2 |
| Bezugsfrei ab | Anfang 2026 |
| Zimmer | 5 |
| Schlafzimmer | 4 |
| Badezimmer | 2 |
| Garage/Stellplatz | Carport |
| Anzahl Garage/Stellplatz | 2 |
Kosten
| Kaufpreis |
550.000 € |
|---|---|
| Provision |
3,57 % inkl. der ges. MwSt. |
Finanzierungsrechner:
Kaufpreis:
600.000 €
Eigenkapital:
600.000 €
Monatliche Rate
0 €
Effektiver Jahreszins
0 %
Sollzinsbindung
10 Jahre
Bausubstanz & Energieausweis
| Baujahr | 2015 |
|---|---|
| Objektzustand | Neuwertig |
| Heizungsart | Fußbodenheizung |
| Wesentliche Energieträger | Gas |
| Energieausweis | liegt zur Besichtigung vor |
Beschreibung des Objekts
Ausstattung
- Be- und Entlüftungsanlage
- Fußbodenheizung
- Gasbrennwertheizung
- Duschbad im Erdgeschoss
- Großes Vollbad im Dachgeschoss
- Elektrisch bedienbare Rollläden
- Einbauküche
- Kaminofen aus 2017
- Hauswirtschaftsraum
- Außenpool mit Wärmepumpe und Solar
- Glasfaser
- Beregnungsanlage
- Doppelcarport mit Geräteraum
Lage
Das charmante Einfamilienhaus liegt im beschaulichen Ort Hohnstorf (Elbe), in einer ruhigen Wohnstraße mit familiärem Charakter. Die Gemeinde gehört zur Samtgemeinde Scharnebeck im Landkreis Lüneburg und befindet sich in landschaftlich reizvoller Lage am westlichen Ufer der Elbe, gegenüber der historischen Altstadt von Lauenburg (Schleswig-Holstein).
Die Nähe zur Elbe, zur Natur und zur guten Infrastruktur machen Hohnstorf zu einem besonders lebenswerten Ort für Familien, Berufspendler und Ruhesuchende gleichermaßen.
Die vollständige Lagebeschreibung lassen wir Ihnen gern auf Anfrage zukommen.
Sonstige Angaben
Bitte haben Sie Verständnis dafür, dass wir unseren Auftraggebern Diskretion zugesagt haben und Ihrer Anfrage nach einem ausführlichen Exposé nur nachkommen können, wenn Sie uns Ihren Namen und Ihre postalische Anschrift mitteilen.
Es wird darauf hingewiesen, dass die von uns weitergegebenen Objektinformationen, Unterlagen, Pläne, etc. vom Eigentümer stammen.
Eine Haftung für die Richtigkeit oder Vollständigkeit wird daher nicht übernommen.
Wenn Sie Interesse an diesem Objekt haben, melden Sie sich gern und wir helfen Ihnen bei Ihren Fragen und Anliegen!
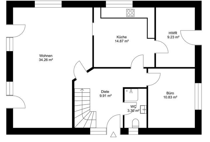
Grundriss
Erdgeschoss
>
>
Dachgeschoss
>
>
Adresse
21522 Hohnstorf (Elbe)
Interessante Orte
Preis- und Lageinformationen
Preistrend für Bestandsimmobilien in Hohnstorf (Elbe)