Das EVOLUTION 148 von Bien-Zenker ist viel mehr als nur ein Haus; es ist ein Raum für Ihre Träume und Ihre Zukunft. Mit einer großzügigen Wohnfläche von 157 m² und einer durchdachten Raumaufteilung bietet dieses Fertighaus Ihnen und Ihrer Familie ein behagliches Zuhause. Im offenen Erdgeschoss verschmelzen Wohnen, Essen, Kochen und Arbeiten zu einem harmonischen Lebensraum, in dem Sie ungestört Zeit miteinander verbringen können. Die großen Fenster sorgen für lichtdurchflutete Räume, die den Innenraum mit natürlichem Licht erfüllen und eine freundliche Atmosphäre schaffen. Im Obergeschoss erwarten Sie zwei großzügige Kinderzimmer sowie ein luxuriöses Elternschlafzimmer, die Ihnen Raum für Entspannung und Rückzug bieten. Hier können Sie ungestört die schönen Momente des Lebens genießen und von einer Wohlfühloase träumen.
Grundrisse und Abbildungen können Extras zeigen. Flächenangaben nach DIN 277.
Bien-Zenker: Ihr individuelles Zuhause in Weismain - das EVOLUTION 148
96260 Weismain
Die vollständige Adresse der Immobilie erhalten Sie vom Anbieter.
Auf Karte anzeigen
Die vollständige Adresse der Immobilie erhalten Sie vom Anbieter.
Finanzierungszertifikat
In nur zwei Minuten zu Ihrem persönlichen Finanzierungszertifkat.
Infos
| Haustyp | Einfamilienhaus |
|---|---|
| Wohnfläche ca. | 157 m2 |
| Grundstücksfläche | 845 m2 |
| Zimmer | 5 |
Kosten
| Kaufpreis |
433.760 € |
|---|
Finanzierungsrechner:
Kaufpreis:
600.000 €
Eigenkapital:
600.000 €
Monatliche Rate
0 €
Effektiver Jahreszins
0 %
Sollzinsbindung
10 Jahre
Bausubstanz & Energieausweis
| Baujahr | unbekannt |
|---|
Beschreibung des Objekts
Ausstattung
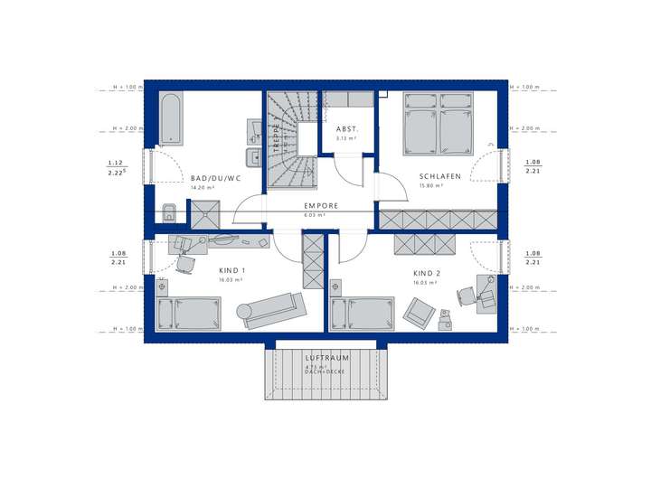
Der Grundriss des EVOLUTION 148 ist optimal auf die Bedürfnisse von Familien abgestimmt. Mit insgesamt fünf Zimmern haben Sie ausreichend Platz für Ihre individuellen Wohnideen. Jedes Zimmer ist strategisch miteinander verbunden, was nicht nur die Privatsphäre der Bewohner wahrt, sondern auch eine wunderbare Raumwirkung erzeugt, die das Gesamtkonzept abrundet. Die offene Gestaltung fördert eine angenehme Kommunikation innerhalb der Familie und lässt ausreichend Platz für kreative Einrichtungsideen.
Besonders hervorzuheben sind die Lichtverhältnisse im gesamten Haus. Die großen Fensterfronten im Erdgeschoss öffnen den Raum zur Natur und schaffen eine freundliche, einladende Atmosphäre. Auf der Terrasse können Sie die warmen Sommerabende genießen und den Blick auf Ihren großzügigen Garten werfen. Zudem ist das Haus so konzipiert, dass Sie auch im Alltag von praktischen Details wie Abstellräumen profitieren - diese bieten Ihnen viel Stauraum und einen aufgeräumten Wohnbereich.
Mit der Ausbaustufe "Schlüsselfertig" entscheiden Sie sich für einen stressfreien Bauprozess. Bien-Zenker übernimmt für Sie den kompletten Hausbau, einschließlich des Innenausbaus, vom Fundament bis zur letzten Schraube. Dies bedeutet für Sie: keinen Stress mit Handwerkern und keine unvorhergesehenen Planungsänderungen. Sie ziehen einfach ein, wenn alles fertig ist, und genießen die Vorfreude auf Ihr neues Zuhause ohne die typischen Bauhürden. Das gibt Ihnen Sicherheit und Ruhe in einem oft hektischen Bauprozess.
Lage
Weismain bietet Ihnen eine perfekte Kombination aus ländlicher Idylle und urbanen Annehmlichkeiten. In der Umgebung finden sich zahlreiche Bildungseinrichtungen, darunter Schulen und Kitas, die den Bedürfnissen Ihrer Familie gerecht werden. Auch für die Gesundheit ist bestens gesorgt, mit verschiedenen Arztpraxen und einem Krankenhaus in der Nähe. Einkaufsmöglichkeiten sind ebenfalls reichlich vorhanden; vom kleinen Lebensmittelgeschäft bis hin zu größeren Supermärkten ist alles gut erreichbar.
Für Ihre Freizeitgestaltung hält Weismain eine Vielzahl von Aktivitäten bereit. Ob Wandern, Radfahren oder einfach nur die Natur genießen - die herrliche Umgebung lädt dazu ein. Auch der öffentliche Nahverkehr ist gut ausgebaut, sodass Sie bequem in die umliegenden Städte gelangen. Die Autobahn ist schnell zu erreichen, was Ihnen eine hervorragende Anbindung an die Region und darüber hinaus bietet. Diese Lage vereint die Vorzüge des ruhigen Lebens in der Natur mit der Nähe zu urbanen Einrichtungen und macht Ihr zukünftiges Zuhause zu einem idealen Rückzugsort.
Adresse
96260 Weismain
Interessante Orte
Preis- und Lageinformationen
Preistrend für Bestandsimmobilien in Weismain