Zum Verkauf steht ein freistehendes Dreifamilienhaus auf einem großzügigen Grundstück. Die Immobilie ist vollständig unterkellert und bietet vielseitige Nutzungsmöglichkeiten sowohl für Eigennutzer als auch für Kapitalanleger. Das Haus steht leer und kann sofort übernommen werden.
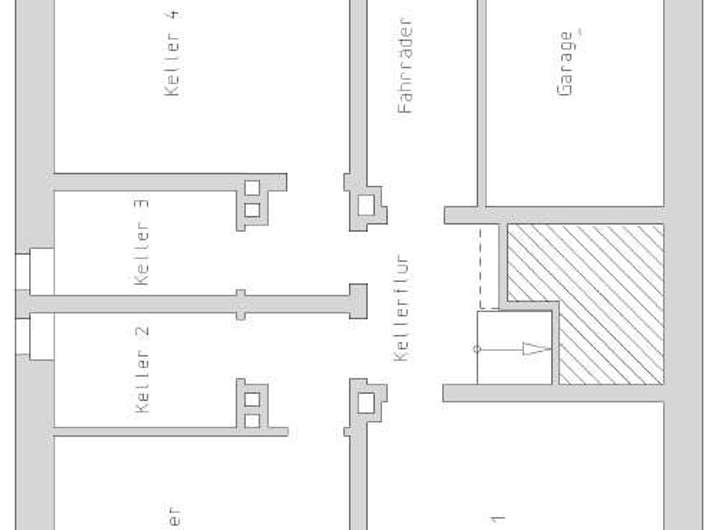
Das Kellergeschoss verfügt über eine integrierte Garage. Darüber hinaus wurden auf dem Grundstück zusätzliche Stellplätze geschaffen. Über eine neu hergestellte Zufahrt ist auch der rückwärtige Grundstücksbereich bequem erreichbar, was zusätzliche Gestaltungsmöglichkeiten eröffnet.
Die Immobilie ist in drei separate Wohnungen aufgeteilt, jeweils eine Einheit pro Etage. Im Dachgeschoss sowie im Spitzboden besteht weiteres Ausbaupotenzial, wodurch zusätzlicher Wohnraum geschaffen werden kann.
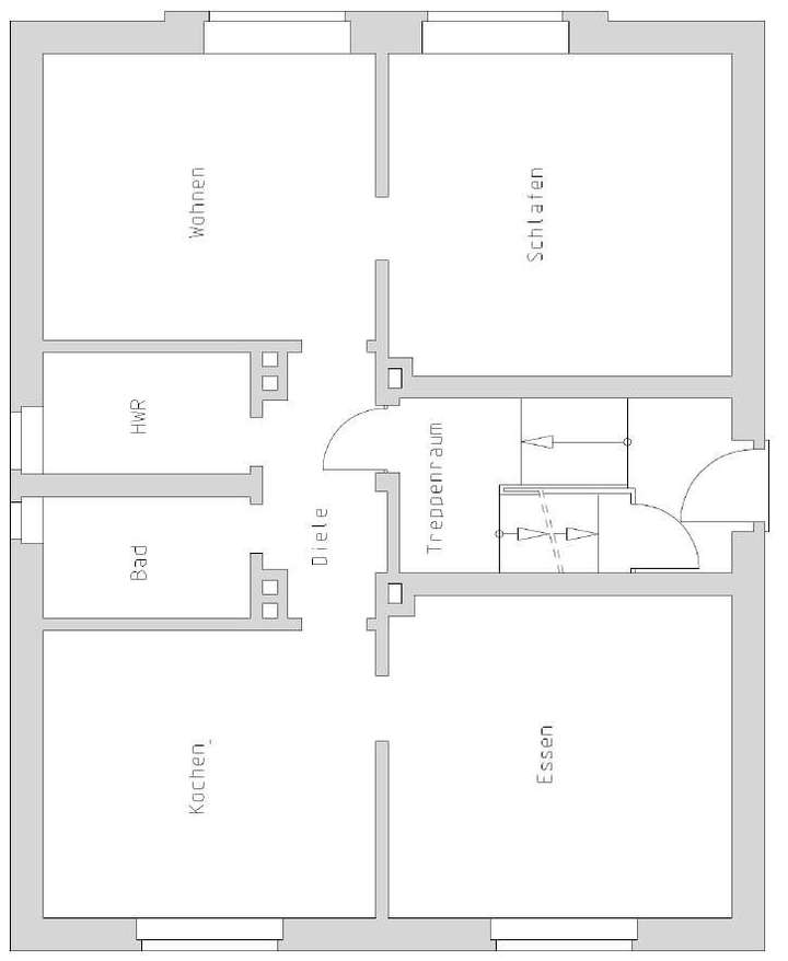
Erdgeschoss – Wohnung 1:
1. Diele
2. Kochen
3. Wohnen
4. Essen
5. Schlafen
6. Bad
7. Hauswirtschaftsraum
Gesamt 80,91 m²
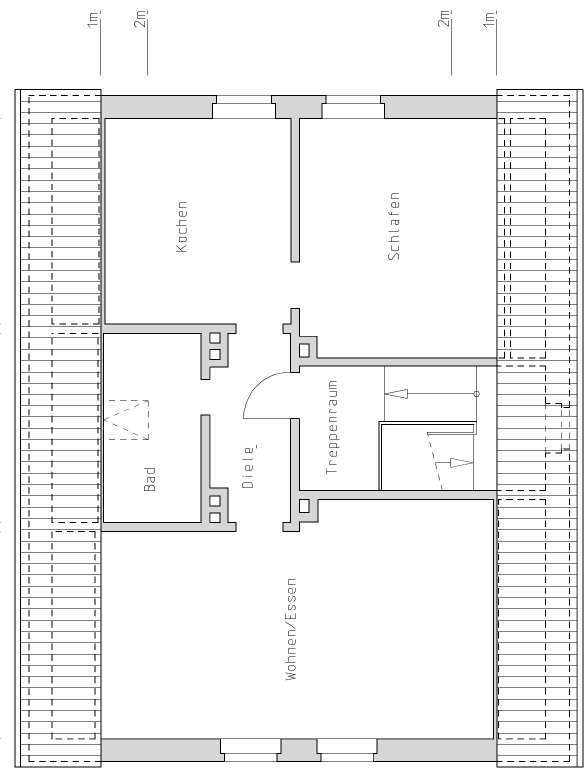
Obergeschoss – Wohnung 2:
1. Diele
2. Kochen
3. Wohnen
4. Essen
5. Schlafen
6. Bad
7. Arbeitszimmer
Gesamt 80,91 m²
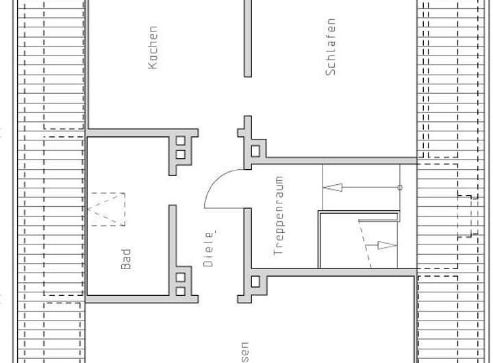
Dachgeschoss – Wohnung 3:
1. Diele
2. Kochen
3. Wohnen/Essen
4. Schlafen
5. Bad
Gesamt 57,93 m²
Spitzbodengeschoss - Nutzfläche:
12,43 m²
Kellergeschoss - Nutzfläche:
79,96 m²
Flächenzusammenstellung:
Wohnfläche: 219,75 m2
Nutzfläche: 104,98 m2
Die Fassade des Hauses ist gedämmt. Ausgestattet ist die Immobilie mit zweifach verglasten Kunststofffenstern. Die Beheizung erfolgt über drei separate Gasetagenheizungen, sodass jede Wohneinheit unabhängig versorgt wird.
Dank des Leerstands eignet sich das Objekt ideal für eine sofortige Nutzung, Umgestaltung oder Neuvermietung nach individuellen Vorstellungen.
Sofort verfügbar! Freies 3-Familienhaus mit großem Grundstück in Bochum-Höntrop
44869 Bochum
Die vollständige Adresse der Immobilie erhalten Sie vom Anbieter.
Auf Karte anzeigen
Die vollständige Adresse der Immobilie erhalten Sie vom Anbieter.
Finanzierungszertifikat
In nur zwei Minuten zu Ihrem persönlichen Finanzierungszertifkat.
Infos
| Haustyp | Sonstige |
|---|---|
| Wohnfläche ca. | 220 m2 |
| Nutzfläche | 324 m2 |
| Grundstücksfläche | 702 m2 |
| Bezugsfrei ab | sofort |
| Zimmer | 11 |
| Garage/Stellplatz | Garage |
| Anzahl Garage/Stellplatz | 4 |
Kosten
| Kaufpreis |
540.000 € |
|---|---|
| Provision | Nein |
Finanzierungsrechner:
Kaufpreis:
600.000 €
Eigenkapital:
600.000 €
Monatliche Rate
0 €
Effektiver Jahreszins
0 %
Sollzinsbindung
10 Jahre
Bausubstanz & Energieausweis
| Baujahr | 1940 |
|---|---|
| Bauphase | Haus fertig gestellt |
| Objektzustand | Renovierungsbedürftig |
| Qualität der Austattung | Normal |
| Heizungsart | Etagenheizung |
| Wesentliche Energieträger | Gas |
| Energieausweis | liegt zur Besichtigung vor |
Beschreibung des Objekts
Lage
Die Immobilie befindet sich in Bochum-Höntrop, in einer gewachsenen und überwiegend wohnwirtschaftlich geprägten Umgebung. Die Lage zeichnet sich durch eine gute Anbindung an den öffentlichen Nahverkehr sowie an das überregionale Straßennetz aus. Einkaufsmöglichkeiten für den täglichen Bedarf, Schulen, Kindergärten, Ärzte und weitere Einrichtungen des täglichen Lebens sind in der näheren Umgebung vorhanden und gut erreichbar.
Die Bochumer Innenstadt sowie weitere Stadtteile sind sowohl mit dem Auto als auch mit öffentlichen Verkehrsmitteln in kurzer Zeit erreichbar. Zudem bietet die Lage eine gute Anbindung an die umliegenden Städte des Ruhrgebiets, was den Standort sowohl für Eigennutzer als auch für Mieter attraktiv macht.
Erholungs- und Freizeitmöglichkeiten befinden sich ebenfalls in der Umgebung und runden die Wohnlage ab.
Sonstige Angaben
Ein ausführliches Exposé erhalten Sie auf Anfrage über das Kontaktformular.
Die hier veröffentlichten Fotos stellen den IST-Zustand dar.
Wir freuen uns auf Ihre Anfrage und stehen Ihnen für Fragen gerne zur Verfügung.
!!! WICHTIG !!! ALLGEMEIN !!!
Um alle Anfragen schnell und vollständig bearbeiten zu können, bitten wir darum, Ihr Interesse über das hier verfügbare Kontaktformular zu bekunden.
---------------------------------------
Veröffentlichte Grundrisse dienen zur Veranschaulichung und sind nicht immer maßstabsgetreu.
--------------------------------------
Alle hier veröffentlichten Angaben sind ohne Gewähr und basieren ausschließlich auf den Informationen, die wir von unserem Auftraggeber übermittelt bekommen haben.
--------------------------------------
Grundriss
Erdgeschoss
>
>
Dachgeschoss
>
>
Kellergeschoss
>
>
Obergeschoss
>
>
Adresse
44869 Bochum
Interessante Orte
Preis- und Lageinformationen
Preistrend für Bestandsimmobilien in Höntrop