Objektnr: 1062600
In einer ruhigen Sackgasse von Weinsberg, direkt am Feldrand, präsentiert sich diese außergewöhnliche Einfamilienvilla als wahres Zuhause für Familien mit Anspruch. Die Lage überzeugt durch absolute Ruhe, viel Privatsphäre und ein grünes Umfeld – ideal für Naturliebhaber, die dennoch die Nähe zur Stadt schätzen. Das im Jahr 2001 erbaute Haus befindet sich in einem sehr gepflegten Zustand und wurde über die Jahre technisch und optisch modernisiert, sodass es heute höchsten Wohnkomfort bietet.
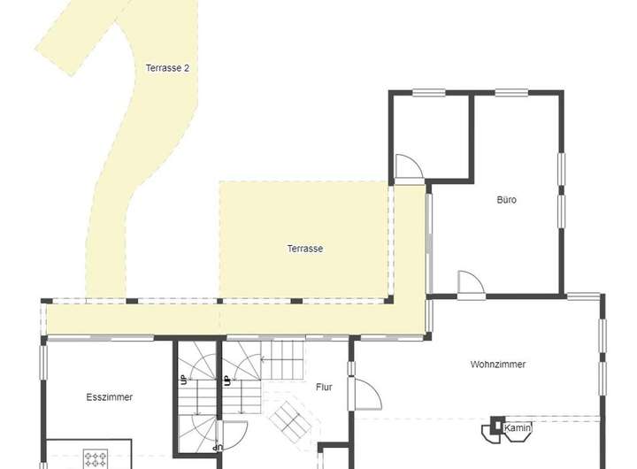
Auf einer großzügigen Wohnfläche von rund 274 m² und zwei Etagen erwartet Sie ein durchdachtes Raumkonzept mit 7 Zimmern, darunter 4 Schlafzimmer, 3 moderne Badezimmer sowie ein separates Gäste-WC. Die Räume sind hell, offen und bieten viele Gestaltungsmöglichkeiten – ob gemütliches Familienwohnzimmer mit Kamin, großzügiges Homeoffice oder separater Bereich für Gäste. Die ca. 35 m² große Einliegerwohnung erweitert die Nutzungsmöglichkeiten und bietet Platz für Familie, Au-pair, Büro oder Vermietung.
Ein besonderes Highlight ist das ca. 995 m² große Grundstück, bestehend aus 650 m² Baugrundstück und 345 m² Landwirtschaftsfläche. Der liebevoll angelegte Garten mit zwei Terrassen, Gartenhaus und dem Naturpool, der 2018 komplett erneuert wurde, schafft ein unvergleichliches Wohlfühlambiente. Der Naturpool ist technisch auf dem neuesten Stand und fügt sich harmonisch in die natürliche Gartenlandschaft ein – ein Ort zum Entspannen und Genießen.
Auch technisch überzeugt das Haus auf ganzer Linie: Die Gebrauchswasseranlage erhielt 2018 eine neue Hochleistungspumpe, über die WC-Spülung, Waschmaschinenanschluss, Gartenanschlüsse sowie ein Waschbecken in der Garage versorgt werden. Ein modernes Smart-Home-BUS-System steuert Licht, Heizung und Sicherheit komfortabel und effizient. Die Photovoltaikanlage aus dem Jahr 2011 sorgt nicht nur für Nachhaltigkeit, sondern auch für eine monatliche Einspeisevergütung von rund 180 €. Ergänzt wird das Ganze durch ein Zentralstaubsaugersystem, das für zusätzlichen Komfort sorgt, sowie einen Kaminofen, der weiterhin betrieben werden darf und an kalten Tagen eine gemütliche Atmosphäre schafft.
Im Untergeschoss stehen Ihnen drei Kellerräume mit reichlich Stauraum zur Verfügung. Für Fahrzeuge bieten zwei Garageneinfahrten und drei Stellplätze in der Garage komfortable Parkmöglichkeiten.
Diese Villa vereint moderne Technik, naturnahe Lage und hochwertige Ausstattung zu einem stimmigen Gesamtbild. Ein Haus, das Raum, Ruhe und Lebensqualität bietet – und damit in Weinsberg zu den seltenen Gelegenheiten zählt, die man nur ungern verpasst.
Exklusive Familienvilla in Weinsberg – mit Naturpool, PV-Anlage, und traumhafter Feldrandlage!
74189 Weinsberg
Die vollständige Adresse der Immobilie erhalten Sie vom Anbieter.
Auf Karte anzeigen
Die vollständige Adresse der Immobilie erhalten Sie vom Anbieter.
Finanzierungszertifikat
In nur zwei Minuten zu Ihrem persönlichen Finanzierungszertifkat.
Infos
| Haustyp | Einfamilienhaus |
|---|---|
| Etagenzahl | 2 |
| Wohnfläche ca. | 270 m2 |
| Nutzfläche | 58 m2 |
| Grundstücksfläche | 995,03 m2 |
| Bezugsfrei ab | ab sofort |
| Zimmer | 7 |
| Schlafzimmer | 4 |
| Badezimmer | 3 |
| Garage/Stellplatz | Garage |
| Anzahl Garage/Stellplatz | 3 |
Kosten
| Kaufpreis |
1.380.000 € |
|---|---|
| Provision |
3,57 % Die Provision i.H.v. 3,57 % inkl. MwSt. ist mit Kaufvertragsbeurkundung fällig, sofern der Verkaufspreis über 83.000,00 € liegt. Liegt der Verkaufspreis dagegen bei/unter 83.000,00 €, ist die fest vereinbarte Mindestprovision i.H.v. mind. 5.950,00 € inkl. MwSt. mit Kaufvertragsbeurkundung fällig. Die Mindestprovision fällt insg. nur einmal an, wodurch Verkäufer und Käufer die Mindestprovision dann jeweils mit 2.975,00 € inkl. MwSt. tragen. |
Finanzierungsrechner:
Kaufpreis:
600.000 €
Eigenkapital:
600.000 €
Monatliche Rate
0 €
Effektiver Jahreszins
0 %
Sollzinsbindung
10 Jahre
Bausubstanz & Energieausweis
| Baujahr | 2001 |
|---|---|
| Bauphase | Haus fertig gestellt |
| Objektzustand | Gepflegt |
| Qualität der Austattung | Gehoben |
| Wesentliche Energieträger | Gas |
| Energieausweis | liegt vor |
| Energieausweistyp | Verbrauchsausweis |
| Energieverbrauchskennwert | 103,0 kWh/(m²*a) |
| Energieeffizienzklasse | D |
103,0
kWh/(m²*a)
Energieeffizienzklasse D
- A+
- A
- B
- C
- D
- E
- F
- G
- H
- 0
- 25
- 50
- 75
- 100
- 125
- 150
- 175
- 200
- 225
- >250
Beschreibung des Objekts
Ausstattung
+ In ruhiger Umgebung in Feldrandlage von Weinsberg, sicher und beschaulich in einer Sackgasse, hervorragend als Ihr neues Eigenheim
+ Erholung pur: Der uneinsehbare Garten auf ca. 995 m² großzügigem Grund lädt zum Verweilen ein - 2 Terrassen bereichern das Erlebnis
+ Das Objekt präsentiert sich in einem gepflegten Zustand
+ Hochwertige Ausstattung inkl. einer Einbauküche sowie Fliesenböden
+ Objekt bietet Staufläche im Keller sowie Platz für Pkws dank 2 Garagen
Lage
Lage: Erhöhte Privatsphäre dank Feldrandlage - ideal für Ruhesuchende
Bildung und Betreuung: Familien profitieren von Kindergarten und Schule in max. 800 m Entfernung
Nahversorgung: Nur rund 3 km zu wichtigen Anlaufstellen wie Supermärkten, Apotheken, Bankfilialen und Postfilialen
Anbindung: Bushaltestelle, Bahnhof und Autobahn komfortabel erreichbar
Sonstige Angaben
Vereinbaren Sie noch heute einen Besichtigungstermin!
_____________________________________________________
Alle Angaben sind ohne Gewähr und basieren ausschließlich auf Informationen, die uns von unserem Auftraggeber zur Verfügung gestellt wurden. Wir übernehmen keine Gewähr für die Vollständigkeit, Richtigkeit und Aktualität der Angaben.
Grundriss
Grundriss Skizze EG
>
>
Grundriss Skizze OG
>
>
Grundriss Skizze DG
>
>
Grundriss Skizze UG
>
>
Adresse
74189 Weinsberg
Interessante Orte
Preis- und Lageinformationen
Preistrend für Bestandsimmobilien in Weinsberg