Dieses charmante Dreifamilienhaus verbindet solide Substanz mit einem angenehmen Wohngefühl – und bietet genau das Potenzial, das viele Kapitalanleger heute suchen. Die wichtigsten und kostenintensiven Sanierungen wurden bereits erledigt: Heizung, Bäder, Küchen, Elektrik, Wasserleitungen, Wände und Böden wurden 2015/2016 erneuert. Das Dach und die Fassade wurden 2022 modernisiert und sorgen für einen energetisch zeitgemäßen Stand. Ebenso erfolgte der Ausbau des Dachgeschosses als dritte Wohneinheit im Jahr 2022.
Im Inneren wartet das Haus darauf, mit überschaubaren Schönheitsreparaturen wieder in frischem Glanz zu erstrahlen.
Die drei gut geschnittenen Wohneinheiten sind vollständig vermietet und ermöglichen sofortige Einnahmen. Dank der Lage im Herzen Cleebronns, unweit von Freizeitpark Tripsdrill und in idealer Distanz zu Heilbronn und Ludwigsburg, sind die Wohnungen sowohl für Pendler als auch für Feriengäste begehrt.
Ein gepflegter Hof mit Stellplätzen, ein gemeinschaftlich nutzbarer Garten sowie ein wunderschöner alter Gewölbekeller runden das Angebot ab und verleihen dem Haus seinen unverwechselbaren Charakter. Kurz gesagt: ein Objekt mit Charme, Perspektive und langfristigem Mehrwert.
Charmantes Mehrfamilienhaus: Leben & Freuen in Blau.
74389 Cleebronn
Die vollständige Adresse der Immobilie erhalten Sie vom Anbieter.
Auf Karte anzeigen
Die vollständige Adresse der Immobilie erhalten Sie vom Anbieter.
Finanzierungszertifikat
In nur zwei Minuten zu Ihrem persönlichen Finanzierungszertifkat.
Infos
| Haustyp | Mehrfamilienhaus |
|---|---|
| Etagenzahl | 3 |
| Wohnfläche ca. | 181 m2 |
| Nutzfläche | 7,02 m2 |
| Grundstücksfläche | 267 m2 |
| Bezugsfrei ab | Sofort |
| Zimmer | 9 |
| Schlafzimmer | 3 |
| Badezimmer | 3 |
| Garage/Stellplatz | Außenstellplatz |
| Anzahl Garage/Stellplatz | 2 |
Kosten
| Kaufpreis |
630.000 € |
|---|---|
| Provision |
jeweils 3,57 % inkl. MwSt. vom Käufer und Verkäufer auf den beurkundeten Kaufpreis zu zahlen |
Finanzierungsrechner:
Kaufpreis:
600.000 €
Eigenkapital:
600.000 €
Monatliche Rate
0 €
Effektiver Jahreszins
0 %
Sollzinsbindung
10 Jahre
Bausubstanz & Energieausweis
| Baujahr | 1936 |
|---|---|
| Objektzustand | Modernisiert |
| Heizungsart | Holz-Pelletheizung |
| Wesentliche Energieträger | expose.parameter.energySourcesEnev2014.WOOD_CHIPS |
| Energieausweis | liegt vor |
| Energieausweistyp | Bedarfsausweis |
| Energieverbrauchskennwert | 336,8 kWh/(m²*a) |
Beschreibung des Objekts
Ausstattung
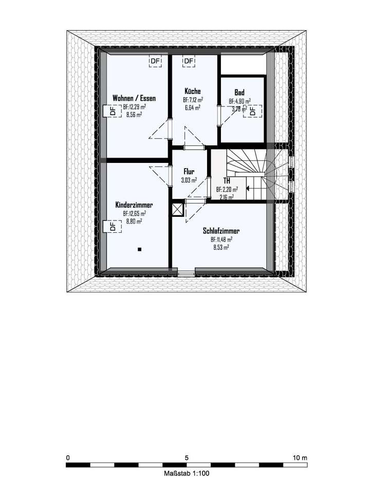
- drei Wohneinheiten (EG, 1. OG, DG) mit gut nutzbaren Grundrissen
- moderne Pelletheizung inklusive frisch befülltem Pellet-Tank
- helle Tageslichtbäder in moderner Ausführung (Walk-in-Dusche, Handtuchheizung, großformatige Fliesen)
- Stellplätze im Hof, Freisitz und gemeinschaftlicher Garten
- Gewölbekeller ideal für Wein- oder Vorratslagerung, zusätzlicher Wasch- und Abstellraum
- ruhige und dennoch zentrale Lage in Cleebronn, gute Anbindung Richtung Heilbronn und Ludwigsburg
- Vollvermietet – stabile Erträge ab dem ersten Tag
Lage
Die Lage des Objekts in Cleebronn bietet eine seltene Kombination aus Ruhe, Natur und hervorragender Anbindung. Der charmante Weinort am Fuße des Michaelsbergs ist bekannt für seine hohe Lebensqualität, die gewachsene Dorfstruktur und die unmittelbare Nähe zu Wäldern, Weinbergen und weitläufigen Spazierwegen.
Gleichzeitig profitieren Bewohner von der Nähe zu den wirtschaftsstarken Zentren Heilbronn und Ludwigsburg. Beide Städte sind schnell erreichbar und machen das Haus besonders attraktiv für Pendler, die eine ruhige Wohnlage schätzen, ohne auf kurze Wege zum Arbeitsplatz verzichten zu müssen. Die Infrastruktur in der Region ist hervorragend ausgebaut – Einkaufsmöglichkeiten, Schulen, medizinische Versorgung und öffentliche Verkehrsanbindungen sind bequem erreichbar.
Ein weiterer Pluspunkt ist das breite Freizeitangebot: Der renommierte Erlebnispark Tripsdrill befindet sich praktisch vor der Haustür und ist ein Magnet für Familien, Besucher und auch potenzielle Feriengäste. Die umliegenden Weinbaugebiete, Badeseen und zahlreichen Wander- und Radwege machen Cleebronn zusätzlich zu einem idealen Ausgangspunkt für Natur- und Freizeiterlebnisse.
Insgesamt verbindet die Lage ländliche Idylle mit einer dynamischen Wirtschaftsregion – ein attraktiver Standort für Mieter, Familien und Kapitalanleger gleichermaßen.
Sonstige Angaben
Da wir uns bei allen Angaben auf die Informationen Dritter stützen müssen, können wir keine Gewähr für deren Richtigkeit und Vollständigkeit übernehmen.
Bitte haben Sie Verständnis dafür, dass wir nur Anfragen mit vollständiger Adressangabe und erreichbarer Handynummer bearbeiten können.
Nachdem Ihre Anfrage per E-Mail bei uns eingegangen ist, werden wir uns mit Ihnen zur Abstimmung eines Besichtigungstermins in Verbindung setzen. Bitte nennen Sie deshalb in Ihrer E-Mail eine Tel.-Nr., unter der wir Sie sicher erreichen können.
Widerrufsbelehrung für Verbraucher:
Sie haben das Recht, binnen vierzehn Tagen ohne Angabe von Gründen diesen Vertrag zu widerrufen. Die Widerrufsfrist beträgt vierzehn Tage ab dem Tag des Vertragsabschlusses.
Um Ihr Widerrufsrecht auszuüben, müssen Sie uns (Königskinder Immobilien GmbH, Königstraße 62, 70173 Stuttgart, Tel: 0711 4005440, Fax: 0711 40054433, info@koenigskinder.de) mittels einer eindeutigen Erklärung (z. B. ein mit der Post versandter Brief, Telefax oder E-Mail) über Ihren Entschluss, diesen Vertrag zu widerrufen, informieren.
Zur Wahrung der Widerrufsfrist reicht es aus, dass Sie die Mitteilung über die Ausübung des Widerrufsrechts vor Ablauf der Widerrufsfrist absenden.
Folgen des Widerrufs:
Wenn Sie diesen Vertrag widerrufen, haben wir Ihnen alle Zahlungen, die wir von Ihnen erhalten haben, unverzüglich und spätestens binnen vierzehn Tagen ab dem Tag zurückzuzahlen, an dem die Mitteilung über Ihren Widerruf dieses Vertrags bei uns eingegangen ist. Für diese Rückzahlung verwenden wir dasselbe Zahlungsmittel, das Sie bei der ursprünglichen Transaktion eingesetzt haben, es sei denn, mit Ihnen wurde ausdrücklich etwas anderes vereinbart; in keinem Fall werden Ihnen wegen dieser Rückzahlung Entgelte berechnet.
Haben Sie verlangt, dass die Dienstleistungen während der Widerrufsfrist beginnen soll, so haben Sie uns einen angemessenen Betrag zu zahlen, der dem Anteil der bis zu dem Zeitpunkt, zu dem Sie uns von der Ausübung des Widerrufsrechts hinsichtlich dieses Vertrags unterrichten, bereits erbrachten Dienstleistungen im Vergleich zum Gesamtumfang der im Vertrag vorgesehenen Dienstleistungen entspricht.
Grundriss
Grundriss EG
>
>
Grundriss OG
>
>
Grundriss DG
>
>
Adresse
74389 Cleebronn
Interessante Orte
Preis- und Lageinformationen
Preistrend für Bestandsimmobilien in Cleebronn