Sie sind schon lange auf der Suche nach einem eigenen Anwesen, bei dem Sie Ihrer Kreativität freien Lauf lassen können, die Kinder und der Hofhund ein ausgelassenes und naturnahes Lebensumfeld genießen und die Tierhaltung direkt nach der Übernahme der Besitzung möglich ist? Wir bieten Ihnen die Möglichkeit, Ihren Lebenstraum zu verwirklichen, und das auf einer sagenhaften Grundstücksfläche, die sofort zur Übernahme durch den neuen Eigentümer bereitsteht, bei einem überschaubaren Einstiegspreis, der diesen lange gehegten Wunsch endlich wahr werden lassen könnte!
Wir garantieren Ihnen: Wenn Sie auf dem ca. 9.079 m² großen Eigentumsgrundstück aus Ihrem Auto steigen, werden Sie sich bereits verliebt haben. Dieses wohl einmalige Angebot wird Sie umgehend in seinen Bann ziehen, denn nicht nur die schiere Größe des Grundstücks und der Weidefläche ist ein Traum, neben dem Stallgebäude, welches sich in einem guten Zustand befindet, steht Ihnen ein Einfamilienhaus mit ca. 121,86 m² Wohnfläche und ein kleines eigenes Waldstück zur Verfügung.
Der wohl größte Vorteil: Im Vergleich zu vielen anderen Resthöfen wurde hier schon eine umfassende Räumung durchgeführt und das Bestandsobjekt in Abstimmung mit der Bauberatung entkernt sowie das Grundstück um alle Bestandteile, die ohne Genehmigung errichtet wurden, bereinigt.
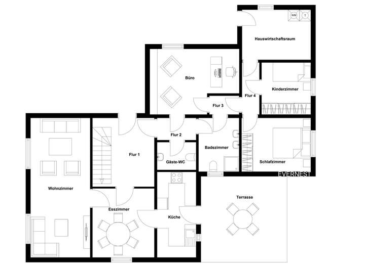
Die aktuell geplante Aufteilung des ca. 1930 errichteten Haupthauses mit einem Teilkeller sieht ca. 5 Zimmer, wovon Sie ca. 3 Zimmer als Schlafzimmer nutzen können, mit einem großen Wohn-/Essbereich mit Kaminanschluss und liebevoll erhaltenen Fachwerkelementen sowie ein Tageslichtbadezimmer und ein Gäste-WC vor (Baugenehmigung aus ca. 2022). Der aktuell vollständig leerstehende Dachboden mit ca. 42,32 m² Grundfläche könnte als weitere wertvolle Ausbaureserve dienen und birgt weitere Möglichkeiten für eine potenzielle Erweiterung der Gesamtfläche. Ganz nach Ihrem Bedarf und Ihren Vorstellungen.
Das Stallgebäude mit Stallgasse bietet aktuell vier Boxen mit direktem eigenem Zugang pro Box vom Hof, eine Werkstatt und einen Abstellraum. Pferde, Kühe, Schweine, Schafe, Ziegen und Co., oder doch das Alpaka – hier ist Platz für alle!
Egal ob Selbstversorger, Familien, Paare mit Platz- und Raumbedarf oder einfach nur Tierliebhaber: Hier sind Ihnen keine Grenzen mehr gesetzt, und Sie haben die Möglichkeit, sich Orte zu erschaffen, die Sie gerne „Zuhause“ nennen, ganz nach Ihren Bedürfnissen und Visionen von Ihrem perfekten Eigenheim. Sie müssen nur die Ärmel hochkrempeln und anfangen!
Gerne stellen wir Ihnen Ihr neues Projekt vor Ort in einem persönlichen Termin vor und können es kaum erwarten, nach dem Umbau mit Ihnen auf der idyllischen Terrasse bei einem Kaltgetränk anzustoßen. Sie trennt nur eine Anfrage von diesem einmaligen Angebot.
Da aktuell keine Heizungsanlage in den Gebäuden vorhanden ist, wird kein Energieausweis benötigt und kann auch nicht erstellt werden.
Mehr Land, mehr Freiheit, mehr Leben – Ihr Hof fürs echte Glück!
32602 Vlotho
Die vollständige Adresse der Immobilie erhalten Sie vom Anbieter.
Auf Karte anzeigen
Die vollständige Adresse der Immobilie erhalten Sie vom Anbieter.
Finanzierungszertifikat
In nur zwei Minuten zu Ihrem persönlichen Finanzierungszertifkat.
Infos
| Haustyp | Einfamilienhaus |
|---|---|
| Etagenzahl | 1 |
| Wohnfläche ca. | 121 m2 |
| Nutzfläche | 68,76 m2 |
| Grundstücksfläche | 9.079 m2 |
| Zimmer | 5 |
| Schlafzimmer | 3 |
| Badezimmer | 1 |
| Garage/Stellplatz | Außenstellplatz |
| Anzahl Garage/Stellplatz | 3 |
Kosten
| Kaufpreis |
159.000 € |
|---|---|
| Provision |
3.57 % inkl. MwSt. Bei Abschluss eines notariellen Kaufvertrages ist eine Käuferprovision vom Käufer in Höhe von 3.57 % inkl. MwSt. aus dem Kaufpreis fällig. |
Finanzierungsrechner:
Kaufpreis:
600.000 €
Eigenkapital:
600.000 €
Monatliche Rate
0 €
Effektiver Jahreszins
0 %
Sollzinsbindung
10 Jahre
Bausubstanz & Energieausweis
| Baujahr | 1930 |
|---|---|
| Objektzustand | Renovierungsbedürftig |
| Qualität der Austattung | Einfach |
| Energieausweis | laut Gesetz nicht erforderlich |
Beschreibung des Objekts
Ausstattung
Die Highlights im Überblick:
- Objekt kann ab sofort übernommen werden
- Nahezu unbegrenzte(s) Potenzial/Möglichkeiten
- Ideal für Tierhaltung, Hofleben oder Projekte
- Umfassende Räumungsarbeiten bereits erfolgt
- Traumhaftes Grundstück mit riesiger Weidefläche
- Scheune/Stall in gutem Zustand
- Tierhaltung umgehend denkbar
- Eigenes Waldstück auf dem Grundstück
- Ideale Verkehrsanbindung
- Freie Gestaltungsfreiheit
- Liebevoll erhaltene Fachwerkelemente
- Dachboden als weiteres Ausbaupotenzial denkbar
- Einladende und sonnige Terrasse
- Diverse Stellplätze auf dem eigenen Hof
- Und vieles mehr...
Lage
Vlotho liegt im Nordosten Nordrhein-Westfalens und gehört zum Kreis Herford. Die Stadt mit rund 19.000 Einwohnern befindet sich in landschaftlich reizvoller Lage zwischen Weserbergland und Wiehengebirge. Durch ihre Nähe zu Bielefeld, Herford und Bad Oeynhausen ist Vlotho ein attraktiver Wohn- und Lebensstandort. Neben einer soliden Infrastruktur überzeugt die Stadt durch ein gutes Bildungs- und Betreuungsangebot, vielfältige Einkaufsmöglichkeiten sowie ein breites Spektrum an Freizeit- und Naherholungsflächen.
Der Ortskern von Vlotho besticht durch historischen Charme mit Fachwerkhäusern, kleinen Geschäften und einer angenehmen Gastronomie. Die fußläufige Erreichbarkeit von Ärzten, Apotheken, Supermärkten und öffentlichen Einrichtungen wie Schulen und Kindergärten macht den Kernbereich besonders lebens- und liebenswert. Der nahegelegene Weseruferbereich, der Kurpark sowie zahlreiche Rad- und Wanderwege tragen zur hohen Aufenthaltsqualität bei. Regelmäßige Veranstaltungen und Märkte fördern das soziale Miteinander und unterstreichen den wohnortnahen Charakter der Stadt.
Der Ortsteil Hellerhagen liegt südwestlich des Stadtzentrums und ist geprägt von einer ruhigen, gewachsenen Wohnstruktur. Die Bebauung besteht überwiegend aus Einfamilienhäusern auf großzügigen Grundstücken. Das gepflegte Umfeld und der hohe Grünanteil schaffen eine angenehme Wohnatmosphäre. Familien, Berufstätige und Ruhesuchende schätzen die gute Balance zwischen Stadtnähe und naturnahem Wohnen.
Die Anbindung Hellerhagens an die Umgebung ist hervorragend. Die Autobahn A2 erreichen Sie in wenigen Minuten, wodurch schnelle Verbindungen nach Hannover, Dortmund oder Bielefeld bestehen. Auch überregionale Ziele sind gut erreichbar. Eine Busverbindung sowie kurze Wege in den Stadtkern von Vlotho gewährleisten zusätzlich eine komfortable Mobilität im Alltag.
Hier eine kleine Übersicht:
Vlotho - 5,2 km
Bad Oeynhausen Kurpark - 3,7 km
Bielefeld Innenstadt - 29,9 km
Minden Innenstadt - 26,4 km
Grundriss
Stallgebäude
>
>
Erdgeschoss
>
>
Dachgeschoss
>
>
Kellergeschoss
>
>
Adresse
32602 Vlotho
Interessante Orte
Preis- und Lageinformationen
Preistrend für Bestandsimmobilien in Vlotho