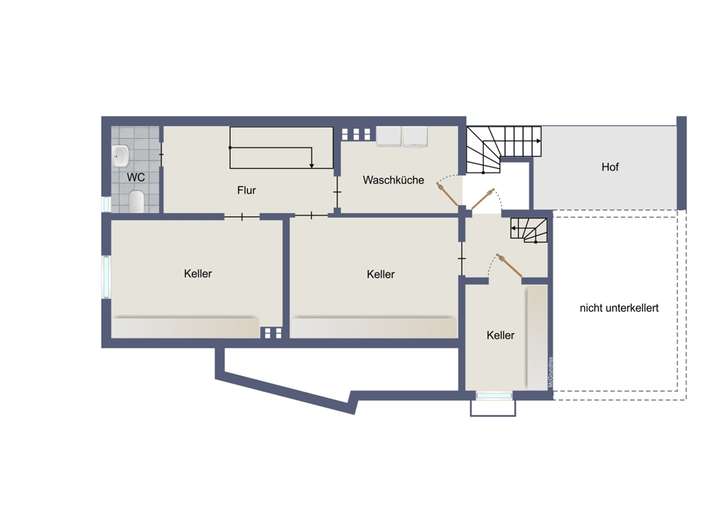
Dieses gepflegte Ein-Zweiparteienhaus bietet eine solide Bausubstanz und vielseitige Nutzungsmöglichkeiten. Das Objekt befindet sich auf einem 184 m² großen Grundstück und beinhaltet eine ca. 155 m² große Wohnfläche. Die Dacheindeckung und Dämmung wurden in den 1980er-Jahren erneuert und befinden sich in einem guten Zustand. Das Gebäude verfügt über einen Vollkeller sowie eine Garage, die zusätzlichen Stauraum und praktische Abstellmöglichkeiten bieten.
Im Haus stehen insgesamt zwei Badezimmer, 4 größere Zimmer, sowie ein Gäste-WC zur Verfügung. Die Elektrik ist 3-adrig und beheizt wird das Haus über eine Gas-Zentralheizung von 2005.
Die beiden Wohneinheiten sind jeweils mit einer Einbauküche ausgestattet. Die Küche im Erdgeschoss wurde 2018 erneuert und präsentiert sich modern und gepflegt, während sich im Obergeschoss die ältere, funktionsfähige Küche befindet. Eine teilweise überdachte Terrasse im Obergeschoss erweitert den Wohnraum und bietet einen angenehmen Außenbereich.
Das Immobilienangebot eignet sich sowohl zur Eigennutzung als auch zur Vermietung und überzeugt durch seine solide Ausstattung, gute Raumaufteilung und attraktive Ausbaupotenziale.
Ein-Zwei Parteienhaus mit Garage, im Lindenhof/Gröpelingen.
28237 Bremen
Die vollständige Adresse der Immobilie erhalten Sie vom Anbieter.
Auf Karte anzeigen
Die vollständige Adresse der Immobilie erhalten Sie vom Anbieter.
Finanzierungszertifikat
In nur zwei Minuten zu Ihrem persönlichen Finanzierungszertifkat.
Infos
| Haustyp | Einfamilienhaus |
|---|---|
| Etagenzahl | 3 |
| Wohnfläche ca. | 155 m2 |
| Nutzfläche | 50 m2 |
| Grundstücksfläche | 184 m2 |
| Bezugsfrei ab | Ab sofort |
| Zimmer | 4 |
| Schlafzimmer | 2 |
| Badezimmer | 2 |
Kosten
| Kaufpreis |
279.000 € |
|---|---|
| Provision |
3,57 % inkl. der gesetzlichen MwSt. vom beurkundeten Kaufpreis |
Finanzierungsrechner:
Kaufpreis:
600.000 €
Eigenkapital:
600.000 €
Monatliche Rate
0 €
Effektiver Jahreszins
0 %
Sollzinsbindung
10 Jahre
Bausubstanz & Energieausweis
| Baujahr | 1949 |
|---|---|
| Objektzustand | Gepflegt |
| Heizungsart | Zentralheizung |
| Wesentliche Energieträger | Gas |
| Energieausweis | liegt vor |
| Energieausweistyp | Bedarfsausweis |
| Energieverbrauchskennwert | 189,7 kWh/(m²*a) |
| Energieeffizienzklasse | F |
189,7
kWh/(m²*a)
Energieeffizienzklasse F
- A+
- A
- B
- C
- D
- E
- F
- G
- H
- 0
- 25
- 50
- 75
- 100
- 125
- 150
- 175
- 200
- 225
- >250
Beschreibung des Objekts
Ausstattung
- Dacheindeckung und Dämmung in den Achtziger Jahren.
- 2 Badezimmer
- Gäste WC
- 3 adrige Elektrik
- Garage
- Vollkeller
- Gas Etagenheizung Bj.2005
- Teilweise überdachte Terrasse im OG
- Doppelverglaste Holzfenster Baujahr. 1974, im DG sind Fenster bereits erneuert worden.
- 2 Einbauküchen (Küche EG Bj. 2018)
- Bodenbeläge , Laminat und Fliesen
- EG neuere Küche
- OG ältere Küche
Lage
Das Haus befindet sich in einer ruhigen und dennoch zentral gelegenen Wohngegend in Bremen. Das Viertel zeichnet sich durch seine familienfreundliche Atmosphäre aus und bietet eine harmonische Mischung aus urbanem Leben und naturnaher Umgebung. Die Nachbarschaft hat eine angenehmen Gemeinschaft, die das Wohnen in dieser Gegend besonders attraktiv macht.
In unmittelbarer Nähe befinden sich zahlreiche Annehmlichkeiten des täglichen Bedarfs, darunter Einkaufsmöglichkeiten, Schulen und Ärzte. Die gute Anbindung an den öffentlichen Nahverkehr ermöglicht es, die Bremer Innenstadt in kurzer Zeit zu erreichen, was sowohl für Berufspendler als auch für Freizeitaktivitäten von Vorteil ist. Zudem bietet die Umgebung zahlreiche Parks und Grünflächen, die zu entspannenden Spaziergängen und Outdoor-Aktivitäten einladen.
Die Lage des Hauses bietet auch eine hervorragende Erreichbarkeit wichtiger Verkehrsknotenpunkte und macht es somit ideal für Menschen, die sowohl die Vorzüge des Stadtlebens genießen als auch die Ruhe eines zurückgezogenen Wohnorts schätzen möchten. Diese attraktive Kombination macht das Haus zu einem idealen Lebensmittelpunkt für Familien und alle, die Bremen von seiner besten Seite erleben möchten.
Adresse
28237 Bremen
Interessante Orte
Preis- und Lageinformationen
Preistrend für Bestandsimmobilien in Lindenhof