Ein außergewöhnliches Anwesen mit beeindruckender Vielseitigkeit und einzigartigem Charme! In zentraler Lage und dennoch mit viel Privatsphäre eröffnet sich hier ein großzügiges Grundstück von 2.953 m², das nahezu unbegrenzte Möglichkeiten bietet. Das gepflegte Zweifamilienhaus vereint Tradition und Moderne und ist sofort bezugsfertig. Ergänzt durch eine großzügige Werkstatt sowie zwei imposante Scheunen, eignet sich das Anwesen sowohl für individuelles Wohnen als auch für gewerbliche oder kreative Nutzung. Die perfekte Kombination aus Raum, Flexibilität und Komfort – ideal für alle, die mehr als nur ein Zuhause suchen.
Das ursprüngliche Bauernhaus aus dem Jahr 1905 wurde 1998 umfassend saniert und in zwei separate Einheiten aufgeteilt, die über ein zentrales Treppenhaus verbunden werden können. Das Erdgeschoss beherbergt aktuell eine großzügige Bürofläche mit separatem Eingang auf 208 m² sowie eine vielseitig nutzbare Werkstattfläche von 135 m². Im Obergeschoss befinden sich weitere Büroräume sowie eine lichtdurchflutete Wohnung mit vier Zimmern, einer modernen Küche und einer 19 m² großen Dachterrasse. Das Grundstück erstreckt sich über 2.953 m² und bietet neben zwei Scheunen – darunter eine beeindruckende, dreistöckige Scheune mit 450 m² Nutzfläche – auch einen idyllisch angelegten Mustergarten mit Koiteich, stilvollen Anpflanzungen und Säulen.
Die Bauweise besticht durch solides Sandstein- und Ziegelmauerwerk, ergänzt durch doppelt verglaste Kunststofffenster aus 2013 und eine moderne Ölzentralheizung von 2012, die von der Austauschpflicht befreit ist. Eine grundlegende Sanierung des Erdgeschosses erfolgte 1998, sodass der weitere Ausbau ganz nach den persönlichen Wünschen erfolgen kann. Die Wohnung im Obergeschoss wurde 2018 renoviert - inklusive neuer Bodenbeläge, einer hochwertigen Badsanierung mit bodentiefer Regendusche und dem Ausbau der Dachterrasse. Die gesamte Elektrik entspricht zeitgemäßen Standards, während die Internetanbindung mit bis zu 1.000 MBit für zeitgemäßen Komfort sorgt.
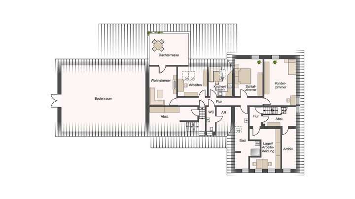
Die Wohnetage im Obergeschoss begeistert mit einer cleveren Raumaufteilung und viel Tageslicht. Das große Wohnzimmer öffnet sich zur großzügigen Dachterrasse, die einen unvergleichlichen Blick ins Grüne bietet. Die moderne Küche lässt sich ideal mit einem Essbereich kombinieren und das sanierte Badezimmer überzeugt mit hochwertigen Armaturen. Zwei schön geschnittene Schlafzimmer runden das tolle Wohnambiente ab. Für zusätzlichen Stauraum sorgen Abstellräume und ein geräumiger Dachboden. Das Erdgeschoss bietet durch seine flexible Bauweise unzählige Nutzungsmöglichkeiten: Ob weiterer Wohnraum, Gewerbe, Atelier oder Praxis – hier kann man die eigene Vision verwirklichen.
Dieses Anwesen ist weit mehr als nur ein Haus – es ist ein Lebensraum mit enormem Potenzial. Ob als Mehrgenerationenwohnsitz, für gewerbliche Zwecke oder zur individuellen Entfaltung – die Kombination aus großzügigem Grundstück, vielseitiger Nutzung und idyllischer Umgebung ist einzigartig. Vereinbaren Sie gerne einen Besichtigungstermin, um sich selbst von diesem außergewöhnlichen Angebot zu überzeugen.
Bauernhaus mit Traumgrundstück! Gepflegtes Gewerbe- und Wohnanwesen mit großen Nebengebäuden
95466 Weidenberg
Die vollständige Adresse der Immobilie erhalten Sie vom Anbieter.
Auf Karte anzeigen
Die vollständige Adresse der Immobilie erhalten Sie vom Anbieter.
Finanzierungszertifikat
In nur zwei Minuten zu Ihrem persönlichen Finanzierungszertifkat.
Infos
| Haustyp | Sonstige |
|---|---|
| Etagenzahl | 2 |
| Wohnfläche ca. | 372 m2 |
| Nutzfläche | 562,49 m2 |
| Grundstücksfläche | 2.953 m2 |
| Bezugsfrei ab | sofort |
| Zimmer | 14 |
| Schlafzimmer | 3 |
| Badezimmer | 1 |
| Garage/Stellplatz | Garage |
| Anzahl Garage/Stellplatz | 10 |
Kosten
| Kaufpreis |
489.000 € |
|---|---|
| Provision |
3,57% (inkl. MwSt) |
Finanzierungsrechner:
Kaufpreis:
600.000 €
Eigenkapital:
600.000 €
Monatliche Rate
0 €
Effektiver Jahreszins
0 %
Sollzinsbindung
10 Jahre
Bausubstanz & Energieausweis
| Baujahr | 1905 |
|---|---|
| Letzte Sanierung | 2022 |
| Bauphase | Haus fertig gestellt |
| Objektzustand | Modernisiert |
| Qualität der Austattung | Normal |
| Heizungsart | Zentralheizung |
| Wesentliche Energieträger | Öl |
| Energieausweis | liegt vor |
| Energieausweistyp | Bedarfsausweis |
| Energieverbrauchskennwert | 194,5 kWh/(m²*a) |
| Energieeffizienzklasse | F |
194,5
kWh/(m²*a)
Energieeffizienzklasse F
- A+
- A
- B
- C
- D
- E
- F
- G
- H
- 0
- 25
- 50
- 75
- 100
- 125
- 150
- 175
- 200
- 225
- >250
Beschreibung des Objekts
Ausstattung
- 562 m² Wohn- und Nutzfläche, flexible Nutzung
- 2.953 m² Grundstück mit vielseitigen Möglichkeiten
- Mustergarten mit Koiteich, Brücken und Säulen
- Solides Sandstein- und Ziegelmauerwerk, gepflegt
- Sofort bezugsfertig, keine akuten Sanierungen nötig
- 19 m² Dachterrasse mit idyllischer Aussicht
- Zahlreiche Scheunen, vielseitig nutzbar
- Große Werkstatt mit 135 m² Nutzfläche
- Doppelt verglaste Kunststofffenster (2013)
- Ölzentralheizung (2012), Brennwerttechnik
- Ruhige Lage, dennoch gute Infrastruktur
- Schnelle Anbindung nach Bayreuth und A9
- Bahn- & Busverbindungen in direkter Nähe
Bisherige Modernisierungen:
1998: Sanierung und Umbau Erdgeschoss
1999 Umbau/ Neugestaltung Aussenanlagen (u.a. Koiteich)
2001: Dachfenster Kunststoff doppelt verglast
2012: Zentralheizung Öl, Brennwerttherme
2013: doppelt verglaste Kunststofffenster
2017: Trapezblechdach Werkstatt
2018: Renovierung OG:
- Bodenbeläge
- Sanierung Badezimmer
- Gaube mit Dachterrasse
2019: Sektionaltore Scheunen und Werkstatt
2020 Renovierung und neue Teeküche EG
2021 Renovierung Aufenthaltsraum/ Flur EG
2022 Erstellung 3 zusätzlicher Stellplätze
Lage
Die Umgebung des Anwesens in Weidenberg zeichnet sich durch eine harmonische Mischung aus ländlicher Idylle und moderner Infrastruktur aus. Die Nachbarschaft ist geprägt von gepflegten Einfamilienhäusern und historischen Gebäuden, die dem Ort seinen unverwechselbaren Charme verleihen. Weitläufige Grünflächen und der nahegelegene Naturpark Fichtelgebirge laden zu Spaziergängen und Outdoor-Aktivitäten ein, während die ruhigen Straßen ein sicheres und familienfreundliches Umfeld bieten.
Weidenberg bietet eine hervorragende Infrastruktur, die keine Wünsche offenlässt. Einkaufsmöglichkeiten für den täglichen Bedarf, wie Supermärkte, Bäckereien und Metzgereien, sind in wenigen Minuten erreichbar. Für die medizinische Versorgung stehen Ärzte und Apotheken zur Verfügung. Familien profitieren von mehreren Kindergärten und einer sanierten Grund- und Mittelschule mit Ganztagsangebot. Kulturelle Highlights wie der historische Obermarkt und der Museumsweg mit verschiedenen Sammlungen und Kunststätten bereichern das Gemeinschaftsleben. Zudem laden lokale Restaurants und Cafés zum Verweilen ein.
Die Verkehrsanbindung ist optimal gestaltet. Der Bahnhof Weidenberg, Endpunkt der Bahnstrecke Bayreuth–Warmensteinach, ermöglicht regelmäßige Verbindungen nach Bayreuth und darüber hinaus. Zudem ist der Ort in das Netz des Verkehrsverbundes Großraum Nürnberg (VGN) integriert, was flexible Mobilität mit öffentlichen Verkehrsmitteln sicherstellt. Für Autofahrer ist die nahegelegene Autobahn A9 schnell erreichbar, wodurch umliegende Städte und Regionen bequem angefahren werden können.
Zusammenfassend bietet der Standort in Weidenberg eine ideale Kombination aus naturnahem Wohnen und städtischer Nähe. Die ausgezeichnete Infrastruktur, die vielfältigen Freizeitmöglichkeiten und die hervorragende Verkehrsanbindung gewährleisten einen hohen Wohnkomfort und eine gesteigerte Lebensqualität. Hier finden Sie den perfekten Ort, um sich niederzulassen und das Leben in vollen Zügen zu genießen.
Sonstige Angaben
Der Käufer zahlt im Erfolgsfall an die Firma Dressel Immobilien GmbH eine Käufer- Maklerprovision in Höhe von 3,57% inkl. 19% MwSt. Die Provision errechnet sich aus dem beurkundeten Kaufpreis.
Dieses Exposé ist eine Vorabinformation, als Rechtsgrundlage gilt allein der notariell abgeschlossene Kaufvertrag.
Wir weisen auf unsere allgemeinen Geschäftsbedingungen hin.
Angaben des Eigentümers, der Eigentümerin / Auftraggebers, Auftraggeberin:
Alle Angaben beruhen auf uns vorliegenden Informationen des Auftraggebers nach bestem Wissen und Gewissen und sind freibleibend und unverbindlich.
Grundriss
Grundriss Erdgeschoss
>
>
Grundriss Obergeschoss
>
>
Adresse
95466 Weidenberg
Interessante Orte
Preis- und Lageinformationen
Preistrend für Bestandsimmobilien in Weidenberg