Dieses gepflegte Zweifamilienhaus aus dem Baujahr 1962 bietet auf insgesamt ca. 235 m² Wohnfläche viel Raum für Familien, Mehrgenerationenwohnen oder Wohnen und Vermieten unter einem Dach. Die ruhige Lage, der große Garten sowie die Nähe zum See machen die Immobilie zu einem besonderen Angebot.
Erdgeschosswohnung:
Die Wohnung im Erdgeschoss überzeugt durch einen großzügigen Grundriss und hochwertige Raumaufteilung:
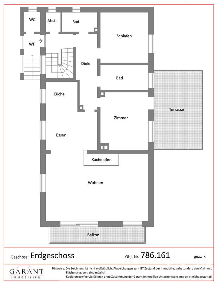
* offene Küche mit direktem Übergang in das Esszimmer
* Angrenzendes Wohnzimmer mit Kachelofen und Zugang zum Balkon
* weiß Tageslichtbäder und ein Gäste-WC
* Zwei Schlafzimmer
* Flur sowie Abstellkammer
Obergeschosswohnung:
* Die zweite Wohneinheit bietet ebenfalls eine sehr angenehme Wohnatmosphäre:
* Schlafzimmer, Kinderzimmer und Büro
* Tageslichtbad
* Separate Küche mit praktischer Durchreiche ins Esszimmer
* Esszimmer mit Übergang in das geräumige Wohnzimmer und Zugang zum Balkon
Dachgeschoss:
Das teilweise ausgebaute Dachgeschoss bietet zusätzliches Entwicklungspotenzial:
* Große Loggia mit Schiebeelement
* Diele, ein großes Zimmer sowie ein weiteres Zimmer im Ausbauzustand
* WC und Duschbad vorbereitet für den Selbstausbau
Außenbereich & Nebenräume:
* Großzügiger, unverbaubarer Garten mit Pavillon
* Nebengebäude mit Anschluss für eine Gartenküche
* Zwei Garagen sowie vier weitere Kfz-Stellplätze
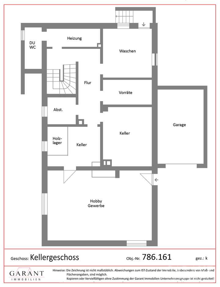
* Großer Keller mit viel Stauraum
* Hochwertiges Treppenhaus mit Vollholztreppe bis ins Dachgeschoss
Die Immobilie befindet sich in attraktiver Lage in unmittelbarer Seenähe. Ein ruhiges Wohnumfeld, viel Grün und ein hoher Erholungswert zeichnen diesen Standort aus.
Die Bausubstanz ist sehr gut, der Keller trocken und das Dachgeschoss bereits Teilausgebaut. Energetisch ist das Gebäude nicht auf aktuellem Stand, Sie sollten Renovierungskosten einkalkulieren.
Ob Sie an Eigennutzung denken oder an eine Kapitalanlage - eine Besichtigung lohnt sich!
***Großzügiges Zweifamilienhaus in Seenähe ***
35435 Wettenberg
Die vollständige Adresse der Immobilie erhalten Sie vom Anbieter.
Auf Karte anzeigen
Die vollständige Adresse der Immobilie erhalten Sie vom Anbieter.
Finanzierungszertifikat
In nur zwei Minuten zu Ihrem persönlichen Finanzierungszertifkat.
Infos
| Haustyp | Mehrfamilienhaus |
|---|---|
| Wohnfläche ca. | 235 m2 |
| Nutzfläche | 116 m2 |
| Grundstücksfläche | 782 m2 |
| Bezugsfrei ab | Nach Vereinbarung |
| Zimmer | 9 |
| Garage/Stellplatz | Garage |
| Anzahl Garage/Stellplatz | 2 |
Kosten
| Kaufpreis |
579.000 € |
|---|---|
| Provision |
5,95 % inkl. ges. MwSt. Die Maklercourtage für den Käufer beträgt 5 % aus dem Kaufpreis zuzüglich der gesetzlichen MwSt., somit gesamt 5,95 %. |
Finanzierungsrechner:
Kaufpreis:
600.000 €
Eigenkapital:
600.000 €
Monatliche Rate
0 €
Effektiver Jahreszins
0 %
Sollzinsbindung
10 Jahre
Bausubstanz & Energieausweis
| Baujahr | 1962 |
|---|---|
| Letzte Sanierung | 2018 |
| Bauphase | Haus fertig gestellt |
| Objektzustand | Renovierungsbedürftig |
| Qualität der Austattung | Normal |
| Heizungsart | Zentralheizung |
| Wesentliche Energieträger | Gas |
| Energieausweis | liegt vor |
| Energieausweistyp | Bedarfsausweis |
| Energieverbrauchskennwert | 203,0 kWh/(m²*a) |
| Energieeffizienzklasse | G |
203,0
kWh/(m²*a)
Energieeffizienzklasse G
- A+
- A
- B
- C
- D
- E
- F
- G
- H
- 0
- 25
- 50
- 75
- 100
- 125
- 150
- 175
- 200
- 225
- >250
Beschreibung des Objekts
Ausstattung
* Erdgeschoss: offene Küche zum Esszimmer und Übergang zum
großem und hellem Wohnzimmer mit Kachelofen und Balkon; großes
Schlafzimmer; 2 Tageslichtbäder; Gäste-WC; Speisekammer
* Obergeschoss: Küche mit durchreiche; Wohn- Esszimmer;
Kinderzimmer/Büro; Schlafzimmer; 1 Tageslichtbad; Gäste-WC;
Speisekammer
* Dachgeschoss: Loggia; 2 Zimmer, Teilausgebaut mit
Möglichkeit zum weiteren Ausbau mit Duschbad etc. (alles
bereits vorhanden und muss lediglich eingebaut werden)
Lage
Wettenberg-Wißmar liegt nur wenige Minuten nördlich von Gießen und verbindet eine ruhige, naturnahe Wohnlage mit einer sehr guten Verkehrsanbindung. Durch die Nähe zu den Autobahnen A5 und A45 ist die Region optimal angebunden. Der Ort bietet eine gewachsene Infrastruktur mit Einkaufsmöglichkeiten, Ärzten, Schulen und Kinderbetreuungseinrichtungen. Freizeit- und Erholungsmöglichkeiten wie der beliebte Wißmarer See sowie umliegende Wald- und Grünflächen machen den Standort besonders attraktiv. Wißmar steht für familienfreundliches Wohnen in einer lebendigen, gut angebundenen Gemeinde.
Sonstige Angaben
Energiebedarfsausweis Energiekennwert: 203,00 kWh/(qm*a) Energieeffizienz: Klasse G (kl.250) Heizung: Zentralheizung mit Gas Baujahr laut Energieausweis: 1962
2 x Garage, 4 x Stellplatz außen
* Seenähe
* unverbaubare tolle Lage
* schöner, großer Garten
* 2 Garagen (eine mit Grube)
* ca. 4 Kfz-Stellplätze
* Kachelofen im Wohnzimmer im EG der mit Holz geheizt wird;
Öffnungen in fast alle Zimmer des Hauses
* großer Keller mit Bar, Holzkeller und 1 großer Gewerberaum
(Zulassung besteht noch)
* Heizung ca. 15 Jahre jung
* Vollholztreppe bis ins Dachgeschoss
* Loggia
* Terrasse
* 2 Balkone
* Potential im Dachgeschoss zum weiteren Ausbau
Grundriss
786161-EG
>
>
786161-KG
>
>
Adresse
35435 Wettenberg
Interessante Orte
Preis- und Lageinformationen
Preistrend für Bestandsimmobilien in Wettenberg