Willkommen in Ihrem neuen Zuhause – ein Ort, an dem sich Geschichte und moderner Komfort zu einem harmonischen Ganzen verbinden.
Dieses charmante Reihenendhaus in Kissing ist mehr als nur eine Immobilie – es ist ein liebevoll gepflegtes Zuhause, das Wärme und Charakter ausstrahlt.
Mit rund 92 m² Wohnfläche, verteilt auf zwei Etagen und ein ausgebautes Dachgeschoss, bietet es Raum für Ihre Ideen und Träume.
Schon beim Betreten spüren Sie die besondere Atmosphäre: Das behagliche Wohnzimmer mit einem modernen Pelletofen lädt zu gemütlichen Stunden ein, während die übrigen Räume mit Gas-Einzelöfen ausgestattet sind. Die durchdachte Raumaufteilung schafft ein Gefühl von Offenheit und Geborgenheit zugleich.
Das Grundstück ist ein echtes Highlight: Ein liebevoll angelegter Garten mit idyllischer Teichanlage, ein hochwertiger Steinteppich (2021) und eine neue Gartenhütte (März 2025) machen den Außenbereich zu einem Ort der Entspannung. Die überdachte Terrasse mit elektrisch steuerbarer Verschattung und erneuerten Doppelstegplatten ist perfekt für sonnige Tage und gesellige Abende. Der große Pavillon erhielt 2025 neue Stegplatten und bietet zusätzlichen Raum für entspannte Stunden im Freien.
Auch die Modernisierungen sprechen für sich: Das Dach wurde 1997 neu eingedeckt und gedämmt, der Giebel 1998 erneuert. Eine Fassadenseite wurde zusätzlich gedämmt. Die Haustür stammt aus dem Jahr 1999, die Fenster wurden zwischen 2000 und 2001 ausgetauscht. Das Balkongeländer aus Glas (2021) und der erneuerte Zaun (2019) runden das gepflegte Gesamtbild ab.
Eine Garage, direkt am Haus angebaut, sorgt für komfortable Parkmöglichkeiten.
Dieses Haus vereint Tradition und modernen Komfort auf harmonische Weise – ein Zuhause, das bereit ist für Ihre persönliche Geschichte.
Familienfreundliches Zuhause mit liebevoll angelegtem Garten
86438 Kissing
Die vollständige Adresse der Immobilie erhalten Sie vom Anbieter.
Auf Karte anzeigen
Die vollständige Adresse der Immobilie erhalten Sie vom Anbieter.
Finanzierungszertifikat
In nur zwei Minuten zu Ihrem persönlichen Finanzierungszertifkat.
Infos
| Haustyp | Reiheneckhaus |
|---|---|
| Wohnfläche ca. | 92 m2 |
| Nutzfläche | 109 m2 |
| Grundstücksfläche | 274 m2 |
| Bezugsfrei ab | nach Vereinbarung |
| Zimmer | 4 |
| Schlafzimmer | 2 |
| Badezimmer | 1 |
| Garage/Stellplatz | Garage |
| Anzahl Garage/Stellplatz | 1 |
Kosten
| Kaufpreis |
426.000 € |
|---|---|
| Provision |
2,95% inkl. MwSt. |
Finanzierungsrechner:
Kaufpreis:
600.000 €
Eigenkapital:
600.000 €
Monatliche Rate
0 €
Effektiver Jahreszins
0 %
Sollzinsbindung
10 Jahre
Bausubstanz & Energieausweis
| Baujahr | 1959 |
|---|---|
| Heizungsart | Gas-Heizung |
| Wesentliche Energieträger | Gas |
| Energieausweis | liegt vor |
| Energieausweistyp | Bedarfsausweis |
| Energieverbrauchskennwert | 188,0 kWh/(m²*a) |
| Energieeffizienzklasse | F |
188,0
kWh/(m²*a)
Energieeffizienzklasse F
- A+
- A
- B
- C
- D
- E
- F
- G
- H
- 0
- 25
- 50
- 75
- 100
- 125
- 150
- 175
- 200
- 225
- >250
Beschreibung des Objekts
Ausstattung
Die technische Ausstattung unterstreicht die kontinuierliche Pflege und Modernisierung.
Das Badezimmer wurde bereits 2003 vollständig saniert, inklusive teilweise neuer Wasserleitungen, und präsentiert sich in zeitgemäßem Design. Eine Dusche im Untergeschoss wurde 2023 erneuert und sorgt für modernen Komfort. Rollläden sind im gesamten Haus vorhanden, teilweise sogar gedämmt, was zur Energieeffizienz beiträgt.
Die Bodenbeläge wurden ebenfalls erneuert: ein hochwertiger Teppich im Jahr 2019 und ein moderner Vinylboden im Wohnzimmer erst 2024. Im Wohnzimmer sorgt der neue Pelletofen für wohlige Wärme, während die übrigen Räume mit Gas-Einzelöfen ausgestattet sind.
Das Haustürschloss wurde 2025 durch ein Zahlencode-Schloss ersetzt – ein Plus an Sicherheit und Komfort.
Im Außenbereich überzeugt die Immobilie mit einem Steinteppich (2021), einer überdachten Terrasse mit elektrischer Verschattung und erneuerten Doppelstegplatten sowie einer neuen Gartenhütte (2025). Das aufwendig verglaste Balkongeländer aus dem Jahr 2021 und der erneuerte Zaun (2019) setzen optische Akzente und unterstreichen die hochwertige Gestaltung.
Insgesamt präsentiert sich die technische Ausstattung als gelungene Mischung aus Funktionalität, Komfort und ästhetischem Anspruch – ein Haus, das keine Wünsche offenlässt.
Lage
Exklusives Wohnen in Toplage von Kissing,
Die Immobilie befindet sich in einer der begehrtesten Wohnlagen von Kissing, einer charmanten Gemeinde im Landkreis Aichach-Friedberg. Das Haus liegt in einem ruhigen, gewachsenen Wohngebiet, das durch eine gepflegte Nachbarschaft und eine angenehme Atmosphäre besticht.
Hervorragende Infrastruktur und ideale Anbindung:
Die Lage überzeugt mit einem exzellenten Lagescore (5 von 5). Einkaufsmöglichkeiten, Schulen, Kindergärten sowie medizinische Versorgung sind in wenigen Minuten erreichbar. Für Pendler ist die Nähe zu Augsburg ein großer Vorteil – die Stadt ist sowohl mit dem Auto als auch mit öffentlichen Verkehrsmitteln schnell erreichbar. Ein besonderes Highlight: München erreichen Sie in nur rund 20 Minuten bequem mit dem Zug – ein unschlagbarer Pluspunkt für Berufspendler!
Lebensqualität pur:
Die Umgebung lädt zu vielfältigen Freizeitaktivitäten ein: Spaziergänge entlang der Lechauen, ausgedehnte Radtouren oder Ausflüge in die Natur – hier genießen Sie Wohnen mit Erholungsfaktor. Trotz der ruhigen Lage profitieren Sie von einer optimalen Anbindung an die B2 und die A8, sodass auch München mit dem Auto in unter einer Stunde erreichbar ist.
Kurzum: Diese Lage vereint Ruhe, Natur und perfekte Zentralität – ideal für alle, die das Beste aus beiden Welten suchen.
Sonstige Angaben
Die genannten Informationen beruhen auf den Angaben des Verkäufers. Für die Richtigkeit und Vollständigkeit der Angaben wird keine Gewähr oder Haftung übernommen.
Seit dem 25. Mai 2018 gilt in Deutschland die EU-Datenschutz-Grundverordnung (DS-GVO). Sie regelt, wie private Unternehmen und öffentliche Stellen personenbezogene Daten verarbeiten dürfen. Neben dem freien Datenverkehr innerhalb der Europäischen Union steht der Schutz der personenbezogenen Daten im Vordergrund.
Weitere Angaben zum Umgang mit personenbezogenen Daten sowie Rechten finden Sie unter www.debeka.de/datenschutz.
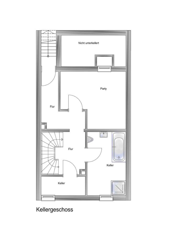
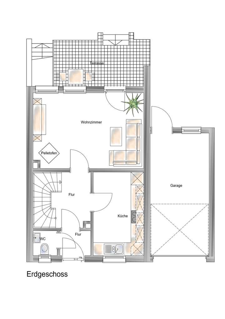
Grundriss
- Grundriss Erdgeschoss -
>
>
- Grundriss Obergeschoss -
>
>
- Grundriss Dachgeschoss/Lo...
>
>
- Grundriss Untergeschoss -
>
>
Adresse
86438 Kissing
Interessante Orte
Preis- und Lageinformationen
Preistrend für Bestandsimmobilien in Kissing