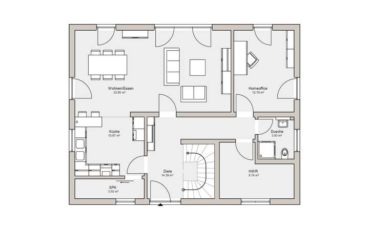
Willkommen zu Hause! Im Architektenhaus Taro erwarten Sie 153 m voller Wohnkomfort. Das charmante Satteldachhaus bietet eine offene K che mit angrenzender Speisekammer. Zudem schlie t sich hier der offene Wohn-/Essbereich an mit ber 30 m . Vollendet wird das Erdgeschoss mit einem Home-Office, einem Duschbad und dem Hauswirtschaftraum. Hier werden Tr ume wahr!
Das Dachgeschoss von Satteldachhaus Taro gestaltet sich ebenfalls gro z gig - schon der Flur bietet Platz f r eine Leseecke unter einem Dachfenster. Au erdem finden Sie hier zwei Kinderzimmmer, ein Elternschlafzimmer mit Ankleide und ein Familienbad.
Dieses Haus wird nach Ihren individuellen Wünschen geplant und ausgestattet!
Flexibles Raumwunder!
99189 Walschleben
Die vollständige Adresse der Immobilie erhalten Sie vom Anbieter.
Auf Karte anzeigen
Die vollständige Adresse der Immobilie erhalten Sie vom Anbieter.
Finanzierungszertifikat
In nur zwei Minuten zu Ihrem persönlichen Finanzierungszertifkat.
Infos
| Haustyp | Einfamilienhaus |
|---|---|
| Wohnfläche ca. | 153 m2 |
| Grundstücksfläche | 506 m2 |
| Zimmer | 5 |
| Schlafzimmer | 3 |
| Badezimmer | 2 |
| Anzahl Garage/Stellplatz | 2 |
Kosten
| Kaufpreis |
416.100 € |
|---|---|
| Provision | Nein |
Finanzierungsrechner:
Kaufpreis:
600.000 €
Eigenkapital:
600.000 €
Monatliche Rate
0 €
Effektiver Jahreszins
0 %
Sollzinsbindung
10 Jahre
Bausubstanz & Energieausweis
| Baujahr | 2026 |
|---|---|
| Bauphase | Haus in Planung (projektiert) |
| Objektzustand | Erstbezug |
| Qualität der Austattung | Gehoben |
| Heizungsart | Wärmepumpe |
| Energieausweis | liegt vor |
| Energieausweistyp | Bedarfsausweis |
| Energieverbrauchskennwert | 13,2 kWh/(m²*a) |
| Energieeffizienzklasse | A+ |
13,2
kWh/(m²*a)
Energieeffizienzklasse A+
- A+
- A
- B
- C
- D
- E
- F
- G
- H
- 0
- 25
- 50
- 75
- 100
- 125
- 150
- 175
- 200
- 225
- >250
Beschreibung des Objekts
Ausstattung
5 Zimmer, offene K che, Diele, Flur, Bad, Dusche, Ankleide, Speisekammer, Hauswirtschaftsraum
Das gezeigte Traumhaus im Überblick:
+ Massivhaus im Sinne der Ausstattungsbeschreibung "Nestbau"
+ Energieeffizienzklasse A+
+ + Zukunftsorientierte Energieausstattung in Form einer Luft-Wasser-Wärmepumpe und Fußbodenheizung
Beste Markenausstattung in jedem Kern-Haus:
+ Fenster mit 3-Scheiben-Wärmeschutzverglasung und elektrischen Rollläden
+ Dacheindeckung mit Betondachsteinen von Braas mit "Star-Oberfläche"
+ Hochwertiger Kunstharz-Außenputz
+ Badausstattung mit Badewanne und flacher Duschwanne
+ Fliesen in Bad und WC
+ Haustür mit Sicherheitsverriegelung
+ Innentüren der Marke Herholz mit Edelstahldrückern
+ Stahl-Holz-Treppe mit individueller Farbgestaltungsmöglichkeit
+ Elektroausstattung inklusive Klingelanlage
+ Rauchmelder für Ihre Sicherheit
+ Einsatz regionaler Handwerksbetriebe
+ Blower-Door-Test
Lage
Im unmittelbaren Speckgürtel von Erfurt wohnen. Die Bushaltestelle liegt nur 200 m entfernt und zum Bahnhof ist es auch nicht weit.
Über die Landstraße haben Sie eine schnelle Verbindung nach Erfurt. Regionale Verkehrsanbindungen finden Sie in Richtung Sömmerda und Gebesee. Mit dem Auto erreichen Sie Erfurt in ca. 10 Minuten. Im historischen Dorfkern finden Sie gepflegte Hofstätten, ruhigen Wohnstraßen mit viel Grün und geringer Lärmbelastung. Die nahe Flusslandschaft der Gera lädt zu Spaziergängen ein. Für Familien erleichtert die Nähe zur Kita und Schule die Betreuung.
Sonstige Angaben
Kern-Haus
Kern-Haus baut individuelle und massive Architektenhäuser zu einem attraktiven Preis-Leistungs-Verhältnis – und das bereits mit einer Erfahrung seit 1980. Die Kern-Haus AG ist ein deutscher, inhabergeführter Massivhausanbieter mit Sitz im rheinland-pfälzischen Ransbach-Baumbach. Kern-Haus setzt auf eine hohe Bauqualität der Handwerker und auf eine große Auswahl starker Marken. So verwendet Kern-Haus beim Bau Ihres Hauses nur hochwertige Markenprodukte renommierter Hersteller.
Preise und Auszeichnungen von Kern-Haus:
- German Brand Award in den Jahren 2018 und 2021
- Hausbau Design Award: Sieger in den Jahren 2017, 2018, 2019, 2020, 2021, 2022 und 2023
- Deutscher Traumhauspreis: Sieger in den Jahren 2014, 2015, 2016 und 2018 und Silber 2017, 2020 und 2021
- Mittelstandspreis "Top 100" in den Jahren 2014, 2016, 2018, 2020 und 2022
- German Design Award im Jahr 2018
Weitere Informationen
Der gezeigte Preis versteht sich inklusive Grundstück und exklusive der Baunebenkosten.
Ihre Ansprechpartnerin Katrin Klein vom Kern-Haus-Team in Erfurt freut sich darauf Ihre Fragen zu beantworten. Jetzt anrufen: 0361 / 551450
Grundriss
Grundriss Erdgeschoss
>
>
Grundriss Dachgeschoss
>
>
Adresse
99189 Walschleben
Interessante Orte
Preis- und Lageinformationen
Preistrend für Bestandsimmobilien in Walschleben