Viele tausend Bauherren haben sich Ihren Wunsch vom eigenen Haus bereits mit uns erfüllt!
Unsere Häuser sind völlig flexibel mit veränderbaren Grundrissen und variablen estaltungsmöglichkeiten, Sie können Ihr Haus somit vollkommen auf Ihre Bedürfnisse anpassen und planen. Die Nettogrundfläche unseres Lifestyle 14.01 S beträgt 145,54 m².
Wir beraten und helfen Ihnen gerne dabei hier Ihr Traumhaus zu planen.
Wohnnebenkosten sind Dank dem massa-ecoBalance-System ebenfalls dauerhaft niedrig! Klimawandel und damit verbundene steigende Energiekosten werden durch unsere Haustechnik von Markenherstellern mit zukunftsweisender Technologie reduziert.
Weiterer Service von uns:
Unser Bemusterungszentrum unterstützt Sie kompetent bei der Wahl der Materialien für einen hochwertigen aber kostengünstigen Innenausbau.
Sie haben schon ein Grundstück? - Kein Problem, wir planen jedes unserer Häuser auch gerne auf Ihrem Grundstück. Das Preis- Leistungsverhältnis ist bei uns unschlagbar.
Errichtung und Fertigstellung nach Absprache.
***Starten Sie JETZT mit der Planung Ihres massa (Ausbau-) hauses !***
52531 Übach-Palenberg
Die vollständige Adresse der Immobilie erhalten Sie vom Anbieter.
Auf Karte anzeigen
Die vollständige Adresse der Immobilie erhalten Sie vom Anbieter.
Finanzierungszertifikat
In nur zwei Minuten zu Ihrem persönlichen Finanzierungszertifkat.
Infos
| Haustyp | Einfamilienhaus |
|---|---|
| Etagenzahl | 2 |
| Wohnfläche ca. | 146 m2 |
| Nutzfläche | 146 m2 |
| Grundstücksfläche | 501 m2 |
| Zimmer | 5 |
| Schlafzimmer | 3 |
| Badezimmer | 2 |
Kosten
| Kaufpreis |
298.500 € |
|---|---|
| Provision | Nein |
Finanzierungsrechner:
Kaufpreis:
600.000 €
Eigenkapital:
600.000 €
Monatliche Rate
0 €
Effektiver Jahreszins
0 %
Sollzinsbindung
10 Jahre
Bausubstanz & Energieausweis
| Baujahr | 2026 |
|---|---|
| Bauphase | Haus in Planung (projektiert) |
| Objektzustand | Erstbezug |
| Qualität der Austattung | Normal |
Beschreibung des Objekts
Ausstattung
Das Ausbauhaus ist von außen fix und fertig!
Wohnraumerhöhung auf 2,75m ist GRATIS.
Modernes Niedrigenergie-Haus (KfW 55) mit Top-Architektur und modernster Energiespartechnik.
-inkl. ARCHITEKTENLEISTUNG (Genehmigungsplanung und Bauantrag)
- inkl. GRUNDSTÜCK
- inkl. Baugrunduntersuchung
- inkl. Dach
- inkl. mineralischer Struktur-Außenputz (weiß)
- inkl. 3-fach verglasten Wärmeschutzfenster (weiß)
- inkl. Rollläden
- inkl. modernem Haustürelement (Auswahl)
Optional stehen Ihnen perfekt abgestimmte Technikpakete mit innovativer Energietechnik von Markenherstellern und Nutzung regenerativer Energien zur Auswahl.
Selbstverständlich erhalten Sie das vorgestellte Haus auf Wunsch auch fast- fertig oder ohne Keller. Alle Grundrisse und Ausbaupakete können natürlich nach Ihren Vorstellungen individuell verändert werden.
Als Marktführer sehen wir uns in der Verantwortung, unsere Häuser konsequent und innovativ weiter zu entwickeln. Gütegeprüfte neue Materialien, die massa-Klima-Plus-Wand, energietechnische Verbesserungen in der Hauskonstruktion und nicht zuletzt das massa-ecobalance-System, das schon heute künftigen Energiegesetzen genügt, belegen und unterstreichen diesen Anspruch.
Qualität und Sicherheit eines Marktführers!
- 15 Monate Festpreisgarantie
- Niedrigenergiehaus KfW 55 ab Werk
- Bezahlung des Ausbauhauses erst nach Abnahme
- Montage des Hauses innerhalb von 2-4 Tagen
- Professionelle Ausbau-Beratung vor Ort
- 5 Jahre Gesamtgarantie nach BGB auf alle massahaus Leistungen
- Gesundes Bauen mit TÜV-Siegel ""Toxproof""
Lage
Unser Grundstücksservice - Kein Grundstück? Kein Problem!
Mit dem massa-Grundstücksservice unterstützen wir unsere Baufamilien gerne kostenlos bei der Suche eines passenden Bauplatzes für ihr Traumhaus.
Dabei berücksichtigen wir nach Möglichkeit die gewünschte Region, Ihre Wünsche hinsichtlich der Lage, das Budget und prüfen vorab ob der gewünschte / bevorzugte Haustyp auf einem Grundstück realisiert werden kann.
Wenn Sie bereits ein Grundstück besitzen planen wir selbstverständlich auch gerne darauf das passende Haus. Egal ob ein freistehendes Ein-, oder Zweifamilienhaus, einen Bungalow und Doppelhaus oder Doppelhaushälfte.
Sonstige Angaben
Ich freue mich über Ihren Anruf!
Ihre Gina Görtz
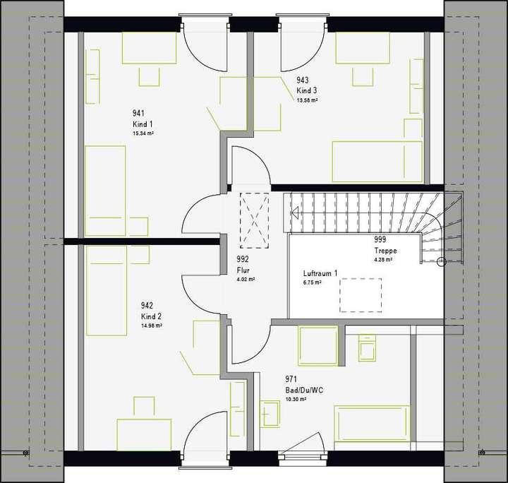
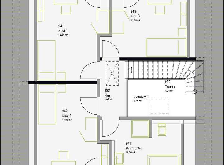
Grundriss
Erdgeschoss
>
>
Dachgeschoss
>
>
Adresse
52531 Übach-Palenberg
Interessante Orte
Preis- und Lageinformationen
Preistrend für Bestandsimmobilien in Übach-Palenberg