Highlights im Überblick:
+ Zentrale & begehrte Lage in Saarbrücken–St. Arnual – ideal für Familien, Paare oder Kapitalanleger
+ Doppelhaushälfte mit vielseitigem Baugrundstück – separierbar oder als großzügige Hoffläche mit vielen Parkmöglichkeiten nutzbar
+ Hochwertige Einbauküche (Einbau vor ca. 2 Jahren) mit offenem Essbereich
+ Gäste-WC modernisiert (ca. 3 Jahre alt)
+ Vollständig unterkellertes Haus mit viel Stauraum
+ Solarthermie vorbereitet – zukunftsorientierte Energieoption
+ Vier vermietete Garagen auf dem Grundstück – stabile Mieteinnahmen
Suchen Sie ein charmantes Zuhause in einer der beliebtesten Wohnlagen Saarbrückens – kombiniert mit vielseitigen Nutzungsmöglichkeiten und zusätzlichem Renditepotenzial? Diese gepflegte Doppelhaushälfte in Saarbrücken–St. Arnual überzeugt mit ca. 118,13 m² Wohnfläche, einem großzügigen Grundstück mit Entwicklungspotenzial und vier vermieteten Garagen – ideal für Selbstnutzer oder Kapitalanleger.
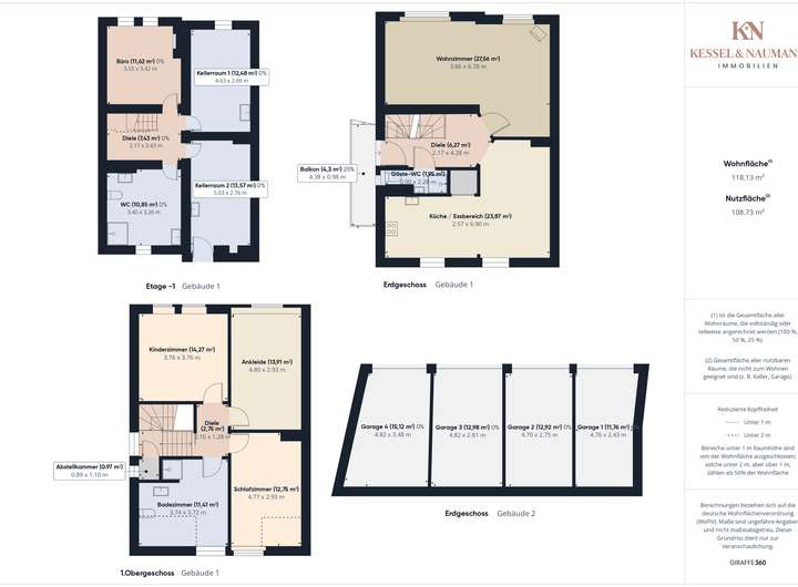
Im Erdgeschoss erwartet Sie ein großzügiger Wohnbereich, der durch seine offene Gestaltung und viel Tageslicht ein angenehmes Wohngefühl schafft. Die moderne Einbauküche (ca. 2 Jahre alt) ist hochwertig ausgestattet und bildet zusammen mit dem angrenzenden Essplatz den Mittelpunkt des Familienlebens. Ein erneuertes Gäste-WC ergänzt die Etage.
Im Obergeschoss stehen ein großes Schlafzimmer, ein Kinderzimmer sowie ein Ankleidezimmer zur Verfügung. Ein Badezimmer befindet sich ebenfalls auf dieser Ebene, das zudem die Möglichkeit bietet, es vollständig nach eigenen Vorstellungen neu zu gestalten und modern anzupassen. Der Grundriss eignet sich optimal für Familien oder Paare mit Platzbedarf.
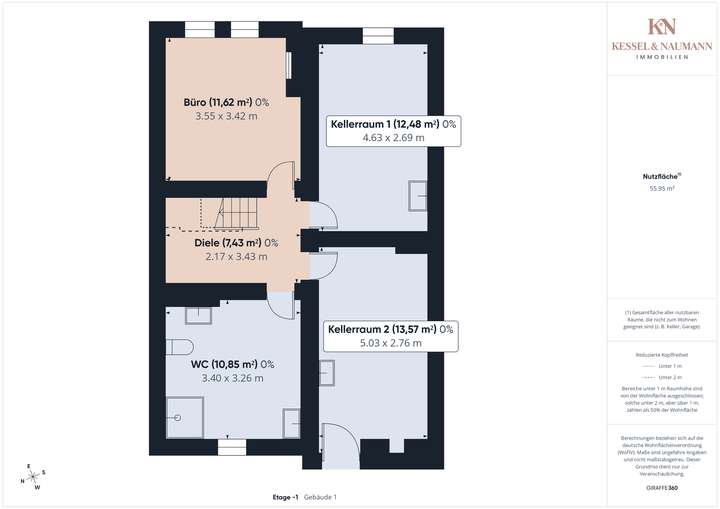
Das Haus ist vollständig unterkellert und bietet somit zusätzlichen Stauraum, Hobbyräume oder Platz für Vorräte.
Die vorbereitete Solarthermie schafft zukunftssichere Voraussetzungen für energetische Optimierungen.
Ein absolutes Highlight ist das große Baugrundstück bzw. die Hof-/Freifläche, die flexibel genutzt werden kann:
– als separates Baugrundstück,
– als große Hoffläche für Fahrzeuge,
– oder als privater Garten, der individuell angelegt werden kann.
Zusätzlich befinden sich vier vermietete Garagen auf dem Grundstück – ein attraktives Extra an monatlichen Einnahmen für Kapitalanleger und ein großer Vorteil für Eigennutzer.
Aufteilung der Wohnfläche:
Erdgeschoss
+ Diele
+ Großzügiges Wohnzimmer
+ Küche mit modernem Essbereich
+ Gäste-WC (erneuert)
Obergeschoss
+ Schlafzimmer
+ Kinderzimmer
+ Ankleidezimmer
+ Badezimmer
+ Abstellkammer
Untergeschoss (vollständig unterkellert)
+ Zwei Kellerräume
+ Büro/Hobbyraum
+ WC
+ Zugang zum Hof
Nebengebäude:
+ Vier vermietete Garagen
+ Schuppen
Mit ihrer zentralen, zugleich ruhigen Lage in Saarbrücken–St. Arnual, dem flexiblen Grundstück, der modernen Ausstattung und dem zusätzlichen Einnahmepotenzial durch die Garagen bietet diese Doppelhaushälfte eine seltene Gelegenheit – ideal zur Eigennutzung oder als hervorragende Kapitalanlage.
Vereinbaren Sie gerne einen Besichtigungstermin und überzeugen Sie sich vor Ort.
Platz, Potenzial & perfekte Lage – Doppelhaushälfte im Herzen von St. Arnual!
66119 Saarbrücken
Die vollständige Adresse der Immobilie erhalten Sie vom Anbieter.
Auf Karte anzeigen
Die vollständige Adresse der Immobilie erhalten Sie vom Anbieter.
Finanzierungszertifikat
In nur zwei Minuten zu Ihrem persönlichen Finanzierungszertifkat.
Infos
| Haustyp | Einfamilienhaus |
|---|---|
| Etagenzahl | 2 |
| Wohnfläche ca. | 118 m2 |
| Grundstücksfläche | 456 m2 |
| Zimmer | 4 |
| Schlafzimmer | 3 |
| Badezimmer | 1 |
| Garage/Stellplatz | Garage |
Kosten
| Kaufpreis |
325.000 € |
|---|---|
| Provision |
2,75% zzgl. der gesetzlich gültigen MwSt. Die Höhe unserer Courtage richtet sich nach den ab 23.12.2020 in Kraft getretenen gesetzlichen Regelungen zur Teilung der Maklercourtage. Hiernach wird die Courtage für beide Parteien (Eigentümer und Käufer) in Höhe von 2,75% zuzüglich Umsatzsteuer in jeweils gleicher Höhe, bei notariellem Vertragsabschluss verdient und fällig. Die Höhe der Bruttocourtage unterliegt einer Anpassung bei Steuersatzänderung. |
Finanzierungsrechner:
Kaufpreis:
600.000 €
Eigenkapital:
600.000 €
Monatliche Rate
0 €
Effektiver Jahreszins
0 %
Sollzinsbindung
10 Jahre
Bausubstanz & Energieausweis
| Baujahr | 1900 |
|---|---|
| Letzte Sanierung | 2025 |
| Objektzustand | Renovierungsbedürftig |
| Qualität der Austattung | Normal |
| Heizungsart | Gas-Heizung |
| Wesentliche Energieträger | Gas |
| Energieausweis | liegt vor |
| Energieausweistyp | Bedarfsausweis |
| Energieverbrauchskennwert | 299,2 kWh/(m²*a) |
| Energieeffizienzklasse | H |
299,2
kWh/(m²*a)
Energieeffizienzklasse H
- A+
- A
- B
- C
- D
- E
- F
- G
- H
- 0
- 25
- 50
- 75
- 100
- 125
- 150
- 175
- 200
- 225
- >250
Beschreibung des Objekts
Ausstattung
Die nachfolgenden Angaben basieren auf Aussagen der Eigentümer und wurden tlw. geschätzt. Für die Richtigkeit der Angaben wird weder von dem Eigentümer noch von der Firma Kessel & Naumann Immobilien Haftung übernommen.
Elektrik: 2015 (neue Unterverteilung, auch für Wohnzimmer bereits neue Zuleitung gelegt). Laut Zählerschrank / Verteilerkasten von 27.10.2024
Heizung: 2008 (Gas-Heizung Viessmann Vitodens 200), Solarthermie vorgerüstet. Warmwasser über Speicher, neue Heizungsstränge unter anderem für die Küche, Fußbodenheizung in der Küche und im Gäste-WC
Fenster: 1980 (Badezimmer OG), 2024/2025 Fenster im EG (Küche, Wohnzimmer, Flur) und im OG Schlafzimmer, viele Fenster 3-fach verglast Kunststofffenster (elektrische Rollläden), Treppenhaus erneuert.
Bäder: Gäste-WC mit Dusche vor ca. 2-3 Jahren vollständig saniert, 1. OG alt (60er Jahre)
Dach: Zinkbleche im Kinderzimmer erneuert, Kaum Dachschrägen. Dach gedämmt, Dachboden gedämmt
Wasserleitungen: Im Zuge der Badsanierungen
Sonstiges: Küche vor ca. 2 Jahren, Drainage gelegt vor dem Haus, Videoüberwachung
Lage
Allgemein
Saarbrücken–St. Arnual ist einer der traditionsreichsten und beliebtesten Stadtteile der Landeshauptstadt Saarbrücken und gehört zur Metropolregion Saar-Lor-Lux. Der Stadtteil kombiniert eine ruhige, naturnahe Wohnlage entlang der Saar mit einer lebendigen Infrastruktur und hervorragender Erreichbarkeit. Mit seinem historischen Ortskern rund um den St. Arnualer Markt, gepflegten Wohngebieten und der grünen Auenlandschaft bietet St. Arnual ein attraktives Wohnumfeld für Familien, Berufspendler und Ruhesuchende gleichermaßen.
Infrastruktur
Die Verkehrsanbindung ist hervorragend: Über die Autobahnen A620, A6 und die Stadtautobahn erreicht man Ziele wie Saarbrücken-City, St. Ingbert, Völklingen oder Neunkirchen in wenigen Minuten. Mehrere Buslinien verbinden St. Arnual engmaschig mit der Innenstadt und den umliegenden Stadtteilen. Einkaufsmöglichkeiten, Supermärkte, Apotheken, Banken, Bäckereien, Restaurants und Cafés sind direkt vor Ort und ermöglichen kurze Wege im Alltag.
Bildung und Wirtschaft
St. Arnual bietet Familien ein breites Angebot an Kindertagesstätten und eine Grundschule im Stadtteil. Weiterführende Schulen – darunter Gymnasien, Gemeinschaftsschulen und berufliche Schulen – sind in Saarbrücken schnell erreichbar. Der Standort profitiert zudem von der Nähe zur Universität des Saarlandes, zu Dienstleistungs- und Behördenstandorten sowie zu zahlreichen mittelständischen Betrieben in der Region.
Sport und Freizeit
Die Umgebung von St. Arnual bietet vielfältige Möglichkeiten für Freizeit und Erholung. Die weitläufigen Saarwiesen, Rad- und Wanderwege, Sportvereine sowie Tennis- und Fußballplätze ermöglichen zahlreiche Outdoor-Aktivitäten. Der historische St. Arnualer Markt, Veranstaltungen, Wochenmärkte und kulturelle Angebote sorgen für ein lebendiges Ortsleben und tragen zur hohen Wohnqualität bei.
Medizinische Versorgung
Die medizinische Versorgung ist umfassend gewährleistet: Im Stadtteil und den angrenzenden Bereichen finden sich mehrere Haus- und Fachärzte sowie Apotheken. Das Klinikum Saarbrücken auf dem Winterberg und die Caritas-Klinik St. Theresia sind in wenigen Minuten erreichbar und bieten eine breite stationäre und ambulante Versorgung.
Grundriss
Kellergeschoss
>
>
Erdgeschoss
>
>
Obergeschoss
>
>
Gesamtüberblick Haus
>
>
Gesamtüberblick
>
>
Adresse
66119 Saarbrücken
Interessante Orte
Preis- und Lageinformationen
Preistrend für Bestandsimmobilien in Saarbrücken