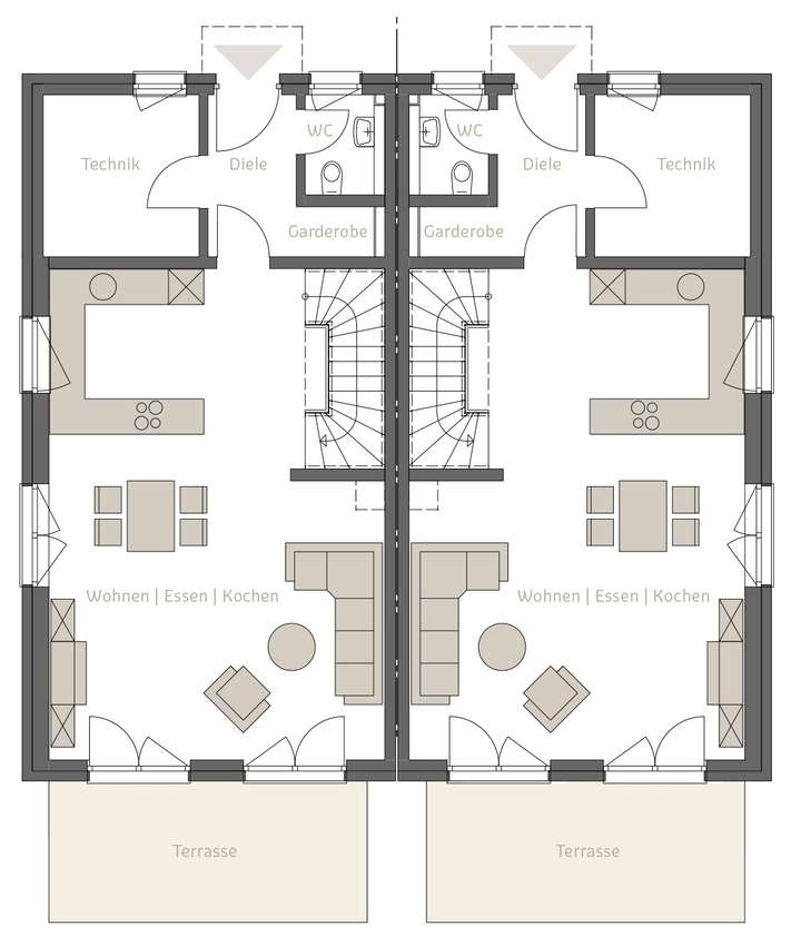
Diese in etwa 147 m² große Doppelhaushälfte, besticht durch moderne und gehobene Ausstattung. Sie bietet fünf Zimmer, darunter drei Schlafzimmer und ein Studio, das als Büro oder weiteres Schlafzimmer genutzt werden kann. Sowohl Familien, als auch Paaren bietet sich deshalb ausreichend Platz. Das großzügige Badezimmer ist mit einer Badewanne, einer separaten Dusche und einem Fenster ausgestattet. Im Erdgeschoss befindet sich das Gäste-WC.
In den Wohnräumen sind pflegeleichte Vinyl- und Fliesenböden vorgesehen, welche sich durch Langlebigkeit und eine ansprechende Optik auszeichnen. Rollläden an den Fenstern sorgen für zusätzlichen Komfort und Privatsphäre. Beheizt wird das Haus umweltfreundlich über eine moderne Wärmepumpe, die für ein angenehmes Raumklima sorgt.
Dieses Objekt verbindet modernes Wohnen mit hoher Lebensqualität.
Durch die innovative Bauweise, werden die kompletten Wand- und Deckenelemente im eigenen Fertigteilwerk, gerade mal eine halbe Stunde von Nittenau entfernt, vorgefertigt.
Zu der Immobilie gehören sowohl eine Garage, als auch ein Außenstellplatz, für die zusammen eine Gebühr von 15.000 € anfällt und zum Kaufpreis hinzukommt.
Gerne stellen wir Ihnen das Projekt vor. Vereinbaren Sie einen persönlichen Besprechungstermin mit uns.
Ihr Traumhaus im Grünen - Neubau Doppelhaushälfte in Nittenau
93149 Nittenau
Die vollständige Adresse der Immobilie erhalten Sie vom Anbieter.
Auf Karte anzeigen
Die vollständige Adresse der Immobilie erhalten Sie vom Anbieter.
Finanzierungszertifikat
In nur zwei Minuten zu Ihrem persönlichen Finanzierungszertifkat.
Infos
| Haustyp | Doppelhaushaelfte |
|---|---|
| Etagenzahl | 3 |
| Wohnfläche ca. | 147 m2 |
| Grundstücksfläche | 249,5 m2 |
| Bezugsfrei ab | 2026/2027 |
| Zimmer | 5 |
| Schlafzimmer | 3 |
| Badezimmer | 1 |
| Garage/Stellplatz | Außenstellplatz |
| Anzahl Garage/Stellplatz | 2 |
Kosten
| Kaufpreis |
550.000 € |
|---|---|
| Preis für Garage/Stellplatz | 15.000 € |
| Provision | Nein |
Finanzierungsrechner:
Kaufpreis:
600.000 €
Eigenkapital:
600.000 €
Monatliche Rate
0 €
Effektiver Jahreszins
0 %
Sollzinsbindung
10 Jahre
Bausubstanz & Energieausweis
| Baujahr | 2026 |
|---|---|
| Bauphase | Haus in Planung (projektiert) |
| Objektzustand | Erstbezug |
| Qualität der Austattung | Gehoben |
| Heizungsart | Wärmepumpe |
| Wesentliche Energieträger | Strom |
| Energieausweis | liegt vor |
| Energieausweistyp | Bedarfsausweis |
| Energieverbrauchskennwert | 23,8 kWh/(m²*a) |
| Energieeffizienzklasse | A+ |
23,8
kWh/(m²*a)
Energieeffizienzklasse A+
- A+
- A
- B
- C
- D
- E
- F
- G
- H
- 0
- 25
- 50
- 75
- 100
- 125
- 150
- 175
- 200
- 225
- >250
Beschreibung des Objekts
Lage
Nittenau ist ein aufstrebendes Städtchen im Nationalpark „Vorderer Bayerischer Wald“, direkt am Regenknie gelegen. Das moderne Baugebiet befindet sich im ruhigen Ortsteil Bergham. Über die nahe Bundesstraße 16 sind Cham, Regensburg, Schwandorf und das Städtedreieck schnell erreichbar.
Für den Alltag bietet Nittenau alle wichtigen Einkaufsmöglichkeiten sowie Restaurants und Cafés. Bildungseinrichtungen wie Grund- und Hauptschule sowie das Regentalgymnasium sind vorhanden, außerdem gibt es Kindergärten und Kitas in den Ortsteilen.
Freizeitmöglichkeiten sind vielfältig: Freibad, Museum und die umliegende Natur laden zu Spaziergängen, Rad- und Wandertouren sowie zum Inline-Skaten ein. Die angrenzenden Täler und Flüsse bieten ideale Bedingungen für sportliche Aktivitäten in der Natur.
Sonstige Angaben
Um eine schnelle Bearbeitung gewährleisten zu können, bitten wir um vollständige Kontaktdaten.
(mit Telefonnummer)
Die Objektdaten beruhen sich auf den Angaben des Verkäufers, für die wir keine Haftung übernehmen.
Homepage:
www.immoschuller.de
Grundriss
Erdgeschoss
>
>
Obergeschoss
>
>
Dachgeschoss
>
>
Adresse
93149 Nittenau
Interessante Orte
Preis- und Lageinformationen
Preistrend für Bestandsimmobilien in Nittenau