Das LivingHaus in Norderbrarup ist der Inbegriff des modernen Wohnens, perfekt auf deine Wünsche und Vorstellungen zugeschnitten. Mit einer Wohnfläche von 108,75 m² bietet dieser Bungalow mit klassischem Satteldach ein harmonisches und funktionales Raumkonzept. Der Giebelerker, der geschickt in das Dach integriert ist, verleiht sowohl dem Kinder- als auch dem Schlafzimmer eine großzügige Note. Das Querhaus mit ebenfalls einem Satteldach sorgt für zusätzliche Fläche und verbessert die Raumaufteilung - hier findest du Platz für ein Ankleidezimmer und eine einladende Küchenzeile. Von der Küche aus gelangst du direkt auf die Terrasse, die ideal für entspannte Stunden im Freien ist.
LivingHaus bietet dir nicht nur ein traumhaftes Zuhause, sondern auch zahlreiche Zusatzleistungen, die deinen Bauprozess stressfrei und effizient gestalten. Die Traumküche von LivingHaus wird individuell auf deinen Grundriss angepasst und überzeugt mit modernster Technik sowie cleveren Stauraumlösungen. Sie wird rechtzeitig zum Einzug geliefert, sodass du sofort mit dem Kochen beginnen kannst. Mit der LivingHaus Bau-App behältst du stets den Überblick über dein Bauprojekt - vom Zeitplan bis zur Dokumentenverwaltung ist alles digital und einfach zugänglich.
Das I-KON-System sorgt dafür, dass dein neues Zuhause energieeffizient und umweltfreundlich ist, perfekt zugeschnitten auf deine Bedürfnisse. Mit dem Zuhause-Darlehen erhältst du bis zu 250.000 EUR zu besonders günstigen Zinssätzen und kannst von staatlichen Förderprogrammen profitieren.
Das Zuhause-Paket bietet dir eine hochwertige Grundausstattung mit modernen Böden, edlen Türen und stilvollen Sanitäranlagen, alles optimal aufeinander abgestimmt. Und wenn du Hand anlegen möchtest, steht dir das DIY-Ausbau-Coaching zur Verfügung, bei dem Experten dir in nur drei Tagen zeigen, wie du den Innenausbau selbst meisterst.
Mit LivingHaus bist du auf der sicheren Seite: Ab dem Tag der Auftragsbestätigung gilt eine 18-monatige Festpreisgarantie und essenzielle Bauversicherungen sind ebenfalls inkludiert. Ein Bodengutachten für die ideale Gründung, eine komplette Bauantragsplanung durch erfahrene Architekten und vieles mehr runden das Paket ab. Du erhältst ein durchdachtes Gesamtkonzept, das dir von der Finanzierung über die Planung bis zur individuellen Ausgestaltung alle Möglichkeiten bietet, deinen Traum vom Eigenheim zu verwirklichen.
Dein individuelles Traumhaus in Norderbrarup - Fertighaus von LivingHaus
24392 Norderbrarup
Die vollständige Adresse der Immobilie erhalten Sie vom Anbieter.
Auf Karte anzeigen
Die vollständige Adresse der Immobilie erhalten Sie vom Anbieter.
Finanzierungszertifikat
In nur zwei Minuten zu Ihrem persönlichen Finanzierungszertifkat.
Infos
| Haustyp | Bungalow |
|---|---|
| Wohnfläche ca. | 108 m2 |
| Nutzfläche | 108,75 m2 |
| Grundstücksfläche | 563 m2 |
| Zimmer | 4 |
| Schlafzimmer | 1 |
| Badezimmer | 1 |
Kosten
| Kaufpreis |
311.133 € |
|---|
Finanzierungsrechner:
Kaufpreis:
600.000 €
Eigenkapital:
600.000 €
Monatliche Rate
0 €
Effektiver Jahreszins
0 %
Sollzinsbindung
10 Jahre
Bausubstanz & Energieausweis
| Baujahr | 2027 |
|---|---|
| Bauphase | Haus in Planung (projektiert) |
| Qualität der Austattung | Gehoben |
| Energieausweis | liegt vor |
| Energieausweistyp | Bedarfsausweis |
| Energieverbrauchskennwert | 18,0 kWh/(m²*a) |
| Energieeffizienzklasse | A+ |
18,0
kWh/(m²*a)
Energieeffizienzklasse A+
- A+
- A
- B
- C
- D
- E
- F
- G
- H
- 0
- 25
- 50
- 75
- 100
- 125
- 150
- 175
- 200
- 225
- >250
Beschreibung des Objekts
Ausstattung
Die Ausstattung deines neuen Wohnhauses von LivingHaus ist umfassend und individuell gestaltbar. Du profitierst von hochwertigen Materialien und modernem Design, die in der Grundausstattung enthalten sind. Dazu gehören moderne Böden, edle Türen und stilvolle Sanitäranlagen. Die individuelle Planung deiner Traumküche ist inklusive, sodass du eine Küche erhältst, die perfekt auf deine Bedürfnisse zugeschnitten ist.
Zusätzlich sorgt das I-KON-System für eine energieeffiziente Bauweise, während im Zuhause-Paket alle notwendigen Innenausbaumaterialien enthalten sind. Dazu zählen auch Fliesen für das gesamte Erdgeschoss und bodengleiche Duschen mit Echtglasabtrennung. Die Experten von LivingHaus unterstützen dich zudem im DIY-Ausbau-Coaching, damit du deinem Zuhause den letzten Schliff verleihen kannst.
Dein neues Zuhause wird also nicht nur funktional, sondern auch stilvoll - genau wie du es willst!
Lage
Norderbrarup ist ein reizvoller Ort, der eine hervorragende Lebensqualität bietet. In der Umgebung findest du zahlreiche Bildungseinrichtungen, darunter Kindergärten und Schulen, die für Familien besonders attraktiv sind. Der Kindergarten in Norderbrarup hat einen ausgezeichneten Ruf und bietet eine liebevolle Betreuung für die Kleinsten. Die Grundschule ist ebenfalls gut erreichbar und legt großen Wert auf eine individuelle Förderung der Kinder.
Für den täglichen Einkauf stehen dir mehrere Supermärkte in der Nähe zur Verfügung, die alles bieten, was du für deinen Haushalt benötigst. Auch Ärzte und Apotheken sind in der Umgebung leicht zu erreichen, was dir eine umfassende medizinische Versorgung garantiert.
Die Freizeitmöglichkeiten sind in Norderbrarup vielfältig. Ob du die Natur liebst oder sportliche Aktivitäten bevorzugst - hier findest du zahlreiche Möglichkeiten, deine Freizeit zu gestalten. Die umliegenden Wälder und Felder laden zu ausgedehnten Spaziergängen oder Radtouren ein. Zudem gibt es Sportvereine, die verschiedene Angebote für Jung und Alt bereitstellen.
Die Anbindung an den öffentlichen Personennahverkehr ist gut, sodass du bequem in die benachbarten Städte gelangen kannst. Auch die Autobahn ist nur wenige Minuten entfernt und ermöglicht dir eine schnelle Erreichbarkeit von größeren Städten wie Flensburg oder Schleswig. Norderbrarup bietet somit die perfekte Mischung aus ländlichem Charme und guter Infrastruktur, ideal für Pendler und Familien, die ein ruhiges Leben in der Natur suchen.
Sonstige Angaben
Das hier angebotene Grundstück ist im obigen Preis eingerechnet, es wird ohne zusätzliche Provision einen Living Haus - Bauherrn bereitgestellt.
Zusätzliche Baunebenkosten müssen noch hinzugerechnet werden, hierüber beraten wir dich gerne.
Wir bieten auch interessante Finanzierungsmöglichkeiten inklusive Beantragung aller Fördermittel!
Die Hausabbildung und die Bilder der Inneneinrichtung zeigen möglicherweise Extras, die nicht im Kaufpreis inbegriffen sind.
Gute Beratung ist der Anfang von Allem. Deshalb analysieren wir gemeinsam mit euch eure Vorstellungen, Wünsche und Bedürfnisse und finden das für dich und deiner Familie
Living Haus.
Interessiert? Kontaktiere mich und vereinbare noch heute einen kostenlosen und unverbindlichen Beratungstermin unter
0170-4711970
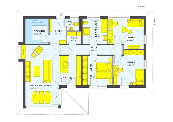
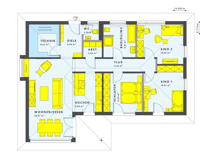
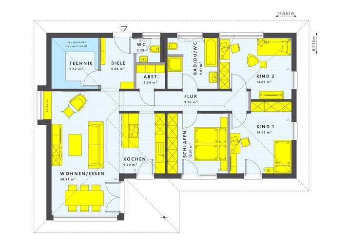
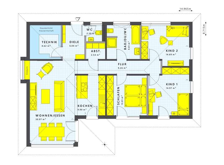
Grundriss
Grundriss - EG
>
>
Gestaltungsmöglichkeiten - Fam
>
>
Gestaltungsmöglichkeiten - Bun
>
>
Gestaltungsmöglichkeiten - Fam
>
>
Adresse
24392 Norderbrarup
Interessante Orte
Preis- und Lageinformationen
Preistrend für Bestandsimmobilien in Norderbrarup