Das im Jahr 1982 errichtete Architektenhaus überzeugt durch seine außergewöhnliche Architektur. Die vollständig verglasten Giebelseiten prägen das Erscheinungsbild maßgeblich und schaffen ein beeindruckendes Raumgefühl über mehrere Ebenen hinweg. Auf einer Wohnfläche von ca. 170 m² bietet das Haus ein großzügiges und zugleich vielseitig nutzbares Raumkonzept, ergänzt durch eine separat zugängliche Einliegerwohnung. Das ca. 570 m² große Grundstück umfasst einen gepflegten Garten mit Gerätehaus sowie mehrere Terrassenbereiche, die unterschiedliche Rückzugs- und Aufenthaltsmöglichkeiten im Freien eröffnen. Ein Carport direkt vor der Hauseingangstür sorgt für komfortables und wettergeschütztes Parken. Das Erdgeschoss des Haupthauses bildet mit dem weitläufigen Wohnzimmer und direktem Terrassenzugang das Zentrum des Hauses. Große Fensterflächen verbinden den Innenraum harmonisch mit dem Garten und unterstreichen den offenen Charakter. Das angrenzende Esszimmer mit offener Küche fügt sich nahtlos in das Raumkonzept ein und bietet ideale Voraussetzungen für gemeinsames Wohnen und gesellige Anlässe. Ein Gäste-WC komplettiert diese Ebene. Die Ausstattung wird durch Parkett- und Fliesenböden abgerundet. Im Obergeschoss befinden sich die Schlafräume, die jeweils über eine eigene Loggia verfügen und damit private Außenbereiche bieten. Die Holzbrüstungen der Loggien sowie die außenliegenden Holzbalken betonen den architektonischen Anspruch des Hauses und verleihen ihm eine markante, individuelle Ausstrahlung. Die Einliegerwohnung ist über einen eigenen Zugang erreichbar und bietet mit zwei Zimmern, Küche, Duschbad und einer Terrasse zur rückwärtigen Gartenseite ein eigenständiges Wohnangebot. Sie eignet sich gleichermaßen für Familienangehörige, Gäste, Homeoffice-Lösungen oder zur Vermietung und erweitert die Nutzungsmöglichkeiten der Immobilie erheblich. Beheizt wird das Haus über eine Gasbrennwertheizung aus dem Jahr 2012. Die Immobilie ist Teil einer verkehrsberuhigten Wohnzone innerhalb eines architektonisch abgestimmten Ensembles mit gemeinschaftlich genutztem Kinderspielplatz, was den ruhigen und familienfreundlichen Charakter zusätzlich unterstreicht. Das Objekt befindet sich in einem renovierungsbedürftigen, jedoch insgesamt sehr soliden Zustand. Die Bausubstanz ist gepflegt und nicht verwohnt, entspricht jedoch in Teilen nicht mehr den heutigen Ausstattungs- und Designansprüchen. Die außenliegenden Holzbalken sowie die Holzbrüstungen der Loggien sollten aufgearbeitet werden, zudem ist der Austausch einzelner Velux-Dachfenster empfehlenswert. Insgesamt bietet sich hier eine hervorragende Gelegenheit, eine architektonisch besondere Immobilie durch gezielte Modernisierungsmaßnahmen in ein zeitgemäßes und individuelles Zuhause mit nachhaltigem Wertpotenzial zu verwandeln. Zur Wahrung der Privatsphäre der Eigentümer wurden Bilder mit KI bearbeitet.
Architektenhaus in begehrter Lage -Garbsen Mitte
30823 Garbsen
Die vollständige Adresse der Immobilie erhalten Sie vom Anbieter.
Auf Karte anzeigen
Die vollständige Adresse der Immobilie erhalten Sie vom Anbieter.
Finanzierungszertifikat
In nur zwei Minuten zu Ihrem persönlichen Finanzierungszertifkat.
Infos
| Haustyp | Einfamilienhaus |
|---|---|
| Etagenzahl | 2 |
| Wohnfläche ca. | 169 m2 |
| Grundstücksfläche | 569 m2 |
| Bezugsfrei ab | Januar 2026 |
| Zimmer | 6 |
| Schlafzimmer | 3 |
| Badezimmer | 2 |
| Garage/Stellplatz | Carport |
| Anzahl Garage/Stellplatz | 1 |
Kosten
| Kaufpreis |
530.000 € |
|---|---|
| Provision |
3,57 Der Maklervertrag mit uns kommt entweder durch schriftliche Vereinbarung oder auch durch die Inanspruchnahme unserer Maklertätigkeit auf Basis unserer geltenden allgemeinen Geschäftsbedingungen zu Stande. Sollte das von uns nachgewiesene Objekt bereits bekannt sein, teilen Sie uns dieses bitte unverzüglich mit. Nehmen Sie unsere Maklerleistung trotz Vorkenntnis des Objekts in Anspruch, ohne uns über diese Vorkenntnis zu informieren, so kommt ebenfalls ein Maklervertrag mit uns zustande. Die Courtage richtet sich nach den ab dem 23.12.2020 in Kraft getretenen gesetzlichen Regelungen. Die Courtage in der angegebenen Höhe einschließlich Umsatzsteuer ist bei notariellem Vertragsabschluss verdient und fällig. Die Höhe der Bruttocourtage unterliegt einer Anpassung bei Steuersatzänderung. Grunderwerbssteuer, Notar- und Gerichtskosten trägt der Käufer. |
Finanzierungsrechner:
Kaufpreis:
600.000 €
Eigenkapital:
600.000 €
Monatliche Rate
0 €
Effektiver Jahreszins
0 %
Sollzinsbindung
10 Jahre
Bausubstanz & Energieausweis
| Baujahr | 1982 |
|---|---|
| Letzte Sanierung | 2012 |
| Bauphase | Haus fertig gestellt |
| Objektzustand | Gepflegt |
| Qualität der Austattung | Normal |
| Heizungsart | Gas-Heizung |
| Wesentliche Energieträger | Gas |
| Energieausweis | liegt vor |
| Energieausweistyp | Verbrauchsausweis |
| Energieverbrauchskennwert | 177,2 kWh/(m²*a) |
| Energieeffizienzklasse | F |
177,2
kWh/(m²*a)
Energieeffizienzklasse F
- A+
- A
- B
- C
- D
- E
- F
- G
- H
- 0
- 25
- 50
- 75
- 100
- 125
- 150
- 175
- 200
- 225
- >250
Beschreibung des Objekts
Lage
Das Einfamilienhaus befindet sich in einer gewachsenen Wohnsiedlung in Garbsen- Mitte. Die Umgebung ist überwiegend durch gepflegte Ein- und Zweifamilienhäuser geprägt und bietet ein ruhiges, familienfreundliches Wohnumfeld mit geringer Verkehrsbelastung. Alle Einrichtungen des täglichen Bedarfs sind in kurzer Distanz erreichbar. Einkaufsmöglichkeiten, Ärzte, Apotheken, Kindergärten sowie Schulen befinden sich sowohl fußläufig als auch in wenigen Fahrminuten Entfernung. Das nahegelegene Einkaufszentrum sowie weitere Dienstleistungsangebote ergänzen die gute Infrastruktur. Die Anbindung an den öffentlichen Personennahverkehr ist als sehr gut zu bewerten. Mehrere Bus- und Stadtbahnverbindungen ermöglichen eine schnelle Erreichbarkeit der Landeshauptstadt Hannover sowie der umliegenden Stadtteile. Auch die Verkehrsanbindung an Bundesstraßen und Autobahnen ist gut. Erholungs- und Freizeitmöglichkeiten sind in der näheren Umgebung vielfältig vorhanden. Grünflächen, Spazier- und Radwege sowie Sport- und Freizeiteinrichtungen bieten einen hohen Freizeitwert und tragen zur Wohnqualität bei. Insgesamt zeichnet sich die Lage durch eine gelungene Kombination aus ruhigem Wohnen und urbaner Infrastruktur bei guter Verkehrsanbindung aus.
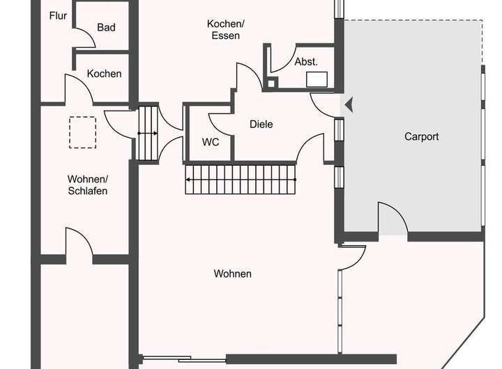
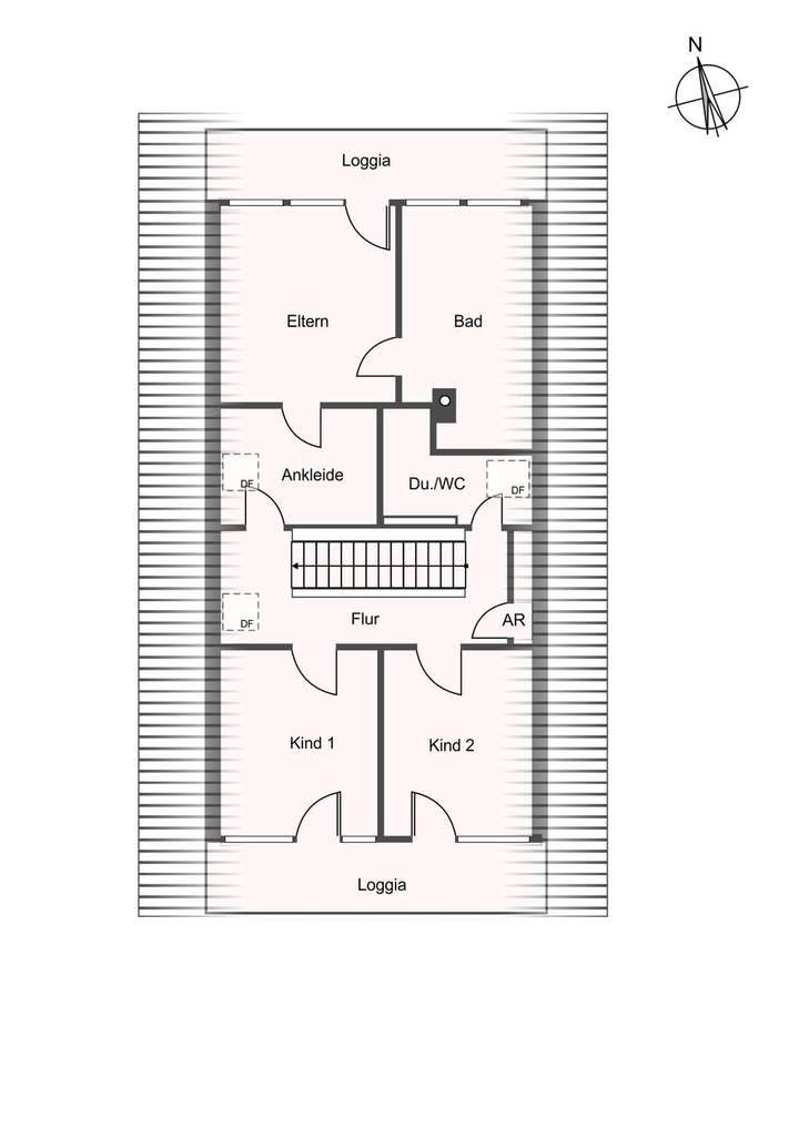
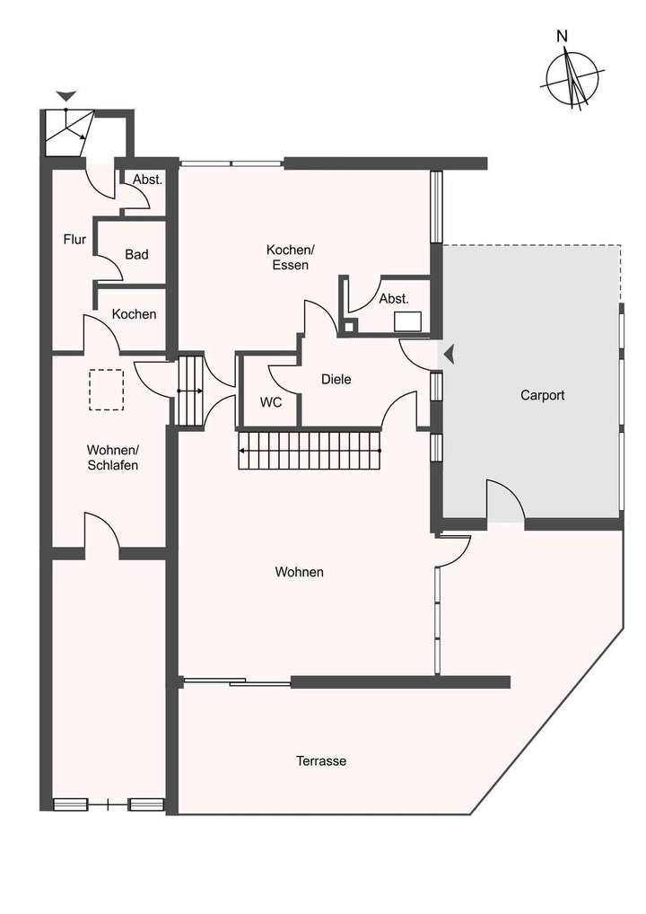
Grundriss
Grundriss Erdgeschoss
>
>
Grundriss Obergeschoss
>
>
Adresse
30823 Garbsen
Interessante Orte
Preis- und Lageinformationen
Preistrend für Bestandsimmobilien in Garbsen