Zum Verkauf steht ein freistehendes Einfamilienhaus in massiver Bauweise aus dem Jahr 1979 auf einem 1.081 m² großen Grundstück in Böhmfeld. Das Haus befindet sich in ruhiger Wohnlage eines gewachsenen Wohngebiets und bietet durch seine großzügige Grundrissgestaltung sowie das Ausbaupotenzial im Dachgeschoss vielfältige Möglichkeiten für individuelle Wohnideen.
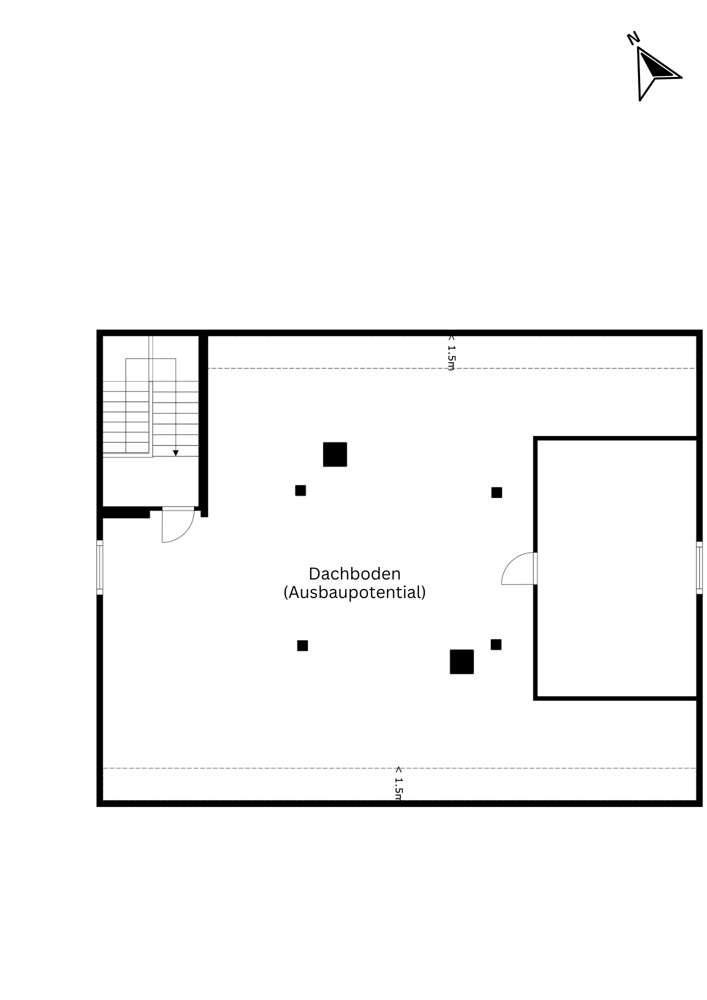
Das Objekt verteilt sich auf drei Ebenen: Die Wohnfläche im Erdgeschoss umfasst rund 138 m² und bietet fünf gut geschnittene Zimmer. Über das Treppenhaus gelangen Sie in den einladenden Eingangsbereich von welchem Sie alle Räume dieser Ebene erreichen. Am Ende des Flurs befindet sich das Wohn- und Esszimmer, das durch eine Flügeltür abgetrennt werden kann. Die Küche liegt separat in einem eigenen Raum direkt neben dem Esszimmer. Weitere Räume im Erdgeschoss sind ein Tageslichtbad, ein separates WC, ein Schlafzimmer sowie der Wintergarten mit Blick in den Garten. Das Büro befindet sich noch vor dem eigentlichen Wohnbereich und eignet sich dadurch auch für eine externe Nutzung, etwa als kleines Praxis- oder Arbeitszimmer. Das Kellergeschoss bietet weitere vielseitige Nutzungsmöglichkeiten. Drei wohnraumähnlich ausgebaute Zimmer, teils mit Lichtgräben, schaffen Platz für Hobby, Gäste oder Homeoffice. Zusätzlich sind ein WC, der Heizraum sowie drei Lagerräume vorhanden. Hinweis: Die Räume im Kellergeschoss sind baurechtlich nicht als Wohnraum genehmigt und werden daher nicht in der Wohnfläche berücksichtigt. Das Dachgeschoss wurde bislang nicht ausgebaut und bietet hervorragendes Ausbaupotenzial. Die Fläche ermöglicht – nach entsprechender Genehmigung – die Schaffung zusätzlicher Wohnräume und erweitert somit langfristig die Nutzungsmöglichkeiten des Hauses erheblich.
Die Außenanlagen umfassen einen weitläufigen Garten mit mehreren Ebenen und einer sonnigen Südausrichtung. Die Garage ist direkt an das Haus angebaut und verfügt über einen direkten Zugang zum Eingangsbereich und die großzügige Zufahrt bietet zusätzliche Stellmöglichkeiten. Das Haus befindet sich überwiegend im Zustand des Baujahres, wodurch sich für die zukünftigen Eigentümer attraktive Möglichkeiten zur Modernisierung und energetischen Verbesserung ergeben.
Überzeugen Sie sich von der Immobilie in der virtuellen 360°-Tour! Diese erhalten Sie auf Anfrage von uns. Ebenso sind alle weiteren Unterlagen vollständig und perfekt vorbereitet und können jederzeit zur Verfügung gestellt werden.
Einfamilienhaus mit Ausbaupotenzial und großem Garten in Böhmfeld
85113 Böhmfeld
Die vollständige Adresse der Immobilie erhalten Sie vom Anbieter.
Auf Karte anzeigen
Die vollständige Adresse der Immobilie erhalten Sie vom Anbieter.
Finanzierungszertifikat
In nur zwei Minuten zu Ihrem persönlichen Finanzierungszertifkat.
Infos
| Haustyp | Einfamilienhaus |
|---|---|
| Wohnfläche ca. | 138 m2 |
| Grundstücksfläche | 1.081 m2 |
| Bezugsfrei ab | nach Vereinbarung |
| Zimmer | 4 |
| Schlafzimmer | 2 |
| Badezimmer | 1 |
| Garage/Stellplatz | Garage |
| Anzahl Garage/Stellplatz | 1 |
Kosten
| Kaufpreis |
485.000 € |
|---|---|
| Provision |
3,57% (inkl. MwSt.) |
Finanzierungsrechner:
Kaufpreis:
600.000 €
Eigenkapital:
600.000 €
Monatliche Rate
0 €
Effektiver Jahreszins
0 %
Sollzinsbindung
10 Jahre
Bausubstanz & Energieausweis
| Baujahr | 1979 |
|---|---|
| Objektzustand | Gepflegt |
| Heizungsart | Zentralheizung |
| Wesentliche Energieträger | Öl |
| Energieausweis | liegt vor |
| Energieausweistyp | Bedarfsausweis |
| Energieverbrauchskennwert | 400,7 kWh/(m²*a) |
| Energieeffizienzklasse | H |
400,7
kWh/(m²*a)
Energieeffizienzklasse H
- A+
- A
- B
- C
- D
- E
- F
- G
- H
- 0
- 25
- 50
- 75
- 100
- 125
- 150
- 175
- 200
- 225
- >250
Beschreibung des Objekts
Ausstattung
+ massive Bauweise (Baujahr 1979)
+ Holzfenster mit Isolierverglasung
+ Betondecken, Satteldach, solide Grundstruktur
+ Tageslichtbad und separates WC
+ mehrere wohnraumähnlich ausgebaute Kellerräume (nicht in Wfl.)
+ Hobbyraum, Abstellräume und Lagerflächen im Keller
+ großes, ausbaufähiges Dachgeschoss (nicht in Wfl.)
+ zusätzlicher Wintergarten
+ 1.081 m² Grundstück mit sonniger, weitläufiger Garten
+ gemauerte Garage mit überdachtem Zugang
+ großzügige Zufahrt mit zusätzlichen Stellmöglichkeiten
Lage
Das Einfamilienhaus befindet sich in ruhiger Wohnlage von Böhmfeld, einer beliebten Gemeinde im Naturpark Altmühltal. Die Infrastruktur der Region ist hervorragend: Ingolstadt liegt nur ca. 14 Minuten entfernt, Eichstätt erreichen Sie in etwa 20 Minuten. Die umliegenden Orte Lenting, Gaimersheim und Kösching mit Einkaufsmöglichkeiten, Ärzten und weiterführenden Schulen sind in 5–10 Minuten erreichbar. Böhmfeld selbst bietet Kindergarten, Grundschule und ein aktives Vereinsleben. Die Anbindung an die B13, B16 und die A9 ist schnell gegeben, wodurch das Haus besonders attraktiv für Pendler ist. Trotz der guten Erreichbarkeit liegt das Objekt in einer ruhigen Anliegerstraße mit überwiegend Einfamilienhäusern.
Sonstige Angaben
Die Vermittlung dieser Immobilie erfolgt exklusiv durch DR Immobilien & Partners GmbH. Mit der Anfrage bei und durch Inanspruchnahme der Dienstleistung der Firma DR Immobilien & Partners GmbH, wird ein Maklervertrag geschlossen. Vom Käufer ist eine Vermittlungsprovision in Höhe von 3,57 % (inklusive 19 % Mehrwertsteuer) vom vertraglich vereinbarten Kaufpreis, nach Abschluss des notariell beurkundeten Kaufvertrages, zu zahlen. Bitte beachten Sie zusätzlich unsere AGBs. Wir weisen darauf hin, dass die von uns weitergegebenen Objektinformationen, Unterlagen, Pläne etc. vom Verkäufer stammen. Eine Haftung für die Richtigkeit oder Vollständigkeit der Angaben übernehmen wir daher nicht. Es obliegt daher unseren Kunden, die darin enthaltenen Objektinformationen und Angaben auf ihre Richtigkeit hin zu überprüfen. Alle Immobilienangebote sind freibleibend und vorbehaltlich Irrtümer, Zwischenverkauf- und Vermietung oder sonstiger Zwischenverwertung.
Weitere Dokumente
ExposéGrundriss
Erdgeschoss
>
>
Untergeschoss
>
>
Dachgeschoss
>
>
Adresse
85113 Böhmfeld
Interessante Orte
Preis- und Lageinformationen
Preistrend für Bestandsimmobilien in Böhmfeld