Das Doppelhaus verfügt über zwei klar voneinander getrennte Einheiten mit jeweils eigenem Grundstücksteil – eine attraktive Grundlage für flexible Wohnkonzepte, wie Mehrgenerationennutzung oder die Kombination von Wohnen und Vermietung. Das großzügige Grundstück bietet reichlich Platz für Garten, Freizeit und Hobbys, während Nebengebäude und Garagen vielseitige Nutzungsmöglichkeiten eröffnen.
Die Immobilie wurde zuletzt Anfang der 1990er Jahre modernisiert und befindet sich heute in einem deutlich renovierungs- und modernisierungsbedürftigen Zustand. Hier besteht echter Gestaltungsspielraum für Käufer, die ein Projekt mit Entwicklungspotenzial suchen. Die vorhandene Substanz bildet eine solide Basis, um Raumaufteilung, Ausstattung und energetische Standards den heutigen Anforderungen anzupassen.
Hervorzuheben ist die moderne Gas-Zentralheizung, die bereits 2018 erneuert wurde und einen wichtigen Teil der Grundinfrastruktur zukunftssicher abdeckt. Damit ist ein wesentlicher Baustein für eine energetisch effiziente Modernisierung bereits vorhanden.
Die Ausstattung umfasst neben der separaten Grundstückszufahrt auch mehrere Garagen, eine großzügige Terrasse im Obergeschoss sowie einen hellen Wintergarten, der sich als Wohnraumerweiterung oder Rückzugsort nutzen lässt. Werkstatt und Nebengelass schaffen zusätzliche Flächen für Lager, Hobby oder Handwerk.
Trotz des klaren Sanierungsbedarfs überzeugt die Immobilie mit ihrem großzügigen Raumangebot, einer flexiblen Grundstruktur und dem Potenzial, ein zukunftsfähiges Zuhause nach eigenen Vorstellungen zu schaffen.
Doppelhaus mit 2 Haushälften für Eigennutzung oder Mehrgenerationenwohnen und/oder Vermietung
18239 Satow
Die vollständige Adresse der Immobilie erhalten Sie vom Anbieter.
Auf Karte anzeigen
Die vollständige Adresse der Immobilie erhalten Sie vom Anbieter.
Finanzierungszertifikat
In nur zwei Minuten zu Ihrem persönlichen Finanzierungszertifkat.
Infos
| Haustyp | Einfamilienhaus |
|---|---|
| Wohnfläche ca. | 288 m2 |
| Nutzfläche | 464 m2 |
| Grundstücksfläche | 1.607 m2 |
| Zimmer | 7 |
| Anzahl Garage/Stellplatz | 5 |
Kosten
| Kaufpreis |
490.000 € |
|---|---|
| Provision | Nein |
Finanzierungsrechner:
Kaufpreis:
600.000 €
Eigenkapital:
600.000 €
Monatliche Rate
0 €
Effektiver Jahreszins
0 %
Sollzinsbindung
10 Jahre
Bausubstanz & Energieausweis
| Baujahr | 1896 |
|---|---|
| Letzte Sanierung | 1991 |
| Qualität der Austattung | Einfach |
| Heizungsart | Zentralheizung |
| Wesentliche Energieträger | Gas |
| Energieausweis | liegt vor |
| Energieausweistyp | Bedarfsausweis |
| Energieverbrauchskennwert | 404,1 kWh/(m²*a) |
| Energieeffizienzklasse | H |
404,1
kWh/(m²*a)
Energieeffizienzklasse H
- A+
- A
- B
- C
- D
- E
- F
- G
- H
- 0
- 25
- 50
- 75
- 100
- 125
- 150
- 175
- 200
- 225
- >250
Beschreibung des Objekts
Ausstattung
Weitere Innen- und Außenansichten erhalten Sie mit dem vollständigen Exposé.
- Zwei abgeschlossene Einheiten in einem Doppelhaus – ideal für Mehrgenerationenwohnen, Kombination aus Eigennutzung & Vermietung oder projektbezogene Nutzung
- Separate Grundstücksbereiche – mit eigener Zufahrt für den rechten Hausteil
- Drei Garagen sowie mehrere Außenstellplätze bieten komfortable Parkmöglichkeiten für beide Haushälften
- Werkstatt und Nebengelass im rückwärtigen Bereich – perfekt als Stauraum, für Handwerk oder Hobby
- Großzügige Terrasse im Obergeschoss mit Blick über das weitläufige Grundstück
- Wintergarten – auch an kühleren Tagen nutzbar, ideal als Rückzugsort oder Erweiterung des Wohnraums
- Viel Nutzfläche im Keller, Nebengelass und auf dem Grundstück – flexibel nutzbar
- Modernisierte Gas-Zentralheizung – bereits 2018 erneuert, effizient und sofort betriebsbereit
- Sanierungsbedarf u. a. bei: Innenausbau, Boden- und Wandbelägen, Fenstern, Sanitäranlagen, Elektrik und Dach
Lage
Die Immobilie befindet sich in der idyllischen Gemeinde Satow im Landkreis Rostock – zwischen der Hansestadt Rostock (ca. 20 km), Bad Doberan (ca. 10 km), Kühlungsborn (ca. 20 km) und Wismar (ca. 25 km). Durch die nahegelegene Autobahn A20 ist die Anbindung an überregionale Verkehrsachsen hervorragend.
Satow bietet eine intakte Infrastruktur mit Einkaufsmöglichkeiten, Ärzten, Apotheken, Schulen, Kitas und vielfältigen Dienstleistern direkt im Ort. Die Region ist wirtschaftlich stabil und attraktiv für Familien und Berufspendler.
Die naturnahe Umgebung mit Feldern und Wäldern lädt zu Freizeitaktivitäten und Erholung ein. Die Kombination aus ländlicher Ruhe und guter Erreichbarkeit macht Satow zu einem Wohnstandort mit Perspektive und hoher Lebensqualität.
Sonstige Angaben
Hinweise: Sollten Sie keine E-Mail von uns sichtbar erhalten, bitten wir Sie, im Spam- bzw. Junk-Mail Ordner Ihres E-Mail-Anbieters nachzusehen!
DSGVO:
Wir verweisen hiermit auf die Speicherung Ihrer Daten, sobald Sie uns eine Kontakt-Anfrage senden. Die Gegebenheiten des Datenschutzes können Sie unter folgendem Link nachlesen.
https://www.drenkhahn-immobilien.de/datenschutz/
Wir bitten um Verständnis, dass wir nur vollständige, schriftliche Anfragen (E-Mail, Fax, Brief) mit Namen, Anschrift und Telefonnummer beantworten können. Gerne stehen wir Ihnen auch zu einer persönlichen Beratung zur Verfügung.
Alle Angaben sind ohne Gewähr und beruhen ausschließlich auf Informationen des Auftraggebers bzw. Eigentümers. Zur textlichen und visuellen Aufbereitung wurden teilweise KI-gestützte Anwendungen eingesetzt. Wir übernehmen keine Gewähr für deren Vollständigkeit, Richtigkeit und Aktualität. Zahlenangaben sind, auch wenn nicht ausdrücklich vermerkt, als Circa- Angaben zu verstehen.
Keine zusätzliche Käufer- oder Mieter-Provision. Wir vertreten ausschließlich die Interessen des Eigentümers und werden auch nur von diesem vergütet. Die Übermittlung von Unterlagen, Vereinbarung eines Besichtigungstermins oder Entgegennahme eines Kauf- oder Mietpreisangebots führt nicht zum Abschluss eines Maklervertrags mit dem Kauf- oder Mietinteressenten.
Wenn Sie sich für den Kauf einer Immobilie interessieren, sind wir als Immobilienmakler gesetzlich verpflichtet, Ihre Identität festzustellen – so schreibt es das Geldwäschegesetz (GWG) vor. Das bedeutet: Bei Kaufabsicht benötigen wir eine Kopie Ihres Personalausweises. Wenn Sie für eine Firma handeln, brauchen wir zusätzlich einen Handelsregisterauszug, aus dem der wirtschaftlich Berechtigte hervorgeht. Diese Unterlagen müssen wir sicher aufbewahren – und zwar für fünf Jahre. Vielen Dank für Ihr Verständnis!
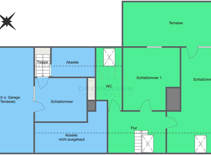
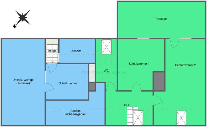
Grundriss
Grundriss EG
>
>
Grundriss OG
>
>
Adresse
18239 Satow
Interessante Orte
Preis- und Lageinformationen
Preistrend für Bestandsimmobilien in Satow