Dieses großzügige Einfamilienhaus wurde 1983 erbaut und befindet sich auf einem ca. 878 m² großen Eckgrundstück in einer ruhigen und familienfreundlichen Wohnlage. Mit rund 214 m² Wohnfläche auf zwei Ebenen bietet es reichlich Platz – ideal für eine größere Familie.
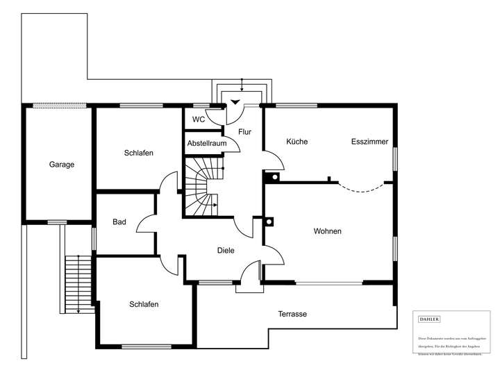
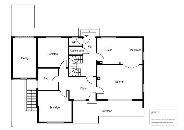
Im Erdgeschoss stehen ein Schlafzimmer, ein Kinderzimmer, ein Badezimmer, ein separates Gäste-WC, ein Vorratsraum sowie die Küche zur Verfügung. Herzstück dieser Ebene ist der weitläufige Wohn- und Essbereich. Von der Diele aus gelangt man direkt auf die Terrasse und in den Garten.
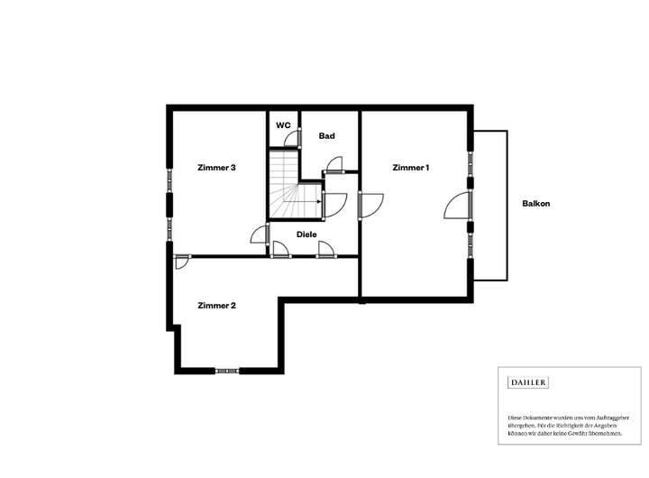
Das ausgebaute Dachgeschoss erweitert das Raumangebot um drei weitere Zimmer, ein Badezimmer und einen Balkon. Das Tageslichtbad ist mit Dusche und Badewanne ausgestattet.
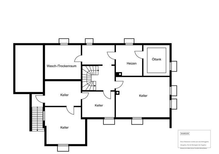
Das Haus ist voll unterkellert und bietet drei großzügige Räume mit vielfältigen Nutzungsmöglichkeiten – zum Beispiel als Hobby- oder Lagerräume. Zusätzlich befinden sich im Keller ein Wasch- und Trockenraum sowie der Heizungsraum. Die vorhandene Niedertemperaturheizung muss erst im Jahr 2044 ersetzt werden.
Eine Garage mit vorgelagertem Stellplatz ergänzt das Angebot. Große Fensterflächen lassen viel Tageslicht herein und schaffen in allen Wohnbereichen eine helle und angenehme Atmosphäre.
Grün und ruhig gelegen – ein Ort voller Möglichkeiten für Ihr persönliches Zuhause
82285 Hattenhofen
Die vollständige Adresse der Immobilie erhalten Sie vom Anbieter.
Auf Karte anzeigen
Die vollständige Adresse der Immobilie erhalten Sie vom Anbieter.
Finanzierungszertifikat
In nur zwei Minuten zu Ihrem persönlichen Finanzierungszertifkat.
Infos
| Haustyp | Einfamilienhaus |
|---|---|
| Etagenzahl | 2 |
| Wohnfläche ca. | 215 m2 |
| Grundstücksfläche | 880 m2 |
| Bezugsfrei ab | nach Absprache |
| Zimmer | 6,5 |
| Schlafzimmer | 4 |
| Badezimmer | 2 |
| Garage/Stellplatz | Garage |
| Anzahl Garage/Stellplatz | 1 |
Kosten
| Kaufpreis |
749.000 € |
|---|---|
| Provision |
3,57 % inkl. der gesetzl. MwSt., bezogen auf den Kaufpreis |
Finanzierungsrechner:
Kaufpreis:
600.000 €
Eigenkapital:
600.000 €
Monatliche Rate
0 €
Effektiver Jahreszins
0 %
Sollzinsbindung
10 Jahre
Bausubstanz & Energieausweis
| Baujahr | 1983 |
|---|---|
| Heizungsart | Fußbodenheizung |
| Wesentliche Energieträger | Öl |
| Energieausweis | liegt vor |
| Energieausweistyp | Bedarfsausweis |
| Energieverbrauchskennwert | 224,9 kWh/(m²*a) |
| Energieeffizienzklasse | G |
224,9
kWh/(m²*a)
Energieeffizienzklasse G
- A+
- A
- B
- C
- D
- E
- F
- G
- H
- 0
- 25
- 50
- 75
- 100
- 125
- 150
- 175
- 200
- 225
- >250
Beschreibung des Objekts
Ausstattung
• Fliesenböden in Küche, Esszimmer, Wohnzimmer, Eingangsbereich, Diele und Bad
•.Wohnzimmer mit traditionellem Kachelofen
• Laminatboden im Schlafzimmer und Kinderzimmer
• Nachträglich ausgebautes Dachgeschoss, teils mit Holzdielen versehen
• Holzfenster mit isolierverglasten Scheiben für eine angenehme Wohnatmosphäre
• Ölheizung (2006 erneuerter Tieftemperatur-Ölkessel)
• Fußbodenheizung im gesamten Erdgeschoss
• Voll unterkellertes Haus mit viel Platz und Möglichkeiten
• Holztreppe ins Obergeschoss
• Garage mit zusätzlichem Stellplatz
• Praktische Durchfahrtmöglichkeit durch die Garage dank zwei Garagentoren in den Garten
Lage
Haspelmoor bietet Ruhe und Natur pur. Es liegt in der Gemeinde Hattenhofen, nur 15 Minuten von Fürstenfeldbruck entfernt. Das Landschaftsschutzgebiet Haspelmoor lädt zu Spaziergängen und Radtouren ein. Im nahen Hattenhofen gibt es Bäcker, Metzger, Grundschule und Kindergarten. Mammendorf, 6 km entfernt, bietet weitere Einkaufsmöglichkeiten und Freizeitangebote. Der Bahnhof Haspelmoor ist in 5 Minuten zu Fuß erreichbar, mit direkter Verbindung nach München und Augsburg. Perfekt für Pendler und Naturliebhaber!
Grundriss
Grundriss Keller
>
>
Grundriss EG
>
>
Obergeschoss
>
>
Adresse
82285 Hattenhofen
Interessante Orte
Preis- und Lageinformationen
Preistrend für Bestandsimmobilien in Hattenhofen