Stellen Sie sich ein Zuhause vor, das sich Ihrem Alltag anpasst - nicht umgekehrt.
Offene Wohnbereiche schaffen Raum für gemeinsames Leben, während Rückzugsorte für Ruhe sorgen. Das Haus wird individuell geplant und flexibel auf Ihre Wünsche, Ihre Lebensphase und Ihr Budget abgestimmt.
Dieses Angebot richtet sich an Bauinteressenten, die ein Eigenheim im Raum Erfurt realistisch planen möchten - unabhängig davon, ob bereits ein Grundstück vorhanden ist. Im Mittelpunkt steht die individuelle Hausplanung mit Living Haus.
Die Projektierung erfolgt im Raum Erfurt / Thüringen. Grundstücke sind nicht Bestandteil der öffentlichen Anzeige und werden erst im Rahmen eines konkreten Bauprojekts geprüft. Bereits vorhandene Grundstücke können selbstverständlich in die Planung einbezogen werden.
Gerne besprechen wir Ihr Bauvorhaben in einem unverbindlichen persönlichen Gespräch.
Eigenheim planen statt Kompromisse machen
99087 Erfurt
Die vollständige Adresse der Immobilie erhalten Sie vom Anbieter.
Auf Karte anzeigen
Die vollständige Adresse der Immobilie erhalten Sie vom Anbieter.
Finanzierungszertifikat
In nur zwei Minuten zu Ihrem persönlichen Finanzierungszertifkat.
Infos
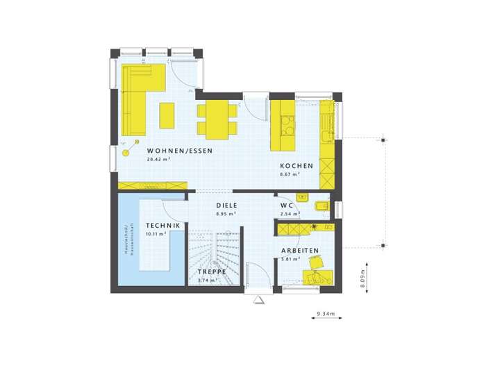
| Wohnfläche ca. | 125 m2 |
|---|---|
| Grundstücksfläche | 546 m2 |
| Zimmer | 4 |
| Schlafzimmer | 3 |
| Badezimmer | 2 |
Kosten
| Kaufpreis |
337.155 € |
|---|---|
| Provision | Nein |
Finanzierungsrechner:
Kaufpreis:
600.000 €
Eigenkapital:
600.000 €
Monatliche Rate
0 €
Effektiver Jahreszins
0 %
Sollzinsbindung
10 Jahre
Bausubstanz & Energieausweis
| Baujahr | 2026 |
|---|---|
| Bauphase | Haus in Planung (projektiert) |
Beschreibung des Objekts
Ausstattung
Flexible Wahl der Heiztechnik (z. B. Luft-Wasser- oder Luft-Luft-Systeme, je nach Konzept)
Hochwertige Treppe (haus- und grundrissabhängig)
Dreifach verglaste Fenster mit Rollläden
Umfangreiches Ausbaupaket inklusive:
Innentüren
Bodenbeläge
Wand- und Bodenfliesen
Tapeten und Wandfarben
Sanitärobjekte für Bad und Gäste-WC
Individuelle Ausstattungsberatung mit großer Auswahl an Materialien und Designs
Digitale Bau- & Projektbegleitung über das Living Haus Bau-Cockpit
Optional: Energiekonzepte inkl. Photovoltaik und Stromspeicher (I-KON)
Die Ausstattung wird nicht vorab festgeschrieben, sondern im Rahmen der Planung und Bemusterung individuell definiert - passend zu Budget, Stil und Lebensphase.
Lage
Die Projektierung erfolgt im Raum Erfurt / Thüringen.
Grundstücke werden im Rahmen eines konkreten Bauprojekts geprüft und sind nicht Bestandteil der öffentlichen Anzeige.
Hintergrund ist, dass eine seriöse Planung zunächst ein klares Haus- und Budgetkonzept erfordert. Erst danach können passende Grundstücksoptionen gezielt bewertet oder über bestehende Netzwerke geprüft werden.
Selbstverständlich kann ein bereits vorhandenes Grundstück ebenso für die Hausplanung genutzt werden.
Gerne besprechen wir Ihr Bauvorhaben in einem unverbindlichen persönlichen Gespräch.