Dieses außergewöhnliche Mehrfamilienhaus stellt eine seltene historische Kostbarkeit im Herzen der Altstadt dar – gelegen zwischen dem Rathaus und dem historischen Stadttor von Geithain. Das liebevoll gepflegte Herrenhaus vereint traditionellen Charme mit solider Wirtschaftlichkeit und bietet eine ausgezeichnete Gelegenheit für Kapitalanleger, die Wert auf Stabilität legen.
Auf rund 318 m² vermietbarer Fläche verteilen sich vier attraktive Wohneinheiten sowie eine gut frequentierte Gewerbeeinheit. Alle Einheiten sind vollständig vermietet, was eine sofortige Einnahmesicherheit garantiert. Mit einer aktuellen Jahresnettomiete von 21.601,68 € ist dieses Objekt eine lukrative Investition, Mieterhöhungen sind möglich, sodass sich die Rendite auf über 6% erhöht.
Das Anwesen besticht nicht nur wirtschaftlich, sondern auch durch seinen Charme:
- ein historischer Innenhof, der den Charakter des Hauses unterstreicht
- ein großzügiger Garten mit idyllischem Flair, der zum Stadtpark durch die romantische, alte Burgmauer getrennt ist
- ein Gewölbekeller, der zusätzlichen Stauraum bietet
- 5 Stellplätze direkt auf dem Grundstück
Die zentrale Lage in der Altstadt bietet kurze Wege zu Einkaufsmöglichkeiten, Restaurants, öffentlichen Verkehrsmitteln und kulturellen Angeboten.
Ein gepflegtes Mehrfamilienhaus mit Geschichte, Charme und langfristiger Vermietungssicherheit – perfekt für Kapitalanleger, die eine solide und zugleich repräsentative Immobilie suchen.
Gerne nehmen wir Sie unabhängig davon als Suchkunden in unserer Datenbank auf. Füllen Sie hierfür bitte einfach das Suchkundenformular auf unserer Website aus: https://vvv-leipzig-immobilien.de/suchprofil-anlegen/. Dann bekommen Sie in Zukunft passende Angebote von uns noch vor deren Veröffentlichung.
Wenn Sie einen Besichtigungstermin wünschen, klicken Sie bitte auf den Button "Besichtigungstermin" und Sie erhalten zeitnah Terminvorschläge.
Herrenhaus/Gutshaus im Kreis Leipzig | Gute Rendite | Gartenidylle, Stellplätze!
04643 Geithain
Die vollständige Adresse der Immobilie erhalten Sie vom Anbieter.
Auf Karte anzeigen
Die vollständige Adresse der Immobilie erhalten Sie vom Anbieter.
Finanzierungszertifikat
In nur zwei Minuten zu Ihrem persönlichen Finanzierungszertifkat.
Infos
| Haustyp | Mehrfamilienhaus |
|---|---|
| Etagenzahl | 4 |
| Wohnfläche ca. | 318 m2 |
| Grundstücksfläche | 850 m2 |
| Zimmer | 11 |
| Anzahl Garage/Stellplatz | 5 |
Kosten
| Kaufpreis |
399.000 € |
|---|---|
| Provision |
7,14 % inkl. MwSt. Die Provision in Höhe von 7,14 % inkl. MwSt. vom Kaufpreis ist vom Käufer zu tragen. |
| Mieteinnahmen | 1.800 € |
Finanzierungsrechner:
Kaufpreis:
600.000 €
Eigenkapital:
600.000 €
Monatliche Rate
0 €
Effektiver Jahreszins
0 %
Sollzinsbindung
10 Jahre
Bausubstanz & Energieausweis
| Baujahr | 1500 |
|---|---|
| Denkmalschutzobjekt | Ja |
| Objektzustand | Gepflegt |
| Heizungsart | Zentralheizung |
| Wesentliche Energieträger | Gas |
| Energieausweis | laut Gesetz nicht erforderlich |
Beschreibung des Objekts
Ausstattung
- historische Perle in der Altstadt
- voll vermietet
- 4 Wohneinheiten + 1 Gewerbeeinheit
- sehr gepflegtes Objekt
- großes Grundstück
- idyllischer Garten
- 5 Stellplätze
- Gewölbekeller
- historischer Hof
- Mieteinnahmen p.a. 21.601,68 €
- SOLL-Rendite 6,4%
Lage
Das Mehrfamilienhaus liegt in der malerisch-idyllischen Altstadt von Geithain, einer traditionsreichen Kleinstadt mit ca. 7.000 Einwohnern. Die Umgebung verbindet historisches Flair mit allen Annehmlichkeiten des täglichen Lebens.
Geithain liegt verkehrsgünstig zwischen den sächsischen Großstädten Leipzig, Dresden und Chemnitz.
Öffentliche Nahverkehrsverbindungen, eine S-Bahn-Station, der nahe gelegene Autobahnanschluss (A72) , wichtige Straßen, und verstreute Buslinien ermöglichen kurze Reisezeiten bzw. bieten Anschlussmöglichkeiten nach Leipzig, Dresden, Borna und Chemnitz. Einkaufsmöglichkeiten, Arztpraxen und Dienstleistungen finden sich sowohl im Stadtzentrum als auch in fußläufiger Entfernung, was die Lage besonders attraktiv macht.
In Geithain und der näheren Umgebung ist ein umfangreiches Angebot an Schulen und Betreuungseinrichtungen vorhanden. Neben KiTas, Grund- und Oberschulen finden sich hier auch das Internationale Gymnasium Geithain und International Primary School Geithain. Dank dieses Angebots sind Kinder und Jugendliche gut versorgt — vom Kindergarten über Grundschule bis hin zu höheren Schulformen.
Für die Bewohner bietet Geithain ein vielfältiges Angebot an Freizeitmöglichkeiten, wie eine sehenswerte Stadtbibliothek, ein Heimatmuseum, ein Tierpark, ein Freibad und weitere gute Sportmöglichkeiten.
In der Altstadt befinden sich historische Bauwerke, verwinkelte Gassen, ein attraktiver Marktplatz und eine gepflegte Umgebung, was besonders Lebensqualität und Wohnatmosphäre betrifft. Sehenswürdigkeiten, Grünanlagen und kleine Parks sind in Geithain vorhanden, das Wohnumfeld erscheint ruhig, freundlich und gepflegt. Herrliche Naherholungsgebiete mit vielen Wäldern, Wiesen und Seen umzäunen die Stadt.
Das Objekt profitiert von einer optimalen Kombination aus historischer Umgebung, guter Erreichbarkeit, solider Bildungsinfrastruktur und vielfältigen Freizeitangeboten. Diese Mischung macht es besonders attraktiv für Mieter, die nicht nur eine Wohnung, sondern auch ein lebenswertes Umfeld suchen — und deshalb auch für Investoren, die Wert auf langfristige Wertstabilität und gute Vermietbarkeit legen.
Sonstige Angaben
Hinweis zur Richtigkeit und Vollständigkeit der Angaben:
Der Makler weist darauf hin, dass die von ihm weitergegebenen Objektinformationen vom Verkäufer bzw. von einem vom Verkäufer beauftragten Dritten stammen und von ihm, dem Makler, auf ihre Richtigkeit nicht überprüft worden sind. Es ist Sache des Kunden, diese Angaben auf ihre Richtigkeit hin zu überprüfen. Der Makler, der diese Informationen nur weitergibt, übernimmt für die Richtigkeit keinerlei Haftung.
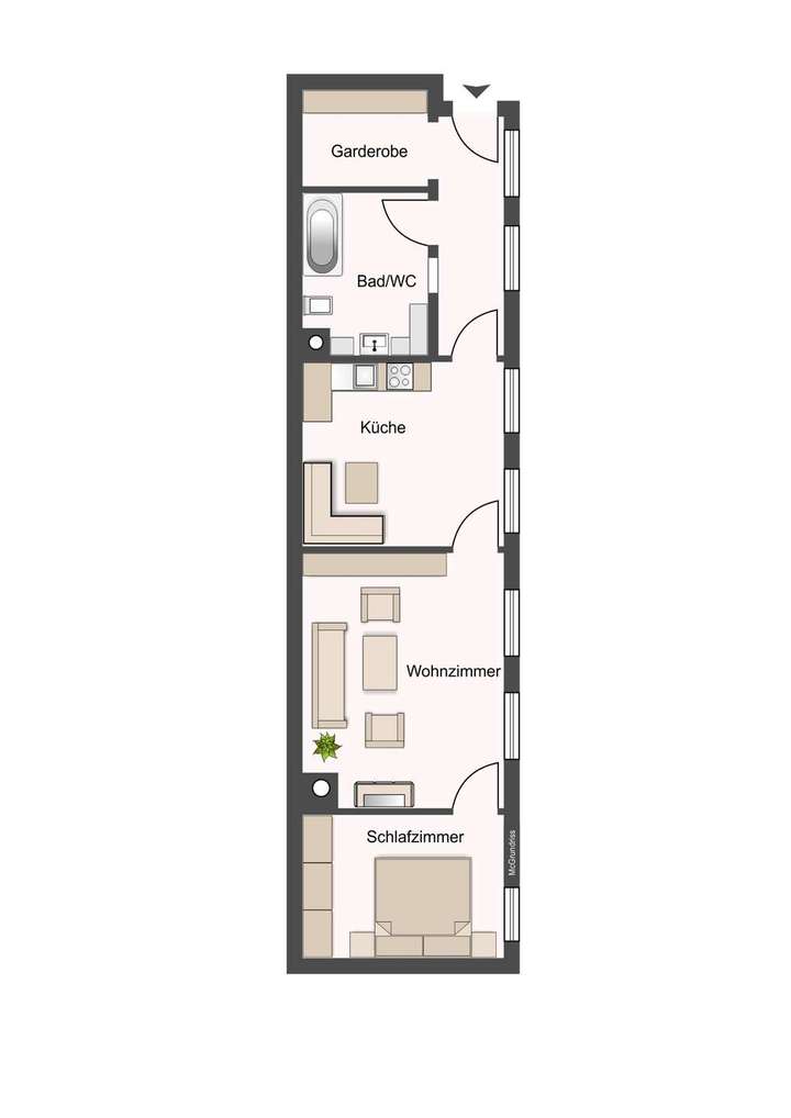
Grundriss
Grundriss EG
>
>
Grundriss 1. OG
>
>
Grundriss 2. OG
>
>
Grundriss DG
>
>
Grundriss Hofgebäude
>
>
Grundriss Spitzboden
>
>
Adresse
04643 Geithain
Interessante Orte
Preis- und Lageinformationen
Preistrend für Bestandsimmobilien in Geithain