Herzlich willkommen in Ihrem neuen Zuhause, das speziell für familienorientierte Kunden wie Sie gestaltet wurde. Diese Immobilie ist der ideale Ort, um gemeinsame Erinnerungen zu schaffen und ein harmonisches Familienleben zu führen.
Das Haus bietet ausreichend Platz für Ihre Familie, um zu Wachsen und Gedeihen. Mit geräumigen Schlafzimmern, einem lichtdurchfluteten Wohnbereich und einem weitläufigen Garten, ist genügend Raum für jedes Familienmitglied vorhanden
Familientraum – Glücklich leben im Eigenheim
73033 Göppingen
Die vollständige Adresse der Immobilie erhalten Sie vom Anbieter.
Auf Karte anzeigen
Die vollständige Adresse der Immobilie erhalten Sie vom Anbieter.
Finanzierungszertifikat
In nur zwei Minuten zu Ihrem persönlichen Finanzierungszertifkat.
Infos
| Haustyp | Einfamilienhaus |
|---|---|
| Wohnfläche ca. | 141 m2 |
| Nutzfläche | 0 m2 |
| Grundstücksfläche | 499 m2 |
| Zimmer | 5 |
| Schlafzimmer | 3 |
| Badezimmer | 1 |
| Anzahl Garage/Stellplatz | 1 |
Kosten
| Kaufpreis |
649.000 € |
|---|---|
| Provision | Nein |
Finanzierungsrechner:
Kaufpreis:
600.000 €
Eigenkapital:
600.000 €
Monatliche Rate
0 €
Effektiver Jahreszins
0 %
Sollzinsbindung
10 Jahre
Bausubstanz & Energieausweis
| Baujahr | 2026 |
|---|---|
| Bauphase | Haus in Planung (projektiert) |
| Qualität der Austattung | Gehoben |
| Heizungsart | Wärmepumpe |
Beschreibung des Objekts
Ausstattung
Jedes unserer Fertighäuser wird speziell für Sie geplant und ist perfekt auf die Anforderungen und Vorgaben Ihres Bauvorhabens angepasst – Bebauungspläne, eine besondere Grundstückslage und die gewünschten Eigenleistungen werden im Detail geprüft und berücksichtigt.
Jedes Schwabenhaus verfügt standardmäßig über:
- Doppel-Wärmepumpe mit 5 in 1-System: Heizen, Kühlen, Lüften, Luftreinigung und Warmwasser
- Zentrale kontrollierte Wohnraum Be- und Entlüftung mit Wärmerückgewinnung
- 3-Scheiben-Wärmeschutzglas
- elektrische Rollladensteuerung*
- Smart-Home-Technologie: Intelligentes Gebäude-Management für die Licht- und Rollladen-Steuerung*
- Schwimmender Estrich mit Wärmedämmung
- 10 Jahre Gewährleistung nach BGB (üblich: 5 Jahre) und 30 Jahre Garantie auf die Grundkonstruktion
*In Verbindung mit dem Technologie + Komfort-Paket „Blue-Edition“
Diesem Angebot liegt die beliebte Schwabenhaus-Ausbaustufe "Fast-Vollendet" zugrunde. Diese kann entsprechend Ihrer geplanten Eigenleistungen angepasst werden.
Lage
Die Stadt Göppingen liegt im Herzen des Stauferlands, rund 40 Kilometer östlich von Stuttgart, und bietet eine hervorragende Kombination aus urbanem Leben und naturnaher Umgebung. Die Innenstadt überzeugt mit einer guten Infrastruktur, vielfältigen Einkaufsmöglichkeiten, Restaurants sowie kulturellen Angeboten.
Göppingen verfügt über eine sehr gute Verkehrsanbindung: Über die B10 ist Stuttgart schnell erreichbar, und der Bahnhof bietet regelmäßige Regionalverbindungen in Richtung Ulm und Stuttgart. Schulen, Kindergärten sowie medizinische Einrichtungen befinden sich in unmittelbarer Nähe.
Die Umgebung lädt mit ihren Grünflächen, dem Hohenstaufen und zahlreichen Freizeitmöglichkeiten zu Erholung und Aktivitäten in der Natur ein. Damit bietet Göppingen eine hohe Lebensqualität für Familien, Berufspendler und Ruhesuchende gleichermaßen.
Sonstige Angaben
Das Haus ist projektiert inkl. Grundstück. Das Grundstück wird in Kommission angeboten bzw. direkt von Dritten verkauft. Daher kann der o.g. Preis aufgrund aktueller Marktsituationen schwanken.
Die Bauabwicklung kann kurzfristig nach Grundstückserwerb begonnen werden. Bilder zeigen möglicherweise Sonderausstattungen, die auf Wunsch gegen Preiskorrektur zusätzlich angeboten werden können.
Fragen Sie nach unserem kostenlosen Beratungs-Service und erhalten Sie in einem persönlichen Gespräch kostenlos alle wichtigen Informationen zu diesem Projekt, insbesondere: Lage und Bebauungsmöglichkeiten des Baugrundstücks, Baukosten-Kalkulation, Finanzierungs- u. Förderungs-Möglichkeiten, detaillierte Architektur- u. Grundrissplanung, etc.
Wir freuen uns, Sie ausführlich beraten zu dürfen!
Anbauteile, Carport, Garage und Keller können Extras sein, die als Sonderausstattung angeboten werden. Abbildungen, Grundrisse und Flächenangaben sind beispielhaft und können Extras zeigen. Flächenangaben nach DIN 277.
Profitieren Sie jetzt von der Schwabenhaus Online Beratung und verwirklichen Sie Ihr Traumhaus https://www.schwabenhaus.de/anmeldung-hausbau-beratung-online/
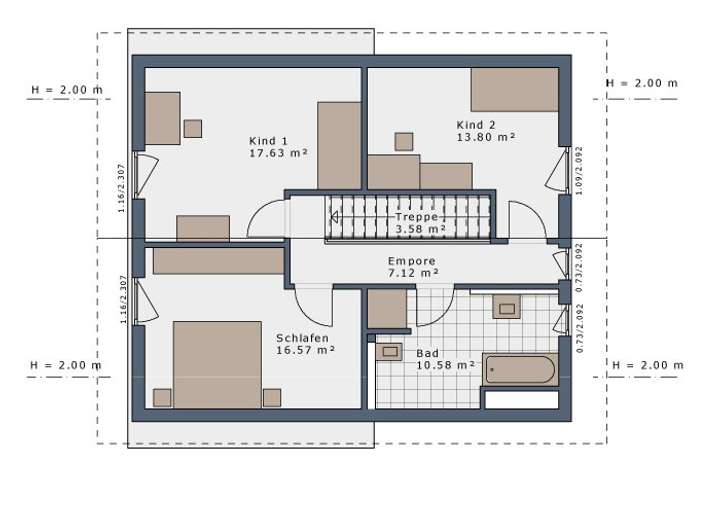
Grundriss
Grundriss Erdgeschoss
>
>
Grundriss Obergeschoss
>
>
Adresse
73033 Göppingen
Interessante Orte
Preis- und Lageinformationen
Preistrend für Bestandsimmobilien in Göppingen