Ankommen. Durchatmen. Zuhause sein. – Moderne Stadtvilla mit Wohlfühlcharakter
Diese moderne Stadtvilla vereint klare Architektur, lichtdurchflutete Räume und einen durchdachten Grundriss zu einem Zuhause voller Komfort und Geborgenheit.
Der einladende Eingangsbereich bietet rechts ein Gäste-WC mit Tageslicht und bodengleicher Dusche. Dem Flur folgend öffnet sich der offene Wohn- und Essbereich – das Herzstück des Hauses – mit großen Fensterflächen und direktem Bezug zum Garten. Die moderne Einbauküche mit Tresen lädt zum gemeinsamen Kochen und Verweilen ein.
Auf der linken Seite befindet sich ein großzügiger Hauswirtschaftsraum mit Fenstern und Platz für Haustechnik und Ordnung im Alltag.
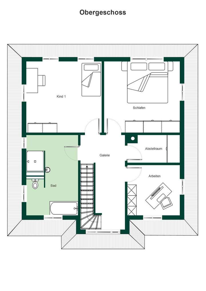
Über eine offene Treppe gelangen Sie ins Obergeschoss mit Galerie. Hier erwarten Sie ein stilvolles Masterbad mit Badewanne, gemauerter Dusche, WC und breitem Waschbecken, ein Schlafzimmer mit Gartenblick, ein helles Kinderzimmer mit bodentiefem Fenster und Terrassenblick sowie ein weiteres Zimmer, ideal als Kinder-, Gäste- oder Arbeitszimmer.
Ein Zuhause, das modernes Design mit Wärme verbindet – perfekt für Familien und alle, die Lebensqualität schätzen.
🏠 Architektur zum Verlieben – Stilvolle (A+) Stadtvilla mit Galerie und offener Küche
16540 Hohen Neuendorf
Die vollständige Adresse der Immobilie erhalten Sie vom Anbieter.
Auf Karte anzeigen
Die vollständige Adresse der Immobilie erhalten Sie vom Anbieter.
Finanzierungszertifikat
In nur zwei Minuten zu Ihrem persönlichen Finanzierungszertifkat.
Infos
| Haustyp | Einfamilienhaus |
|---|---|
| Etagenzahl | 2 |
| Wohnfläche ca. | 142 m2 |
| Grundstücksfläche | 550 m2 |
| Zimmer | 4 |
| Schlafzimmer | 3 |
| Badezimmer | 2 |
| Garage/Stellplatz | Garage |
| Anzahl Garage/Stellplatz | 3 |
Kosten
| Kaufpreis |
849.000 € |
|---|---|
| Provision |
3,57 % inkl. der gesetzl. MwSt. von 19 % des Kaufpreises |
Finanzierungsrechner:
Kaufpreis:
600.000 €
Eigenkapital:
600.000 €
Monatliche Rate
0 €
Effektiver Jahreszins
0 %
Sollzinsbindung
10 Jahre
Bausubstanz & Energieausweis
| Baujahr | 2017 |
|---|---|
| Objektzustand | Gepflegt |
| Qualität der Austattung | Gehoben |
| Heizungsart | Fußbodenheizung |
| Wesentliche Energieträger | Erdwärme |
| Energieausweis | liegt vor |
| Energieausweistyp | Bedarfsausweis |
| Energieverbrauchskennwert | 18,7 kWh/(m²*a) |
| Energieeffizienzklasse | A+ |
18,7
kWh/(m²*a)
Energieeffizienzklasse A+
- A+
- A
- B
- C
- D
- E
- F
- G
- H
- 0
- 25
- 50
- 75
- 100
- 125
- 150
- 175
- 200
- 225
- >250
Beschreibung des Objekts
Ausstattung
✨ Das Wichtigste auf einen Blick:
- 🥇Kfw Effizienzhaus (A+) mit Watterkotte Erdwärmepumpe
- 🏠 4 Zimmer mit durchdachtem Grundriss, Option auf 5 Zimmer
- 🌞 Heller Wohn- und Essbereich mit Zugang zur sonnigen Terrasse
- 🍽️ Moderne, offene Küche mit Tresen
- 🔥 Kaminschornstein 1-zügig Schiedel mit Thermoluftzug
- 🚗 Garage und Stellplätze auf dem Grundstück
- 🧺 Großer Hauswirtschaftsraum für zusätzlichen Stauraum
- 🚿 2 Moderne Bäder mit bodengleichen Duschen und 1 Wanne
- 🔒 Haustür mit 4 Punkt-Verriegelung und Sicherheitsglas VSG6 auch bei allen Fenstern
- 🪟 Fenster mit anthrazitfarbenen Faschen und elektrischen Aluminium-Rollläden
- 🚪 abgewalmte Eingangsüberdachung
- 🏛️ schöner, großer Erker über Erd- und Obergeschoss
- 🧱 Dacheindeckung BRAAS glasierter Tondachziegel tiefschwarz
Lage
Willkommen in Hohen Neuendorf – dort, wo das Berliner Stadtleben endet und das grüne, ruhige Wohnen beginnt. Diese wunderschöne Stadtvilla liegt in einer charmanten Wohngegend, die genau das bietet, was sich viele wünschen: Natur, Nachbarschaft und Nähe zur Hauptstadt.
Hier hört man morgens Vögel statt Verkehr – und abends genießt man den Sonnenuntergang über den alten Gärten der Nachbarschaft. Die Straße ist ruhig, gepflegt und wirkt fast ein wenig entschleunigt – ideal, um durchzuatmen nach einem langen Tag.
Trotz dieser Idylle ist die Anbindung hervorragend: Der S-Bahnhof Hohen Neuendorf ist nur wenige Minuten entfernt und bringt Sie direkt ins Herz Berlins. Mit dem Auto erreichen Sie die City über die B96 oder A111 in rund 30 Minuten – perfekt für alle, die die Stadt lieben, aber lieber im Grünen leben.
Einkaufsmöglichkeiten, Ärzte, Cafés und kleine Geschäfte befinden sich in unmittelbarer Nähe. Familien schätzen besonders die kurzen Wege zu Kitas und Schulen, während Spaziergänger und Naturfreunde die Nähe zu den Wäldern, der Havel und den weitläufigen Radwegen lieben.
Hier verbinden sich städtischer Komfort und ländliche Ruhe zu einem Wohngefühl, das beides bietet: die Energie der Großstadt – und die Gelassenheit des eigenen Zuhauses.
- 🌿 Ruhige Lage in gepflegtem Wohnumfeld
- 🚆 S-Bahn-Anschluss (S1/S8) in wenigen Minuten erreichbar
- 🛍️ Einkaufsmöglichkeiten, Schulen und Kitas in direkter Nähe
- 🏞️ Natur pur – Spazierwege & Briesetal nur wenige Minuten entfernt
Sonstige Angaben
Nutzen Sie auch unsere hauseigenen Spezialisten KENSINGTON Financial Services · Berlin, um sich die besten Kreditkonditionen zu sichern!
Unsere Angebote sind freibleibend und unverbindlich. Die Angaben basieren auf Aussagen des Verkäufers. Irrtum sowie Zwischenverkauf bleiben ausdrücklich vorbehalten. Der Makler-Vertrag mit uns und/oder unserem Beauftragten kommt durch schriftliche Vereinbarung oder durch die Inanspruchnahme unserer Maklertätigkeit auf der Basis des Objekt-Exposés und seiner Bedingungen zustande. Wir bitten um Verständnis, dass wir Detailinformationen nur liefern, sofern Sie uns Ihre kompletten Adress- und Kontaktdaten übermittelt haben. Weitere interessante Objekte finden Sie auf unserer Firmenhomepage: www.kensington-berlin.com sowie auf www.kensington-international.com Eigentümern bieten wir eine kostenlose Einwertung Ihrer Immobilie an.
Grundriss
Grundriss Erdgeschoss Ist
>
>
Grundriss Erdgeschoss Option
>
>
Grundriss Obergeschoss
>
>
Adresse
16540 Hohen Neuendorf
Interessante Orte
Preis- und Lageinformationen
Preistrend für Bestandsimmobilien in Hohen Neuendorf